各取扱メーカーの会社名、ロゴ及び商品名等は各社の商標または登録商標です。
| 日 | 月 | 火 | 水 | 木 | 金 | 土 |
|---|---|---|---|---|---|---|
| 1 | 2 | 3 | 4 | 5 | 6 | |
| 7 | 8 | 9 | 10 | 11 | 12 | 13 |
| 14 | 15 | 16 | 17 | 18 | 19 | 20 |
| 21 | 22 | 23 | 24 | 25 | 26 | 27 |
| 28 | 29 | 30 | 31 |
| 日 | 月 | 火 | 水 | 木 | 金 | 土 |
|---|---|---|---|---|---|---|
| 1 | 2 | 3 | ||||
| 4 | 5 | 6 | 7 | 8 | 9 | 10 |
| 11 | 12 | 13 | 14 | 15 | 16 | 17 |
| 18 | 19 | 20 | 21 | 22 | 23 | 24 |
| 25 | 26 | 27 | 28 | 29 | 30 | 31 |
…休業日(現場調査・工事は一部対応)
![]()
【受付時間】9:30 - 17:30(営業日)
![]()
【受付時間】9:30 - 17:30(営業日)
オペレーションスタッフ
エクステリアプランナー有資格者の私たちにお任せください。
ショップ責任者
神(じん)
エクステリア プランナー
有資格者61名
1/3
1/3
今週のPick Upページ
![]()
ご利用頂いたお客様の口コミ・レビューを「お客様の声」として掲載しております。
全てのご感想を掲載しておりますので、エクスショップの評判としてご参考ください。
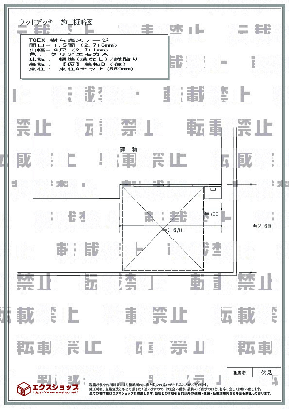
正式お見積りと一緒に提出させて頂いております「工事概略図面」もご覧頂けます。
商品や設置場所のご検討にお役立てください。
(写真No:22071624)
エクスショップさんのメールや、お電話での対応も迅速で丁寧でした実際のウットデッキは希望通りの物が出来、本当に嬉しいです作業してくれた方が本当に親切、丁寧で、また何かあったらこちらでお願いしようと思っています
この度は、樹ら楽ステージの施工ご依頼を頂き誠に有り難うございます。弊社では、迅速かつ丁寧な対応を日々心がけておりますので、この様なお言葉を頂戴でき大変嬉しく存じます。クリアエモカAの落ち着いた色味と、広々としたサイズでとても素敵なお仕上がりでございますね。ご家族の憩いの場となりますこと、心より願っております。また、次回ご検討の際も弊社をご利用頂けますこと、誠に光栄でございます。今後も、お客様にご満足頂ける様、日々精進して参りますので、また機会がございましたら是非エクスショップをご利用下さいますよう、宜しくお願い致します。
当サイトは以下のセキュリティ機能や保護認定等を備えています。安心してお申し込みください
当サイトは256ビットSSL暗号化に対応しています。入力した個人情報は暗号化して送られますので、安心してご利用ください。
当社はJADMAの正会員です。同協会は法律で位置づけられた団体で、消費者の利益保護と業界の健全な発展の為に活動しています。
こちらの工事に使用しているエクステリア
![]()
樹ら楽ステージ

工事費・税込
127,100円〜
商品レビュー数
72件
樹ら楽ステージは日光を反射する特殊な顔料を使用した昇温抑制効果のある人工木デッキです。LIXIL社従来商品の類似色比較では最大約10℃まで抑制。また、板厚46mm×175mmの強固な構造で耐久力もあります。滑りによる転倒防止のため、表面はやや粗い仕上がりになっています。
この商品の詳細へ
無料お見積り・現場調査・ご注文もこちら