快適なガレージには必須
お庭に機能的スペースを作り出します
日光、雨・風を防ぎバルコニーを快適に
ガレージの保全・防犯にカーポートと合わせて
お家の収納能力をアップ
ガレージ商品とコンビで高級感を演出
各取扱メーカーの会社名、ロゴ及び商品名等は各社の商標または登録商標です。
| 日 | 月 | 火 | 水 | 木 | 金 | 土 | 
|---|---|---|---|---|---|---|
| 1 | ||||||
| 2 | 3 | 4 | 5 | 6 | 7 | 8 | 
| 9 | 10 | 11 | 12 | 13 | 14 | 15 | 
| 16 | 17 | 18 | 19 | 20 | 21 | 22 | 
| 23 | 24 | 25 | 26 | 27 | 28 | 29 | 
| 30 | 
| 日 | 月 | 火 | 水 | 木 | 金 | 土 | 
|---|---|---|---|---|---|---|
| 1 | 2 | 3 | 4 | 5 | 6 | |
| 7 | 8 | 9 | 10 | 11 | 12 | 13 | 
| 14 | 15 | 16 | 17 | 18 | 19 | 20 | 
| 21 | 22 | 23 | 24 | 25 | 26 | 27 | 
| 28 | 29 | 30 | 31 | 
…休業日(現場調査・工事は一部対応)
![]()
【受付時間】9:30 - 17:30(営業日)
![]()
【受付時間】9:30 - 17:30(営業日)
オペレーションスタッフ
エクステリアプランナー有資格者の私たちにお任せください。
ショップ責任者
神(じん)
エクステリア プランナー
有資格者61名
1/3
木附
枡田
重富
吉澤
吉野
小東
池本
山田
佐藤
白崎
新西
伊野
次田
浅川
南
西山
小林
梨田
長谷川
藤田
阿重田
村上
植松
内田
久田
小野
平戸
中島
長石
水口
榮
山崎
清水
室谷
安田
水谷
酒井
神吉
日下部
山中
深田
田中
水田
西田
一氏
岡本
北
坂本
中嶋
岩野
伊藤
上中
高山
竹本
犬井
佐伯
谷川
原
丸山
塚田
松本
上内
島田
森
梅田
松山
山本
小林
倉地
山根
中原
河野
村上
土井
岩破
南
井上
三ツ股
小田
依藤
永禮
林
加藤
石藤
駒井
末吉
山本
芦野
樽井
野上
岡田
木村
池田
西村
藤澤
達川
奥原
那須
小西
森下
1/3
今週のPick Upページ
![]()
ご利用頂いたお客様の口コミ・レビューを「お客様の声」として掲載しております。
全てのご感想を掲載しておりますので、エクスショップの評判としてご参考ください。
正式お見積りと一緒に提出させて頂いております「工事概略図面」もご覧頂けます。
商品や設置場所のご検討にお役立てください。
                      
                
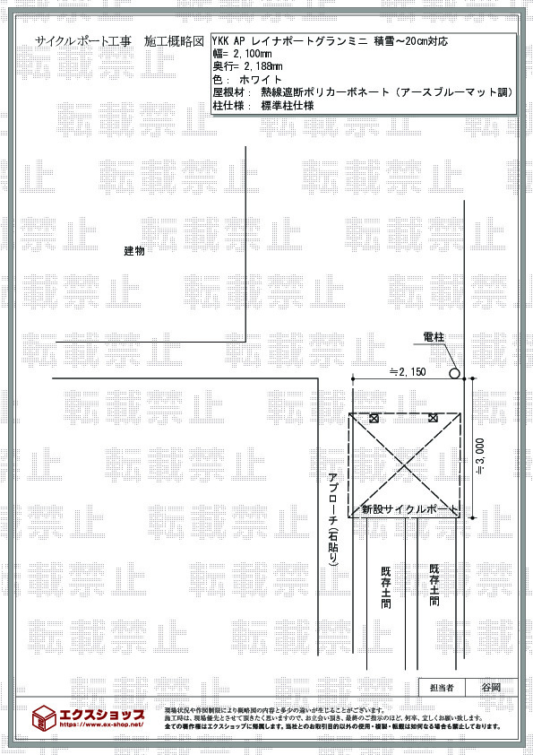
(写真No:22875226)
(カーポート)
| カラー | ホワイト | 
|---|---|
| サイズ | 幅 2,100mm 奥行 2,188mm | 
| 屋根高等 | 標準柱仕様 | 
| 屋根材等 | 熱線遮断ポリカーボネート(アースブルーマット調) | 
| 工事方法 | 地域密着あんしん施工 | 
施工例の写真とコメントが沢山あり、イメージし易かったです。ポートの高さで迷っていましたが、現場調査の時、メジャーで示して具体的に説明して下さったので、すぐに決断出来ました。着工の日はとても暑かったのですが、とても丁寧な仕事振りでした。事後処理もキレイになさっていました。とても気持ちの良い買い物になったと満足しています。
この度はレイナポートグランミニの施工をご依頼頂きまして、誠に有り難うございます。お客様のご希望に沿った施工内容となりまして、私どもと致しましても何より嬉しく存じます。アースブルーマット調の屋根材が上部から見ると、シックで素敵なお仕上がりでございますね。植物や芝の緑とも見事なまでにマッチしており、お客様のセンスの光るお仕上がりにお写真を拝見し惚れ惚れと致しました。サイクルポートの設置によりお客様の生活がより豊かなものになりますことを、心より願っております。今後もお客様に愛され、信頼される企業を目指し日々邁進して参りますので、また機会がございましたらエクスショップをご用命下さいますよう、宜しくお願い致します。
当サイトは以下のセキュリティ機能や保護認定等を備えています。安心してお申し込みください
当サイトは256ビットSSL暗号化に対応しています。入力した個人情報は暗号化して送られますので、安心してご利用ください。
当社はJADMAの正会員です。同協会は法律で位置づけられた団体で、消費者の利益保護と業界の健全な発展の為に活動しています。
こちらの工事に使用しているエクステリア
![]()
アリュース ミニ 600タイプ 単体

工事費・税込
136,000円〜
総合平均評価(星5つ評価)
4.73
商品レビュー数
15件
アリュース ミニ 600タイプ 単体は屋根がアール型のスタンダードな片流れスタイルのサイクルポート(駐輪場屋根)です。基準風速Vo=34m/s・耐積雪性能20cm相当の性能があり、約3〜9台の駐輪が可能です(自転車の間隔を約600mmとして計算)。
この商品の詳細へ
無料お見積り・現場調査・ご注文もこちら
この商品のレビュー
商品レビュー15件

兵庫県 加古川市 Y.A.様
熱に強いブルーのボードを選びましたが、オシャレで気に入りました!

東京都 府中市 M.T.様
思ったより柱も頑丈で、高級感がある。(屋根下、室内も明るく、満足)

福岡県 福岡市 H.R.様
サイクルポートの第1希望として、高さ2.5m程度のハイルーフタイプだったため、希望に沿ったものが設置できたこととカーポートも同じ商品で設置でき、見た目も統一感が出て満足しています

神奈川県 横浜市 S.T.様
商品自体は良い 施工前に埋設配管などがないか確認してほしい

千葉県 柏市 T.S.様
設置も丁寧にやってもらったので非常に満足しています。

神奈川県 横浜市 Y・D様
メーカーが大手であり、信頼できる、また施工業者が地元であり安心です。 商品についても満足している。
関連するお客様の声

5つ星のうち5
熊本県M.K. 様回答日:2011年3月
対応も丁寧でしたしきちんとした施工でとても満足しています。ネットでの注文ということで多少不安はありましたが、施工例がたくさんあったので自分の家に合うカーポートというのの具体的なイメージがつかみやすかったと思います。

5つ星のうち5
茨城県I.A. 様回答日:2014年6月
現場調査の時もいろいろと分かりやすく説明していただきました。また施工もとても丁寧にしていただき満足しています。ありがとうございました。

5つ星のうち5
茨城県O.A. 様回答日:2020年11月
カーポートの設置を検討していたのですが、施工例の写真が沢山あり設置後をイメージしやすかったのが良かったです。実際の設置工事もとても丁寧な作業でイメージしていた以上の出来栄えで大変満足しています。

5つ星のうち4
愛知県T.M. 様回答日:2016年12月
当日に設置場所を変更したのですがきちんとメジャーで場所を説明していただけましたのでアドバイスもいただけましたので助かりました。

5つ星のうち5
埼玉県N.S. 様回答日:2012年3月
迅速且つ、丁寧な対応でした。とても気持ちの良いお買い物でした。施工に来てくださった業者の方もとても丁寧でした。

5つ星のうち5
群馬県Y.J. 様回答日:2016年7月
ネットショップの不安はありましたが、それを解消してくれたのが何より施工例の写真が多かった事です。また施工後のイメージにも役立ちました。

5つ星のうち5
兵庫県Y.K. 様回答日:2013年9月
迅速でとても丁寧な対応でした。現場調査に来られた時も分かりやすい説明で助かりました。ありがとうございました。

5つ星のうち5
兵庫県Y.A. 様回答日:2024年11月
お隣が畑で大きい柿の木もあり、夏の終わりには蚊が多かったため、高めのフェンスを設置することにしました。工事もきちんと説明しながら進めて下さり、サイクルポートもフェンスも完璧な仕上がりで特にお値段が大満足でした!ありがとうございました!また何かありましたら利用させて頂きます。

5つ星のうち5
静岡県M.T. 様回答日:2023年5月
所有アパートへサイクルポートを設置しましたが、これまで、アパートの色んな場所に定位置化されていない自転車が5台以上あちこちにあり、とても乱雑でしたが、とてもスッキリさせる事が出来、住人もみんな喜んで頂けました。今後、アパート経営されてる方で、自転車の乱雑に気付いたら、これだけスッキリ出来るなら、とても安いものだと思いました。オススメします!

5つ星のうち5
岩手県Y.K. 様回答日:2022年8月
フェンス 隣家の目を感じず庭に出られて満足しています。サイクルポート これから子どもたちが頻繁に自転車を使用するようになりますので、しっかりしたものを設置したいと考えました。ホームセンターでビニールハウスタイプのものでもそれなりのお値段がします。

5つ星のうち5
広島県M.A. 様回答日:2022年4月
隣に新しく建った家の玄関とうちのリビングの腰窓が向かい合った形となってしまい、目隠し目的でフェンスを付けたいと考えました。設置後は隣の家の玄関からこちらは見えなくなったと思います。それと、フェンスがあるおかげでブラインドを窓の半分くらいまで開けられるようになったので、部屋が少し明るくなって嬉しいです。

5つ星のうち5
埼玉県E.A. 様回答日:2022年3月
電動自転車を購入したことをきっかけに、カバーをかけずに雨をしのげたらと思い設置を決めました。昨晩の雨風には自転車も濡れてしまいましたが、最小限に雨を防げていると思います。また、子どもたちが大きくなっていく上で、自転車を停めるようになるため設置してよかったと思います。
関連するブログ記事










関連するよくあるご質問
サイクルポートって何ですか?
【商品カテゴリ >サイクルポート・自転車置き場】(ご質問No.28914)
リレーリアにて、門柱+サイクルポートのようなものの取り扱いはありますか?
【商品カテゴリ >サイクルポート・自転車置き場】(ご質問No.214)
サイクルポートに目安で自転車何台くらいとめられますか?
【商品カテゴリ >サイクルポート・自転車置き場】(ご質問No.720)
サイクルポートと一緒に土間コンクリートを打設できますか?
【商品カテゴリ >サイクルポート・自転車置き場】(ご質問No.721)
スクリーンの取付けについて、「前面のみ」や「側面のみ」の取付けはできますか?
【商品カテゴリ >サイクルポート・自転車置き場】(ご質問No.722)
前の大雪で当社の自転車置き場がつぶれました。 
つきましては新しく作成を考えていますので、一度見に来ていただいて見積もりを作成していただければ幸いです。 よろしく願います。
【商品カテゴリ >サイクルポート・自転車置き場】(ご質問No.961)
自宅の駐車場に屋根を付けたい。
【商品カテゴリ >サイクルポート・自転車置き場】(ご質問No.1009)
プレシオスポートミニを検討しています。
柱の高さを短くして使用したいのですが、工事ではなく物販のみの対応はしていただけるのでしょうか?
 対応していただける場合の納期と商品の入荷方法(輸送時チャーター便?それとも宅配便?)
 など教えていただければ幸いです。
よろしくお願いいたします。
【商品カテゴリ >サイクルポート・自転車置き場】(ご質問No.1100)
タカショーのサイクルポート「アートポートミニ」(21-21、標準柱熱線カット屋根)の設置を考えているのですが、見積もりをお願いできますか?
【商品カテゴリ >サイクルポート・自転車置き場】(ご質問No.1140)
お世話になります。
自宅に設置する駐輪場部材の購入を検討していますが、
三協アルミ カムフィNex R 延長 幅1792mm × 奥行3621mm 標準柱 を購入した場合の納品時期について教えてください。
【商品カテゴリ >サイクルポート・自転車置き場】(ご質問No.1198)


















