快適なガレージには必須
お庭に機能的スペースを作り出します
日光、雨・風を防ぎバルコニーを快適に
ガレージの保全・防犯にカーポートと合わせて
お家の収納能力をアップ
ガレージ商品とコンビで高級感を演出
各取扱メーカーの会社名、ロゴ及び商品名等は各社の商標または登録商標です。
| 日 | 月 | 火 | 水 | 木 | 金 | 土 | 
|---|---|---|---|---|---|---|
| 1 | ||||||
| 2 | 3 | 4 | 5 | 6 | 7 | 8 | 
| 9 | 10 | 11 | 12 | 13 | 14 | 15 | 
| 16 | 17 | 18 | 19 | 20 | 21 | 22 | 
| 23 | 24 | 25 | 26 | 27 | 28 | 29 | 
| 30 | 
| 日 | 月 | 火 | 水 | 木 | 金 | 土 | 
|---|---|---|---|---|---|---|
| 1 | 2 | 3 | 4 | 5 | 6 | |
| 7 | 8 | 9 | 10 | 11 | 12 | 13 | 
| 14 | 15 | 16 | 17 | 18 | 19 | 20 | 
| 21 | 22 | 23 | 24 | 25 | 26 | 27 | 
| 28 | 29 | 30 | 31 | 
 …休業日(現場調査・工事は一部対応)
…休業日(現場調査・工事は一部対応)

【受付時間】9:30 - 17:30(営業日)

【受付時間】9:30 - 17:30(営業日)
オペレーションスタッフ
エクステリアプランナー有資格者の私たちにお任せください。
ショップ責任者
神(じん)
エクステリア プランナー
有資格者61名
1/3
木附
枡田
重富
吉澤
吉野
小東
池本
山田
佐藤
白崎
新西
伊野
次田
浅川
南
西山
小林
梨田
長谷川
藤田
阿重田
村上
植松
内田
久田
小野
平戸
中島
長石
水口
榮
山崎
清水
室谷
安田
水谷
酒井
神吉
日下部
山中
深田
田中
水田
西田
一氏
岡本
北
坂本
中嶋
岩野
伊藤
上中
高山
竹本
犬井
佐伯
谷川
原
丸山
塚田
松本
上内
島田
森
梅田
松山
山本
小林
倉地
山根
中原
河野
村上
土井
岩破
南
井上
三ツ股
小田
依藤
永禮
林
加藤
石藤
駒井
末吉
山本
芦野
樽井
野上
岡田
木村
池田
西村
藤澤
達川
奥原
那須
小西
森下
1/3
今週のPick Upページ

ご利用頂いたお客様の口コミ・レビューを「お客様の声」として掲載しております。
全てのご感想を掲載しておりますので、エクスショップの評判としてご参考ください。
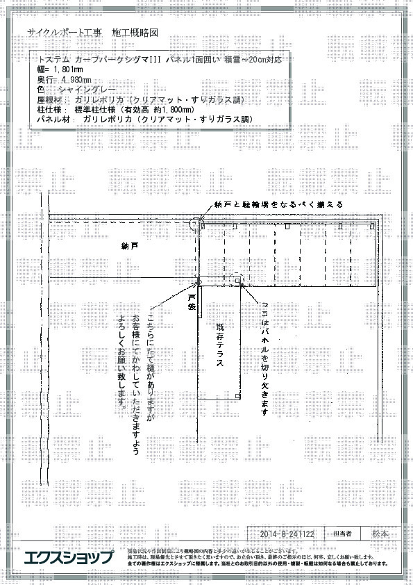
正式お見積りと一緒に提出させて頂いております「工事概略図面」もご覧頂けます。
商品や設置場所のご検討にお役立てください。

                       
                
(写真No:24112228)
 (サイクルポート・自転車置き場)
(サイクルポート・自転車置き場)
| カラー | シャイングレー | 
|---|---|
| サイズ | 幅 1,801mm 奥行 4,980mm | 
| 屋根高等 | 標準柱仕様(有効高 約1,800mm) | 
| 屋根材等 | ガリレポリカ(クリアマット・すりガラス調) | 
| 工事方法 | 地域密着あんしん施工 | 
発注から施工日の決定までの期間がかかりすぎる。最初に施工可能時期の明示をしてほしい。施工自体は、丁寧でいい仕事をしていただき出来上がりには満足しています。
施工日程の調整にお時間を頂戴して、誠に申し訳ございませんでした。今後は、施工まで出来るだけお待たせすることのございませぬよう、提携施工店とも協力して参りたいと存じます。カーブパークシグマIII パネル1面囲い のお仕上がりにご満足のお言葉を頂き、施工担当者はもとより、私どもも大変嬉しく存じます。落ち着いたお色のフレームやパネルに囲まれ、二輪車を安心してとめることの出来るサイクルポートでございますね。今後も変わらず、お客様のご満足の為に精進して参りたいと存じますので、また機会がございましたら、お気軽にエクスショップにご用命くださいますよう宜しくお願い致します。
当サイトは以下のセキュリティ機能や保護認定等を備えています。安心してお申し込みください
当サイトは256ビットSSL暗号化に対応しています。入力した個人情報は暗号化して送られますので、安心してご利用ください。
当社はJADMAの正会員です。同協会は法律で位置づけられた団体で、消費者の利益保護と業界の健全な発展の為に活動しています。
こちらの工事に使用しているエクステリア

フーゴRミニ (ラウンドスタイル)

工事費・税込
149,500円〜
総合平均評価(星5つ評価)
4.72
商品レビュー数
74件
屋根の形状がR型のベーシックなデザインのサイクルポートです。
この商品の詳細へ
無料お見積り・現場調査・ご注文もこちら
この商品のレビュー
商品レビュー74件

埼玉県 狭山市 S.H.様
自転車3台位余裕を持って置けて良さげでした。

東京都 三鷹市 S.T.様
今の所、きちんと施工頂いたと思います。 柱の傾斜が足りないかなと感じている所もあります。

神奈川県 相模原市 F.N.様
台風など強風での効果が未体験なのでどのくらいまで防げるか気になります。

神奈川県 秦野市 S.S.様
サイドパネルを付けることを前提に、耐風圧のあるこの製品を選びました。

埼玉県 越谷市 A.T.様
施工後数日なので、特にありません。デザイン的には気に入っています。

宮崎県 宮崎市 Y.H.様
設置後すぐに梅雨入りしたので、発注から施工までのスピードも満足です。

宮城県 仙台市 O.N.様
サイクルポートの輪止めのポールに園芸用具の鍬やスコップ、脚立、掃除用具等、多数の用具を掛ける用途だったが(高い所に設置してもらった)太すぎて安定した掛け方が出来なかった。細いポールも紐でかけて、そこに吊るして用具を納めました。

茨城県 つくば市 M.Y.様
がっちりしていて、頑丈そう。デザインもすっきりしてます。

神奈川県 海老名市 K.Y.様
色もよく作りもしっかりしていて安心感がある。

神奈川県 川崎市 K.G.様
長さ4,980mm フロントに支柱がないので、駐輪し易い。

東京都 大田区 S.H.様
カタログで何度も迷って決めました。 柱、屋根の色が建物と合って、落ち着いた感じで安心しました。

東京都 北区 Y.I.様
見栄えが良くて、スッキリしていて良いです!

兵庫県 伊丹市 M.S.様
風にも強いということで、こちらの商品を選びました。 熱や光に強い屋根も選べて満足です。

岐阜県 揖斐郡池田町 K.A.様
既存のカーポートの色と合っていて満足しています!

東京都 府中市 H.T.様
耐風に終点を置いて選んだだけあり、すごくしっかりした作りで、留め具も普通の倍ついているようで、気候変化による台風の威力が増している昨今にもとても安心です

東京都 杉並区 H.H.様
全体としていい質感だと思います。風や日光、雪等への対応はまだ分かりません。

東京都 狛江市 I.R.様
大きさも程よいものなので、友人や子供の自転車もこれから置けそうで嬉しいです。

神奈川県 横浜市 A.R.様
玄関前につけましたが、シンプルで圧迫感なく良かったです。

千葉県 千葉市 S.T.様
屋根の形に悩んでましたが、自然なラウンドタイプで十分に雨風をしのげそうです。高台の家なので、風に強いタイプを重視しました。
関連するお客様の声

5つ星のうち5
神奈川県K.M. 様回答日:2012年2月
連絡関係がとても迅速で発注してから施工日の決定までの間の連絡もこまめにして頂いてとてもよかったです。施工もとても丁寧で満足しています。

5つ星のうち4
愛知県M.K. 様回答日:2013年3月
発注してから施工までの期間が早く助かりました。またメールでの問い合わせにも迅速に回答があり安心できました。

5つ星のうち4
宮城県A.K. 様回答日:2011年11月
対応が迅速で、地元の施工業者に依頼できるということが良かったと思う。発注から施工までが、短い期間で出来たので良かった。

5つ星のうち4
福島県H.T. 様回答日:2014年9月
発注から現地調査や施工までの時間が結構かかりましたが、丁寧な仕事できれいに仕上げていただいたと思います。

5つ星のうち5
愛知県K.S. 様回答日:2013年4月
施工までに多少時間がかかりますが、スムーズに発注ができ、施工日の調整もうまくできました。また、利用したいと思います。

5つ星のうち5
宮城県O.N. 様回答日:2022年6月
既存のサイクルポート設置から40年と老朽化し、園芸用品・鍬・スコップ・掃除用の熊手・ホウキ・大中小の脚立・洗車用具等々を雑然と置いていたが今度からは整然と納められた。美観上も素敵に仕上がった。また高齢化のため、隣地境界の生垣剪定に難儀していたので、植栽を取り除き防犯によいシンプルなデザインのフェンス切り替え、すっきりしました。

5つ星のうち5
東京都I.R. 様回答日:2020年10月
新築時に付けていなかったため自転車が雨ざらしなのが非常に気になっておりました。御社のご担当者のメール連絡も、施工してくださった方の丁寧なお仕事も、とても気持ちの良いものでした。もちろん付けていただいたサイクルポートもとても快適です。この度はありがとうございました。

5つ星のうち5
東京都K.S. 様回答日:2020年5月
今までは自転車が雨ざらしでしたので、サイクルポートを検討していました。製品の色も、周囲に溶け込むシャイングレーとスリガラス屋根でよかったです。柱の基礎掘削の際に埋設ケーブルが出てきましたが、無事納まりました。丁寧な仕事で、気持ちの良い職人さんでした。

5つ星のうち5
福島県H.A. 様回答日:2018年7月
近々、高齢の両親と同居することになり、両親用に物置とテラスの設置を検討していたとろ、エクスショップのホームページを見つけ、いろいろなメーカーの商品を比較検討することができました。現地調査では、いろいろとアドバイスしていただき大変良かったです。工事に関しても丁寧に対応していただきありがとうございました。

5つ星のうち5
神奈川県M.T. 様回答日:2017年9月
新居に引っ越すにあたりサイクルポートは必須だと思っていましたが、なるべく安価で施工できるところを探したところ、エクスショップさんが最適だと思いました。事前の連絡のやりとりのスムーズさや疑問点に即座に答えていただけるところも好印象でした。また、何かありましたら利用したいと思います。
関連するブログ記事










関連するよくあるご質問
サイクルポートって何ですか?
【商品カテゴリ >サイクルポート・自転車置き場】(ご質問No.28914)
リレーリアにて、門柱+サイクルポートのようなものの取り扱いはありますか?
【商品カテゴリ >サイクルポート・自転車置き場】(ご質問No.214)
サイクルポートに目安で自転車何台くらいとめられますか?
【商品カテゴリ >サイクルポート・自転車置き場】(ご質問No.720)
サイクルポートと一緒に土間コンクリートを打設できますか?
【商品カテゴリ >サイクルポート・自転車置き場】(ご質問No.721)
スクリーンの取付けについて、「前面のみ」や「側面のみ」の取付けはできますか?
【商品カテゴリ >サイクルポート・自転車置き場】(ご質問No.722)
前の大雪で当社の自転車置き場がつぶれました。 
つきましては新しく作成を考えていますので、一度見に来ていただいて見積もりを作成していただければ幸いです。 よろしく願います。
【商品カテゴリ >サイクルポート・自転車置き場】(ご質問No.961)
自宅の駐車場に屋根を付けたい。
【商品カテゴリ >サイクルポート・自転車置き場】(ご質問No.1009)
プレシオスポートミニを検討しています。
柱の高さを短くして使用したいのですが、工事ではなく物販のみの対応はしていただけるのでしょうか?
 対応していただける場合の納期と商品の入荷方法(輸送時チャーター便?それとも宅配便?)
 など教えていただければ幸いです。
よろしくお願いいたします。
【商品カテゴリ >サイクルポート・自転車置き場】(ご質問No.1100)
タカショーのサイクルポート「アートポートミニ」(21-21、標準柱熱線カット屋根)の設置を考えているのですが、見積もりをお願いできますか?
【商品カテゴリ >サイクルポート・自転車置き場】(ご質問No.1140)
お世話になります。
自宅に設置する駐輪場部材の購入を検討していますが、
三協アルミ カムフィNex R 延長 幅1792mm × 奥行3621mm 標準柱 を購入した場合の納品時期について教えてください。
【商品カテゴリ >サイクルポート・自転車置き場】(ご質問No.1198)























