快適なガレージには必須
お庭に機能的スペースを作り出します
日光、雨・風を防ぎバルコニーを快適に
ガレージの保全・防犯にカーポートと合わせて
お家の収納能力をアップ
ガレージ商品とコンビで高級感を演出
各取扱メーカーの会社名、ロゴ及び商品名等は各社の商標または登録商標です。
| 日 | 月 | 火 | 水 | 木 | 金 | 土 |
|---|---|---|---|---|---|---|
| 1 | 2 | 3 | 4 | 5 | 6 | |
| 7 | 8 | 9 | 10 | 11 | 12 | 13 |
| 14 | 15 | 16 | 17 | 18 | 19 | 20 |
| 21 | 22 | 23 | 24 | 25 | 26 | 27 |
| 28 | 29 | 30 | 31 |
| 日 | 月 | 火 | 水 | 木 | 金 | 土 |
|---|---|---|---|---|---|---|
| 1 | 2 | 3 | ||||
| 4 | 5 | 6 | 7 | 8 | 9 | 10 |
| 11 | 12 | 13 | 14 | 15 | 16 | 17 |
| 18 | 19 | 20 | 21 | 22 | 23 | 24 |
| 25 | 26 | 27 | 28 | 29 | 30 | 31 |
…休業日(現場調査・工事は一部対応)
![]()
【受付時間】9:30 - 17:30(営業日)
![]()
【受付時間】9:30 - 17:30(営業日)
オペレーションスタッフ
エクステリアプランナー有資格者の私たちにお任せください。
ショップ責任者
神(じん)
エクステリア プランナー
有資格者61名
1/3
木附
枡田
重富
吉澤
吉野
小東
池本
山田
佐藤
白崎
新西
伊野
次田
浅川
南
西山
小林
梨田
長谷川
藤田
阿重田
村上
植松
内田
久田
小野
平戸
中島
長石
水口
榮
山崎
清水
室谷
安田
水谷
酒井
神吉
日下部
山中
深田
田中
水田
西田
一氏
岡本
北
坂本
中嶋
岩野
伊藤
上中
高山
竹本
犬井
佐伯
谷川
原
丸山
塚田
松本
上内
島田
森
梅田
松山
山本
小林
倉地
山根
中原
河野
村上
土井
岩破
南
井上
三ツ股
小田
依藤
永禮
林
加藤
石藤
駒井
末吉
山本
芦野
樽井
野上
岡田
木村
池田
西村
藤澤
達川
奥原
那須
小西
森下
1/3
今週のPick Upページ
![]()
ご利用頂いたお客様の口コミ・レビューを「お客様の声」として掲載しております。
全てのご感想を掲載しておりますので、エクスショップの評判としてご参考ください。
正式お見積りと一緒に提出させて頂いております「工事概略図面」もご覧頂けます。
商品や設置場所のご検討にお役立てください。
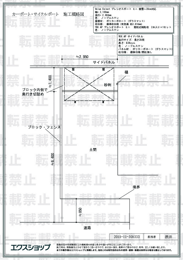
(写真No:30533331)
(サイクルポート・自転車置き場)
| カラー | ノーブルステン |
|---|---|
| サイズ | 幅 2,100mm 奥行 2,904mm |
| 屋根高等 | 標準柱仕様(有効高 約1,814mm) |
| 屋根材等 | ポリカーボネート(ガラスマット) |
| 工事方法 | 地域密着あんしん施工 |
サイクルポートとベランダの屋根を設置後、天気が気にならなくなりました。
プレシオスポート ミニとヴェクターテラス F型 屋根タイプの施工のご依頼を頂きまして、誠に有り難うございます。どちらの商品のお色もお住まいに調和し、後付けとは思えない自然なお仕上がりでございますね。サイクルポートとバルコニー屋根にはどちらも雨や有害な紫外線を遮るポリカーボネートの屋根を採用しており、自転車やバイクを汚れ・傷みから守り、雨天時にも快適にお使い頂けるものと存じます。これからもお客様満足度100%を目指し、スタッフ一同日々精進して参りますので、また機会がございましたら、是非エクスショップにご用命頂きますよう、宜しくお願い申し上げます。
当サイトは以下のセキュリティ機能や保護認定等を備えています。安心してお申し込みください
当サイトは256ビットSSL暗号化に対応しています。入力した個人情報は暗号化して送られますので、安心してご利用ください。
当社はJADMAの正会員です。同協会は法律で位置づけられた団体で、消費者の利益保護と業界の健全な発展の為に活動しています。
こちらの工事に使用しているエクステリア
![]()
プレシオスポート ミニ

工事費・税込
117,000円〜
総合平均評価(星5つ評価)
4.87
商品レビュー数
31件
プレシオスポート ミニはアール屋根・片流れタイプのエクスショップオリジナルブランドのスタンダードサイクルポートです。基準風速Vo=34m/sの耐風性能と20cm相当(600N/㎡)の耐積雪性能を兼ね備えています。自転車は約3〜4台駐輪可能です。
この商品の詳細へ
無料お見積り・現場調査・ご注文もこちら
この商品のレビュー
商品レビュー31件

宮城県 仙台市 O.N.様
自転車2台を余裕で格納してます。またカーポートから玄関までの屋根として濡れずに家まで入れます。

静岡県 静岡市 M.T.様
イメージよりも大きくて良かったです。2台停められれば満足と考えていましたが詰めれば4台停められそう。

香川県 高松市 O.K.様
コンパクトですが、大人の自転車2台、子どもの自転車2台の計4台を何とか駐輪できます。満足しています。

静岡県 静岡市 N.R.様
シンプルでとても良いと思います。とても快適になりました。

大阪府 東大阪市 O.M様
見た目も大手メーカーのものと遜色なく、シンプルでとてもいい感じです。

山梨県 富士吉田市 S.K.様
とても満足しています!施工前に現場担当の方に細かくチェックをして頂き、理想通りのものが出来上がりました!

千葉県 船橋市 K.T.様
大人用2台、子供用2台でぴったりのサイズです。 大人4台になると少し窮屈になるかもと思いました。

福岡県 福岡市 T.Y.様
個人的希望としては縦長の屋根がある自転車ルーフが欲しかったので、商品の細長いものがあると良かったと思います。

愛知県 一宮市 S.K.様
自転車4台置けて、便利ですし、今のところ不満は何もありません。満足しています。

大阪府 大阪市 H.T.様
価格とデザインがいいと思います。 耐久性は分かりませんが総合的に満足しております。

神奈川県 鎌倉市 T.T.様
まだ設置してすぐで雨も降ってないので効力はわかりませんが、見た目はカッコ良く出来ました。あえて言うなら柱を固定するセメントが元のコンクリートと色を合わせられたら完璧です。

東京都 北区 K.K.様
素材の質感も全体の印象も非常に良いと思います。近所の方からも、これを付けることによって外見にまとまりが出て良いとか、家の外見が全体的に重みが増して良いなどのポジティブなご意見を頂いています。あとはどれだけ、どのように経年劣化するかです。

京都府 京都市 M.T.様
まだ数日しか経っていなくて雨も降ったことがないので細かいことは判りませんが、製品自体は丈夫そうで安心できます。

熊本県 合志市 S.M.様
この後、コンクリート施工などの外交工事に入るため、現状駐輪 できていないが外観などについては満足している。

愛媛県 松山市 M.Y.様
施工完了直後なので、商品の評価はまだわからない。

埼玉県 さいたま市 S.Y.様
4台分の自転車にちょうどよいサイズです。また、色も家のサッシと同系色なので、見栄えもよいです。

大阪府 高石市 K.I.様
まだ実際に使用して間もないが見た目もよく屋根も大きくしっかりと雨を防いでくれそう。 知り合いからも立派なサイクルポートだと褒めてもらいました。

奈良県 奈良市 M.Y.様
サイクルポート自体も、家の雰囲気に合っていて気に入っています。

千葉県 長生郡長生村 A.Y.様
支柱もしっかりしており、強度がありそう。見た目もオシャレ。

千葉県 流山市 S.Y.様
自転車を家族分停められるようになり、カバーをかける必要もなくなったので、大満足。
関連するお客様の声

5つ星のうち5
香川県O.K. 様回答日:2023年7月
見積もりを依頼してからのメールでのやりとり、現地見積もり、工事当日と、どれも丁寧に対応してくださり、安心してお任せできました。新居への引っ越し前に希望する外構も終わらせておきたかったのですが、希望通り予定も進み満足です。新居での生活が快適になりそうです。ありがとうございました。

5つ星のうち5
静岡県N.R. 様回答日:2023年3月
これまでは物置がなくカーポートの下に自転車とバイクと一緒に乱雑に置いていたのでとても邪魔でした。物置とサイクルポート設置後はとても快適になりました。工事店様もとても気さくな方で工事内容も分かりやすく説明して工事してくれたのでとても満足のいく仕上がりになりました。もっと早くやっておけばよかった。

5つ星のうち5
東京都O.K. 様回答日:2022年8月
駐輪スペースとしてあった場所は屋根がなく、自転車を真っすぐに入れると敷地からはみ出てしまうくらい長さの足りない場所でした。その為、自転車はカーポートの奥に置き、車に当てないように気を遣いながら出し入れしていました。今回サイクルポートを設置して頂き、限られた場所でも目一杯の屋根がついたお蔭で自転車を移すことができました。プチストレス解消できました。

5つ星のうち4
栃木県N.T. 様回答日:2022年3月
なるべく経済的負担無くにサイクルポートを設置したいと思い、良心的な価格のエクスショップに興味を持ちました。見積もりからの一連のやり取りが丁寧で分かりやすいこともあり、購入に至りました。工事日に部品が足りないというトラブルもありましたが、迅速に対応いただきました。

5つ星のうち4
神奈川県T.T. 様回答日:2022年1月
他での見積りに不信感を持って、こちらにも見積りを出してもらったところ納得できたので決めました。細かいところは、実際に職人さんに見てもらわないと分からないところもありました。連絡やり取りの担当者とは、電話とメールだけですが、小まめに連絡が来て安心できました。

5つ星のうち5
兵庫県Y.A. 様回答日:2024年11月
お隣が畑で大きい柿の木もあり、夏の終わりには蚊が多かったため、高めのフェンスを設置することにしました。工事もきちんと説明しながら進めて下さり、サイクルポートもフェンスも完璧な仕上がりで特にお値段が大満足でした!ありがとうございました!また何かありましたら利用させて頂きます。

5つ星のうち5
栃木県K.T. 様回答日:2024年7月
今までマンションタイプの賃貸にしか住んだことがなかった為、サイクルポートや物置の必要性を感じたことがなかったのですが、雨に濡れていない自転車や物が散乱していない庭は気持ちがいいです。ウッドデッキはそこまで広くないのですが、庭仕事と部屋の同線が良くなり大変満足しています。

5つ星のうち5
京都府Y.T. 様回答日:2024年5月
購入を考えるきっかけになったのは引っ越しです。設置前は自宅の駐車スペースに屋根がなく、バイクカバーが欠かせない状況でした。サイクルポート設置後、バイクカバーはもちろん不要です。雨の日にバイクで帰宅しても、玄関に入る前に、気軽にカッパを脱ぐことができて便利です。雨の日のゴミ出しも、サイクルポート内に出せるので、濡れずに済んで快適です。エクスショップでの見積から、商品決定、施工スケジュール調整、施工日の連絡、支払い方法の案内まで、非常にスムーズに進行しました。不明点に対しては非常に丁寧に対応いただき感謝しております。
関連するブログ記事










関連するよくあるご質問
サイクルポートって何ですか?
【商品カテゴリ >サイクルポート・自転車置き場】(ご質問No.28914)
リレーリアにて、門柱+サイクルポートのようなものの取り扱いはありますか?
【商品カテゴリ >サイクルポート・自転車置き場】(ご質問No.214)
サイクルポートに目安で自転車何台くらいとめられますか?
【商品カテゴリ >サイクルポート・自転車置き場】(ご質問No.720)
サイクルポートと一緒に土間コンクリートを打設できますか?
【商品カテゴリ >サイクルポート・自転車置き場】(ご質問No.721)
スクリーンの取付けについて、「前面のみ」や「側面のみ」の取付けはできますか?
【商品カテゴリ >サイクルポート・自転車置き場】(ご質問No.722)
前の大雪で当社の自転車置き場がつぶれました。
つきましては新しく作成を考えていますので、一度見に来ていただいて見積もりを作成していただければ幸いです。 よろしく願います。
【商品カテゴリ >サイクルポート・自転車置き場】(ご質問No.961)
自宅の駐車場に屋根を付けたい。
【商品カテゴリ >サイクルポート・自転車置き場】(ご質問No.1009)
プレシオスポートミニを検討しています。
柱の高さを短くして使用したいのですが、工事ではなく物販のみの対応はしていただけるのでしょうか?
対応していただける場合の納期と商品の入荷方法(輸送時チャーター便?それとも宅配便?)
など教えていただければ幸いです。
よろしくお願いいたします。
【商品カテゴリ >サイクルポート・自転車置き場】(ご質問No.1100)
タカショーのサイクルポート「アートポートミニ」(21-21、標準柱熱線カット屋根)の設置を考えているのですが、見積もりをお願いできますか?
【商品カテゴリ >サイクルポート・自転車置き場】(ご質問No.1140)
お世話になります。
自宅に設置する駐輪場部材の購入を検討していますが、
三協アルミ カムフィNex R 延長 幅1792mm × 奥行3621mm 標準柱 を購入した場合の納品時期について教えてください。
【商品カテゴリ >サイクルポート・自転車置き場】(ご質問No.1198)


















