各取扱メーカーの会社名、ロゴ及び商品名等は各社の商標または登録商標です。
| 日 | 月 | 火 | 水 | 木 | 金 | 土 |
|---|---|---|---|---|---|---|
| 1 | 2 | 3 | 4 | 5 | 6 | 7 |
| 8 | 9 | 10 | 11 | 12 | 13 | 14 |
| 15 | 16 | 17 | 18 | 19 | 20 | 21 |
| 22 | 23 | 24 | 25 | 26 | 27 | 28 |
| 日 | 月 | 火 | 水 | 木 | 金 | 土 |
|---|---|---|---|---|---|---|
| 1 | 2 | 3 | 4 | 5 | 6 | 7 |
| 8 | 9 | 10 | 11 | 12 | 13 | 14 |
| 15 | 16 | 17 | 18 | 19 | 20 | 21 |
| 22 | 23 | 24 | 25 | 26 | 27 | 28 |
| 29 | 30 | 31 |
…休業日(現場調査・工事は一部対応)
![]()
【受付時間】9:30 - 17:30(営業日)
![]()
【受付時間】9:30 - 17:30(営業日)
オペレーションスタッフ
エクステリアプランナー有資格者の私たちにお任せください。
ショップ責任者
神(じん)
エクステリア プランナー
有資格者61名
1/3
1/3
今週のPick Upページ
![]()
ご利用頂いたお客様の口コミ・レビューを「お客様の声」として掲載しております。
全てのご感想を掲載しておりますので、エクスショップの評判としてご参考ください。
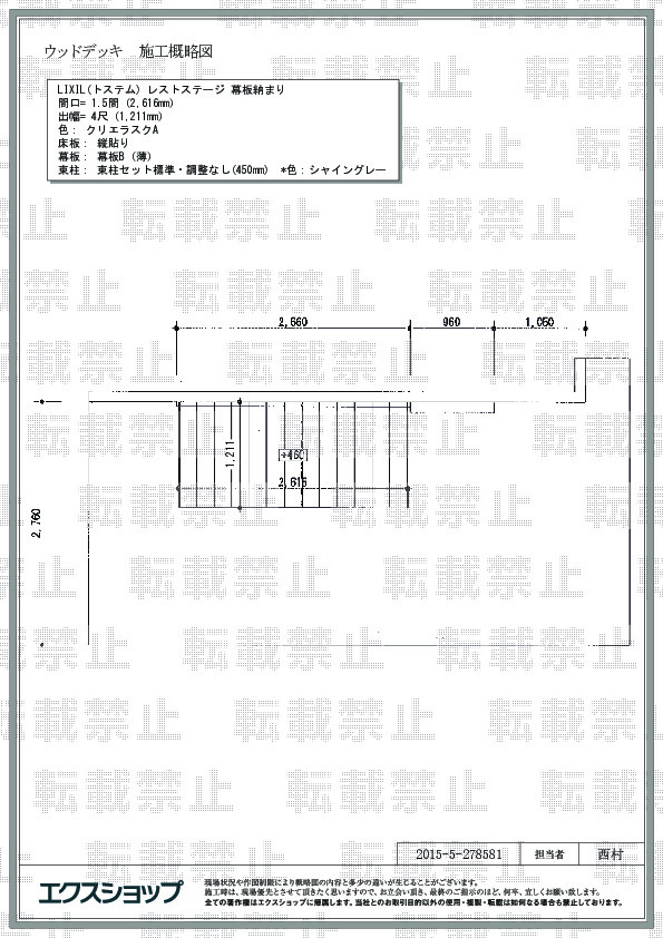
正式お見積りと一緒に提出させて頂いております「工事概略図面」もご覧頂けます。
商品や設置場所のご検討にお役立てください。
(写真No:27858125)
ウッドデッキ設置を考えていて、施工店を選定していました。何社か見積も取って最終的にエクスショップに決めました。大変便利に使っています。工事日は車1台、1人の作業員でビックリしましたが、大変丁寧で手際のいい仕事ぶりで安心しました。テラス屋根の取替えを考えているので、また検討したいと思っています。
数多くございますショップの中からエクスショップをお選び頂き、レストステージの施工をお任せ頂きましたこと、誠に光栄でございます。クリエラスクAのウッドデッキが緑豊かなお庭にすっかり馴染み、ナチュラルなお仕上がりでございますね。『大変便利に使っています』とのご感想を頂戴することが出来、施工担当者も私どもも大変嬉しく存じます。これからもお客様の笑顔の為にエクスショップは日々精進して参ります。また機会がございましたら、是非弊社にご用命くださいますよう、宜しくお願い致します。
当サイトは以下のセキュリティ機能や保護認定等を備えています。安心してお申し込みください
当サイトはSSL暗号化に対応しています。入力した個人情報は暗号化して送られますので、安心してご利用ください。
当社はJADMAの正会員です。同協会は法律で位置づけられた団体で、消費者の利益保護と業界の健全な発展の為に活動しています。
こちらの工事に使用しているエクステリア
![]()
レストステージ 幕板納まり

工事費・税込
114,300円〜
商品レビュー数
127件
レストステージ 幕板納まりは小口部・側面部が幕板で囲まれた人工木デッキです。芯材部には100%リサイクル素材の木粉と樹脂が使用されており、湿気による腐食やシロアリによる食害に困りません。カラーは他のLIXIL製品との相性が良い3種類のクリエカラーをご用意。
この商品の詳細へ
無料お見積り・現場調査・ご注文もこちら