快適なガレージには必須
お庭に機能的スペースを作り出します
日光、雨・風を防ぎバルコニーを快適に
ガレージの保全・防犯にカーポートと合わせて
お家の収納能力をアップ
ガレージ商品とコンビで高級感を演出
各取扱メーカーの会社名、ロゴ及び商品名等は各社の商標または登録商標です。
| 日 | 月 | 火 | 水 | 木 | 金 | 土 |
|---|---|---|---|---|---|---|
| 1 | 2 | 3 | 4 | 5 | 6 | 7 |
| 8 | 9 | 10 | 11 | 12 | 13 | 14 |
| 15 | 16 | 17 | 18 | 19 | 20 | 21 |
| 22 | 23 | 24 | 25 | 26 | 27 | 28 |
| 日 | 月 | 火 | 水 | 木 | 金 | 土 |
|---|---|---|---|---|---|---|
| 1 | 2 | 3 | 4 | 5 | 6 | 7 |
| 8 | 9 | 10 | 11 | 12 | 13 | 14 |
| 15 | 16 | 17 | 18 | 19 | 20 | 21 |
| 22 | 23 | 24 | 25 | 26 | 27 | 28 |
| 29 | 30 | 31 |
…休業日(現場調査・工事は一部対応)
![]()
【受付時間】9:30 - 17:30(営業日)
![]()
【受付時間】9:30 - 17:30(営業日)
オペレーションスタッフ
エクステリアプランナー有資格者の私たちにお任せください。
ショップ責任者
神(じん)
エクステリア プランナー
有資格者61名
1/3
木附
枡田
重富
吉澤
吉野
小東
池本
山田
佐藤
白崎
新西
伊野
次田
南
西山
小林
阿重田
梨田
長谷川
藤田
村上
平戸
植松
内田
久田
中島
長石
水口
榮
山崎
清水
室谷
安田
水谷
小野
酒井
一氏
神吉
日下部
山中
深田
田中
水田
西田
岡本
丸山
北
坂本
中嶋
岩野
伊藤
上中
高山
原
犬井
佐伯
谷川
塚田
松本
小林
森下
上内
島田
森
梅田
松山
山本
小西
倉地
山根
中原
河野
村上
土井
岩破
南
井上
三ツ股
小田
依藤
永禮
林
加藤
石藤
駒井
末吉
山本
芦野
樽井
野上
岡田
木村
池田
西村
藤澤
達川
奥原
那須
1/3
今週のPick Upページ
![]()
ご利用頂いたお客様の口コミ・レビューを「お客様の声」として掲載しております。
全てのご感想を掲載しておりますので、エクスショップの評判としてご参考ください。
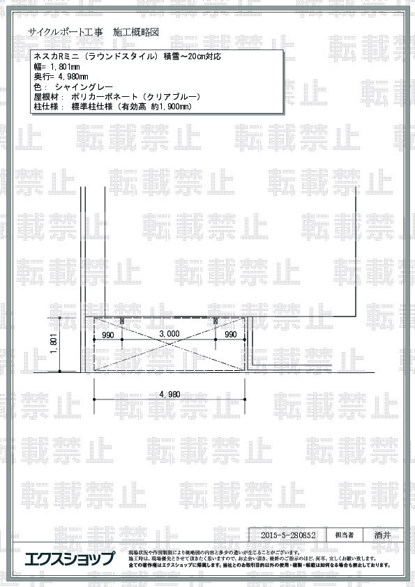
正式お見積りと一緒に提出させて頂いております「工事概略図面」もご覧頂けます。
商品や設置場所のご検討にお役立てください。
(写真No:28085225)
(サイクルポート・自転車置き場)
| カラー | シャイングレー |
|---|---|
| サイズ | 幅 1,801mm 奥行 4,980mm |
| 屋根高等 | 標準柱仕様(有効高 約1,900mm) |
| 屋根材等 | ポリカーボネート(クリアブルー) |
| 工事方法 | 地域密着あんしん施工 |
バイクや自転車にカバーを掛けなくてもあまり濡れません。サイクルポートの屋根が窓の下にあるので、家の前の通りから部屋を見ると、サイクルポートの屋根が遮り、部屋の中が見えにくくなり良かったです。
この度はネスカRミニ (ラウンドスタイル)の施工をご依頼頂き、誠に有り難うございました。片側支柱のサイクルポートが敷地にぴったり納まり、スマートなお仕上がりでございますね。雨や紫外線から自転車をお守りするだけでなく、通りに面したお部屋の目隠しとしてもお役立て頂いておりますこと、私どもも大変嬉しく存じます。これからもお客様のご満足の為に、エクスショップは日々精進して参ります。また機会がございましたら、是非弊社にご用命くださいますよう、宜しくお願い致します。
当サイトは以下のセキュリティ機能や保護認定等を備えています。安心してお申し込みください
当サイトはSSL暗号化に対応しています。入力した個人情報は暗号化して送られますので、安心してご利用ください。
当社はJADMAの正会員です。同協会は法律で位置づけられた団体で、消費者の利益保護と業界の健全な発展の為に活動しています。
こちらの工事に使用しているエクステリア
![]()
ネスカRミニ (ラウンドスタイル)

工事費・税込
121,200円〜
総合平均評価(星5つ評価)
4.77
商品レビュー数
498件
ネスカRミニ (ラウンドスタイル)は丸みのある屋根形状が目を引くサイクルポート・駐輪場です。基準風速Vo=34m/sの耐風性能も備わり、20cm相当の積雪に対応します。自転車を約3〜8台停められます(自転車1台の幅を600mmとして計算)。
この商品の詳細へ
無料お見積り・現場調査・ご注文もこちら
この商品のレビュー
商品レビュー498件

静岡県 静岡市 M.T.様
強風時の支え柱が思ったより車側に きたものの他は希望通り。

奈良県 奈良市 T.K.様
まだ施工したばかりなのでまわりの反応わかりませんが、私は満足してます。

茨城県 つくばみらい市 T.M.様
家ともマッチしていて、オシャレ。 これから夏に向けて日差しも遮ってくれて助かります。

大阪府 大阪市 Y.O.様
ホームセンターの商品と違いしっかりしていました。

兵庫県 伊丹市 N.T.様
色合いを含めて家の外装とマッチしていて満足しています。

埼玉県 上尾市 T.H.様
シンプルなデザインながら耐久性もありそうでとっても満足しています。

埼玉県 久喜市 O.T.様
今まで自転車は倉庫にしまっていて出し入れが不便でしたが、外に出しっぱなしでも雨に濡れないので楽になりました。

東京都 北区 K.M.様
クリアマットの色が離れて見ると想像以上にブルーでしたが、とても満足しています。

長野県 長野市 S.Y.様
元は別の商品を検討していましたが設置場所のサイズ感に合わせてこちらの商品を提案して頂きました。結果的にサイズ感がちょうど良く収まっているため大変満足しています。

宮崎県 宮崎市 Z.T.様
新築戸建ての外壁保障に抵触しないよう、外壁に固定しない独立タイプを検討し決めました。雨対策ももちろんですが、家の外観が良くなりました。予想通りの出来栄えで満足です。 商品に関しては、個人的にはもう少し低くても良いのになぁ〜(雨がより防げる為)とも思いました。見た目は高い方が良いのでしょうが。
関連するお客様の声

5つ星のうち5
滋賀県N.M. 様回答日:2019年7月
ベランダの屋根とサイクルポートをお願いしました。洗濯物をベランダに干しているのですが屋根がなかった為、雨の日は部屋干ししていました。屋根を付けてもらってから雨の日も洗濯物が干せるようになったし、急いで取り込まなくても良くなったのでとても良かったです。自転車も今まで雨ざらしでしたがサイクルポートを付けて頂いて濡れずに済み朝も時間を取らず助かってます。

5つ星のうち5
神奈川県M.M. 様回答日:2015年4月
サイクルポートの下にバイクを置くのでバイクの色あせやカバーが長持ちしそう。ハイルーフ仕様で高さもよかったと思う。もう少し屋根の面積があればもっとよかった。建物とのマッチングもいい。

5つ星のうち5
宮城県K.M. 様回答日:2020年8月
自転車が雨ざらしになっていたので、サイクルポートを設置しました。サイクルポートの柱が窓に重ならないように上手く施工して頂き、満足の仕上がりです。

5つ星のうち5
静岡県K.M. 様回答日:2016年6月
サイクルポートを設置したいと思ったのがきっかけです。家の中に自転車を置いていたので、その分スペースができてすっきりしました。

5つ星のうち5
京都府S.K. 様回答日:2018年9月
以前は、サイクルポートがなく、雨が降ると自転車が濡れて大変でしたが、サイクルポートを設置して頂いてからはそのような不安も無くなりました。

5つ星のうち4
大分県T.M. 様回答日:2018年9月
バイクや自転車をよく使うので雨ざらしが気になっていて、サイクルポートをお願いしました。設置後は、バイクや自転車が雨に濡れることなく安心して過ごせてます。

5つ星のうち5
東京都Y.S. 様回答日:2019年3月
自転車のカバーを付けたり外したりが面倒だったのですが屋根がついたので、カバーを付けなくても自転車が雨に濡れなくなって、とても快適になりました。

5つ星のうち4
埼玉県Y.Y. 様回答日:2018年7月
購入のきっかけはずっとサイクルポートが欲しかったため。屋根ができたおかげで、自転車が濡れる事が減りました。

5つ星のうち5
京都府Y.A. 様回答日:2016年12月
サイクルポートを設置する前は、雨ざらしだったので、屋根ができたことで、すごく快適になりました。雨が降った後も、サドルが濡れていず、カバーをかける手間もいらなくなりました。

5つ星のうち5
東京都M.K. 様回答日:2021年3月
自転車が雨ざらしでカバーをかけたり外したりするのが凄い手間だったのでサイクルポートを設置しました。自転車が雨に濡れたり、カバーをかける手間がなくなり便利になりました。
関連するブログ記事










関連するよくあるご質問
サイクルポートって何ですか?
【商品カテゴリ >サイクルポート・自転車置き場】(ご質問No.28914)
リレーリアにて、門柱+サイクルポートのようなものの取り扱いはありますか?
【商品カテゴリ >サイクルポート・自転車置き場】(ご質問No.214)
サイクルポートに目安で自転車何台くらいとめられますか?
【商品カテゴリ >サイクルポート・自転車置き場】(ご質問No.720)
サイクルポートと一緒に土間コンクリートを打設できますか?
【商品カテゴリ >サイクルポート・自転車置き場】(ご質問No.721)
スクリーンの取付けについて、「前面のみ」や「側面のみ」の取付けはできますか?
【商品カテゴリ >サイクルポート・自転車置き場】(ご質問No.722)
前の大雪で当社の自転車置き場がつぶれました。
つきましては新しく作成を考えていますので、一度見に来ていただいて見積もりを作成していただければ幸いです。 よろしく願います。
【商品カテゴリ >サイクルポート・自転車置き場】(ご質問No.961)
自宅の駐車場に屋根を付けたい。
【商品カテゴリ >サイクルポート・自転車置き場】(ご質問No.1009)
プレシオスポートミニを検討しています。
柱の高さを短くして使用したいのですが、工事ではなく物販のみの対応はしていただけるのでしょうか?
対応していただける場合の納期と商品の入荷方法(輸送時チャーター便?それとも宅配便?)
など教えていただければ幸いです。
よろしくお願いいたします。
【商品カテゴリ >サイクルポート・自転車置き場】(ご質問No.1100)
タカショーのサイクルポート「アートポートミニ」(21-21、標準柱熱線カット屋根)の設置を考えているのですが、見積もりをお願いできますか?
【商品カテゴリ >サイクルポート・自転車置き場】(ご質問No.1140)
お世話になります。
自宅に設置する駐輪場部材の購入を検討していますが、
三協アルミ カムフィNex R 延長 幅1792mm × 奥行3621mm 標準柱 を購入した場合の納品時期について教えてください。
【商品カテゴリ >サイクルポート・自転車置き場】(ご質問No.1198)


















