都道府県で探す
商品タイプで探す
快適なガレージには必須
玄関周りは、まずここから
お庭に憩いのスペースを作り出します
お家の収納能力をアップ
お庭に機能的スペースを作り出します
ガレージの保全・防犯にカーポートと合わせて
各取扱メーカーの会社名、ロゴ及び商品名等は各社の商標または登録商標です。
| 日 | 月 | 火 | 水 | 木 | 金 | 土 |
|---|---|---|---|---|---|---|
| 1 | 2 | 3 | 4 | 5 | 6 | |
| 7 | 8 | 9 | 10 | 11 | 12 | 13 |
| 14 | 15 | 16 | 17 | 18 | 19 | 20 |
| 21 | 22 | 23 | 24 | 25 | 26 | 27 |
| 28 | 29 | 30 | 31 |
| 日 | 月 | 火 | 水 | 木 | 金 | 土 |
|---|---|---|---|---|---|---|
| 1 | 2 | 3 | ||||
| 4 | 5 | 6 | 7 | 8 | 9 | 10 |
| 11 | 12 | 13 | 14 | 15 | 16 | 17 |
| 18 | 19 | 20 | 21 | 22 | 23 | 24 |
| 25 | 26 | 27 | 28 | 29 | 30 | 31 |
…休業日(現場調査・工事は一部対応)
![]()
【受付時間】9:30 - 17:30(営業日)
![]()
【受付時間】9:30 - 17:30(営業日)
オペレーションスタッフ
エクステリアプランナー有資格者の私たちにお任せください。
ショップ責任者
神(じん)
エクステリア プランナー
有資格者61名
1/3
木附
枡田
重富
吉澤
吉野
小東
池本
山田
佐藤
白崎
新西
伊野
次田
浅川
南
西山
小林
梨田
長谷川
藤田
阿重田
村上
植松
内田
久田
小野
平戸
中島
長石
水口
榮
山崎
清水
室谷
安田
水谷
酒井
神吉
日下部
山中
深田
田中
水田
西田
一氏
岡本
北
坂本
中嶋
岩野
伊藤
上中
高山
竹本
犬井
佐伯
谷川
原
丸山
塚田
松本
上内
島田
森
梅田
松山
山本
小林
倉地
山根
中原
河野
村上
土井
岩破
南
井上
三ツ股
小田
依藤
永禮
林
加藤
石藤
駒井
末吉
山本
芦野
樽井
野上
岡田
木村
池田
西村
藤澤
達川
奥原
那須
小西
森下
1/3
今週のPick Upページ
![]()
ご利用頂いたお客様の口コミ・レビューを「お客様の声」として掲載しております。
全てのご感想を掲載しておりますので、エクスショップの評判としてご参考ください。
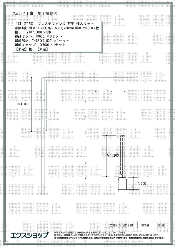
正式お見積りと一緒に提出させて頂いております「工事概略図面」もご覧頂けます。
商品や設置場所のご検討にお役立てください。
(写真No:28571826)
(フェンス・柵・塀)
| カラー | オータムブラウン |
|---|---|
| サイズ | 幅 1,980mm 高さ 1,200mm |
| 工事方法 | 地域密着あんしん施工 |
とても親切で作業も早かった
この度は、プレスタフェンス 7Y型の施工をご依頼頂きまして、誠に有り難うございます。オータムブラウンの落ち着いた色味のフェンスは、他とは一味違う、品のあるお庭を演出してくれるものと存じます。また、近隣からの視線や立ち入りを防ぎ、防犯性が高まりましたので、これまで以上に安心・快適にお過ごし頂けるのではないでしょうか。今後も弊社は、丁寧かつ迅速な対応を心掛け、お客様のご期待を裏切らないよう、日々サービスの向上に努めて参ります。またの機会がございましたら、是非お気軽にエクスショップにご用命下さいますよう、宜しくお願い申し上げます。
当サイトは以下のセキュリティ機能や保護認定等を備えています。安心してお申し込みください
当サイトは256ビットSSL暗号化に対応しています。入力した個人情報は暗号化して送られますので、安心してご利用ください。
当社はJADMAの正会員です。同協会は法律で位置づけられた団体で、消費者の利益保護と業界の健全な発展の為に活動しています。
こちらの工事に使用しているエクステリア
![]()
フェンスAB YS2型 横スリット2

工事費・税込
99,200円〜
総合平均評価(星5つ評価)
4.54
商品レビュー数
47件
フェンスAB YS2型 横スリット2は目隠し率82.8%の横格子タイプの目隠しフェンスです。採光率17.2%・通風率16%と、程よくプライベート空間を守りながら、敷地内に風と光を通すデザインになっています。
この商品の詳細へ
無料お見積り・現場調査・ご注文もこちら
この商品のレビュー
商品レビュー47件

島根県 松江市 H.F.様
今までの年に数回剪定作業を行わなくなった事が一番嬉しく思います。フェンスの全長が30mと長く、よけいにスッキリし、母屋とのバランスが非常に良く綺麗になったと周辺の方が言って下さった。

宮城県 仙台市 S.S.様
設置場所は、風の影響を受けやすい角地のため、フェンスは、風の抜けやすいタイプを選択。事前にリクセルのショールームで実物を見れたのがよかった。完成度が高く、想像以上に素晴らしい景観となりました。

千葉県 袖ケ浦市 M.M.様
外観を損ねることなく、外からの目隠しにもなり満足している。

東京都 板橋区 T.M.様
採光性とのバランスが良くとれたフェンスだと思います。

大阪府 阪南市 O.Y.様
周りの状況からみて、ちょっとフェンスが高すぎたのかなと思っています。

埼玉県 吉川市 K.C.様
作りもしっかりしていて満足しています。 見た目もオシャレで可愛いです。

鹿児島県 伊佐市 M.H.様
門扉かゲートのいずれかと同じ製品があれば良かったのですが、出来上がりはさほど違和感もなく満足です。

兵庫県 相生市 A.H.様
隣家の玄関前に接する境界なのですが、これまで通り、人影が見えて安心して車の出し入れができます。

岐阜県 高山市 N.F.様
シャイングレーの色合いが、たいへん明るく爽やかな感じがして、すごく満足しています。

宮城県 富谷市 A.M.様
目隠しタイプでまたシンプルな外観で気に入っている。

長野県 上伊那郡辰野町 T.H.様
浴室の目隠しの目的もありましたので、適度な高さ、防犯性を考えて決めました。圧迫感も少なくてよい製品だと思います。
関連するお客様の声

5つ星のうち4
京都府S.M. 様回答日:2022年6月
ラティスフェンスの年数が経過し、強風台風の不安を感じていた。安心感が有り少し広くなった気がします。ネットショップの不安は有りましたが、先ずは、見積無料を確認、見積に来られた方の人柄、後は、商品はメイカー品なので価格、一番分からないのが施工技術、これは、他業者でも同じで、来てもらった人によるので前以って分からない。今回当方の施工者は十分満足しています。

5つ星のうち4
大阪府O.Y. 様回答日:2021年12月
生垣の樹木が通路側に張り出しており、また、年数が経ち、ところどころ枯れ木も目立っていたことからフェンス設置を決めました。フェンス設置で、すっきりとなり、併せ風除けの効果もあり、満足しています。殆どが、メールを通してのやり取りで営業担当者とも、顔を合わせることもなく電話での声すら聞いていない。これからの時代はこれもありかなと思っています。

5つ星のうち5
埼玉県M.S. 様回答日:2020年12月
家の向かいの空き地に新築住宅が建ち、目隠しフェンスが必要となりました。同時に、掃き出し窓の上部に雨除けのルーフ(2箇所)も施工していただきました。申し込みから施工完了まで、すべての流れが非常にスムーズでした。イメージしていた以上の仕上がりに、設置目的も充分に解決し、大変満足しております。

5つ星のうち4
兵庫県Y.T. 様回答日:2018年2月
フェンスが老朽化していたこと、および庭の木を切り目隠しがなくなったため設置を検討しました。圧迫感のない目隠しフェンスで、狭い庭が少し広くなりスッキリした感じになりました。発注から工事完成までとてもスピーディーで、利便性ならびにコストパフォーマンスの良さを感じました。

5つ星のうち5
鹿児島県K.S. 様回答日:2016年5月
テラスとウッドをつけたことで雨を気にせず外に出られるようになった。カーポートをつけることで火山灰をきにしなくてすむようになった。外柵をつけたことで目隠しと子供の脱落防止になったので大変助かってます。担当者が親身になって希望にそうように考えてくれたことが一番良かったです。

5つ星のうち5
石川県O.A. 様回答日:2025年5月
隣の飲食店からの目隠しのために購入。玄関の出入りの際飲食店の窓からお客さんと目が合うのが苦痛で設置した。また、隣の飲食店はこちらより1m程土地が高くなっていたため普通のフェンスでは高さ制限があり目隠しで欲しい高さに足りないことや高さが出せても費用が予算より高くなり過ぎたことから高さも出せて手頃なこの商品を選んだ。

5つ星のうち4
神奈川県H.F. 様回答日:2025年4月
以前の竹垣が本物の竹を使用したものだったため腐食や劣化が進み、次は樹脂製のものを設置したいと考え、ネット等を見て検討していたところ、総合的に見て貴社の製品が適当と考えました。樹脂製にかえたため腐食や劣化の心配が少なくなり、見た目も本物の竹と比べさほど違和感もないように感じました。

5つ星のうち4
石川県T.M. 様回答日:2025年4月
4年ほど前に建築業者にフェンスを建てる場合の費用を伺っていましたが、それより遥かにお安く施工できました。新築時に諦めていたフェンスだったので、やっと思い描いていた形になり満足してます。人目が気にならなくなり、テラス部分がプライベートスペースになりました。これから色々揃えるのが楽しみです。
関連するブログ記事










関連するよくあるご質問
フェンスについての質問なのですが、 見積もりでは3枚からの注文となっていますが、2枚以下の注文は可能ですか?
【商品カテゴリ >フェンス・柵・塀】(ご質問No.28909)
フェンスの一枚あたりの価格に柱の価格も含まれていますか?
【商品カテゴリ >フェンス・柵・塀】(ご質問No.3)
高さが1000mm以上のフェンスの取り扱いはありますか?
【商品カテゴリ >フェンス・柵・塀】(ご質問No.81)
フェンスって何ですか?
【商品カテゴリ >フェンス・柵・塀】(ご質問No.28913)
現在庭にフェンスがありますが、全体的に位置をずらしたいと思っています。フェンスは既存のものを使用します。このような工事はできませんか?
【商品カテゴリ >フェンス・柵・塀】(ご質問No.8)
隣家のフェンスに車をぶつけてしまい、フェンスの一部を曲げてしまいました。修理をしたいと考えています。対応可能ですか?
【商品カテゴリ >フェンス・柵・塀】(ご質問No.9)
現在、アルミのメッシュフェンスが付いているのですが、そのフェンスの上に目隠しタイプのフェンスを取り付ける事は可能ですか?
【商品カテゴリ >フェンス・柵・塀】(ご質問No.27)
屋外用で可動式フェンスの取り扱いはありますか?
【商品カテゴリ >フェンス・柵・塀】(ご質問No.54)
TOEXのGスクリーンの取り扱いはありますか?
【商品カテゴリ >フェンス・柵・塀】(ご質問No.92)
三協立山アルミのララスクリーンの取り扱いはありますか?
【商品カテゴリ >フェンス・柵・塀】(ご質問No.113)


















