各取扱メーカーの会社名、ロゴ及び商品名等は各社の商標または登録商標です。
| 日 | 月 | 火 | 水 | 木 | 金 | 土 | 
|---|---|---|---|---|---|---|
| 1 | 2 | 3 | 4 | |||
| 5 | 6 | 7 | 8 | 9 | 10 | 11 | 
| 12 | 13 | 14 | 15 | 16 | 17 | 18 | 
| 19 | 20 | 21 | 22 | 23 | 24 | 25 | 
| 26 | 27 | 28 | 29 | 30 | 31 | 
| 日 | 月 | 火 | 水 | 木 | 金 | 土 | 
|---|---|---|---|---|---|---|
| 1 | ||||||
| 2 | 3 | 4 | 5 | 6 | 7 | 8 | 
| 9 | 10 | 11 | 12 | 13 | 14 | 15 | 
| 16 | 17 | 18 | 19 | 20 | 21 | 22 | 
| 23 | 24 | 25 | 26 | 27 | 28 | 29 | 
| 30 | 
 …休業日(現場調査・工事は一部対応)
…休業日(現場調査・工事は一部対応)

【受付時間】9:30 - 17:30(営業日)

【受付時間】9:30 - 17:30(営業日)
オペレーションスタッフ
エクステリアプランナー有資格者の私たちにお任せください。
ショップ責任者
神(じん)
エクステリア プランナー
有資格者61名
1/3
木附
枡田
重富
吉澤
吉野
小東
池本
山田
佐藤
白崎
新西
伊野
次田
浅川
南
西山
小林
梨田
長谷川
藤田
阿重田
村上
植松
内田
久田
小野
平戸
中島
長石
水口
榮
山崎
清水
室谷
安田
水谷
酒井
神吉
日下部
山中
深田
田中
水田
西田
一氏
岡本
北
坂本
中嶋
岩野
伊藤
上中
高山
竹本
犬井
佐伯
谷川
原
丸山
塚田
松本
上内
島田
森
梅田
松山
山本
小林
倉地
山根
中原
河野
村上
土井
岩破
南
井上
三ツ股
小田
依藤
永禮
林
加藤
石藤
駒井
末吉
山本
芦野
樽井
野上
岡田
木村
池田
西村
藤澤
達川
奥原
那須
小西
森下
1/3
今週のPick Upページ

ご利用頂いたお客様の口コミ・レビューを「お客様の声」として掲載しております。
全てのご感想を掲載しておりますので、エクスショップの評判としてご参考ください。
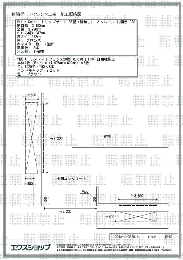
正式お見積りと一緒に提出させて頂いております「工事概略図面」もご覧頂けます。
商品や設置場所のご検討にお役立てください。

                       
                
(写真No:28681527)
 (カーゲート)
(カーゲート)
| カラー | ブロンズ | 
|---|---|
| サイズ | 全幅 3,290mm 高さ 1,182mm | 
| 柱タイプ | |
| 工事方法 | 地域密着あんしん施工 | 
フェンスや車庫扉を一新するだけで、家まできれいになったような気持ちになれるのでお勧めです。
この度は伸縮カーゲートの施工をご依頼頂きまして、誠に有り難うございます。ご自宅の敷地と、前の道路を区切る頼もしい存在でございますね。外観もスタイリッシュですが、お住まいの防犯性も高まり、安心してお過ごし頂けるものと存じます。今後も絶えず企業努力を続け、更にお客様にご満足頂けるサービスを目指して参ります。また機会がございましたら、是非エクスショップにご用命頂きますよう宜しくお願い致します。
当サイトは以下のセキュリティ機能や保護認定等を備えています。安心してお申し込みください
当サイトは256ビットSSL暗号化に対応しています。入力した個人情報は暗号化して送られますので、安心してご利用ください。
当社はJADMAの正会員です。同協会は法律で位置づけられた団体で、消費者の利益保護と業界の健全な発展の為に活動しています。
こちらの工事に使用しているエクステリア

トリップゲートU 1型 シンプル ノンレール 片開き

工事費・税込
76,900円〜
総合平均評価(星5つ評価)
4.54
商品レビュー数
115件
トリップゲートU 1型 シンプル ノンレール 片開きはエクスショップオリジナルブランドの伸縮式カーゲートの片開き仕様です。商品カラーは5種類の中からお選びいただけます。※1型は鍵が付いていないため、市販の南京錠を使用して施錠します。
この商品の詳細へ
無料お見積り・現場調査・ご注文もこちら
この商品のレビュー
商品レビュー115件

三重県 津市 N.C.様
格納時、施錠時がしっかりしていて安心です。

東京都 杉並区 S.T.様
南京錠をつけていますが、ゲート自体に鍵がついていれば、なおよかったと思います。

兵庫県 神戸市 T.Y.様
設置したばかりでわかりませんが、よいものだといいなと思います。

神奈川県 川崎市 N.A.様
相見積もりで最安値でも価格以上の品質。その後のサポートにも安心感有り。

神奈川県 横浜市 T.Y.様
見かけに劣るが、値段相応と思っています。 もし次回があればガイド格子は倍の本数20本が良い(82歳なので次回はありません)

千葉県 松戸市 S.Y.様
写真の見た目より、かなりしっかりした物でした。

東京都 練馬区 I.M.様
思ったより重量がなく、稼働は楽だが軽すぎて勢いがついてしまう。

熊本県 熊本市 S.K.様
商品自体には、満足しているが、車庫のゲートと言うことで、全開タイプを選択したが、現在車庫の利用はないので、2/3程閉まって、残り部分は、扉が(ドア)になって 人が通れるだけの開閉ドアみたいなのが、あればよかった。種類を見て検討すればよかった。

福岡県 福岡市 Y.H.様
もう少しグレードの高い物にしとけば良かったと少し思ってます。

岐阜県 可児市 M.K.様
やはりしっかりした作りになっており、頑丈な見た目と造りがきれいなので高級感があります。

岐阜県 土岐市 N.I.様
同じ商品だと思うから敢えて聞かなかったけど、注文した商品名と届いて施行された商品名とメーカー名とが違っていた。そこのところを、最初に伝えて貰わないと、疑念を持たれるのでは。

埼玉県 春日部市 I.T.様
見た目、価格、取り付け共に非常満足している。

滋賀県 大津市 I.K.様
見た目もシンプルで、開閉も楽にでき、開けた時も場所を取らずスッキリしている。

千葉県 千葉市 F.M.様
これまで使っていた物より使い勝手が良く、気に入っている。
関連するお客様の声

5つ星のうち5
埼玉県H.M. 様回答日:2022年7月
老朽、経年劣化により破損していたため、取り換えを検討していました。カーポートは、柱が2本に減ったことから、空間が広くなり、開放感がでました。カーポートゲートは、ロックが軽くなったため、開閉のストレスが減少しました。門扉は、重厚感がでて良好な門構えになりました。

5つ星のうち5
埼玉県K.K. 様回答日:2021年10月
門扉はノブが動かなくなり、宅急便の方に大変迷惑を掛けておりましたが、新しく設置して頂いた門扉は軽くて開けやすく、締めやすいです。カーゲートもキャスターが動かなくなっていましたが、軽くて開閉しやすいカーゲートに取り替えて大変快適になりストレスがなくなりました。とても嬉しいです。

5つ星のうち5
東京都Y.K. 様回答日:2019年9月
従来お願いしていたリフォーム会社の見積もりがグレードもさることながら価格が高すぎて、ネットで検索して御社のHPから容易に希望の品物を選択できた。施工前調査から施工まで全く問題がなかった。従来のゲートが重くて扱いにくかったが今回の製品は軽くて扱いやすくなった。

5つ星のうち5
東京都H.M. 様回答日:2019年4月
以前のゲートだと大型の車が入らないと言われたので入れるようにする必要がありました。選ぶ際にもこちらの希望通りにまた綺麗に設置していただき、開閉もスムーズになったので良かったです。インターネットで不安でしたが問い合わせから工事までが迅速で問題も特になかったので満足です。

5つ星のうち5
千葉県M.H. 様回答日:2018年4月
既存のゲートが設置後かなり経っていて、各所に損傷個所があり、応急の仮修理をしていたが、傷みがひどくなり、そのまま使用するのが不安になったため、交換した。既存の物と比べ重厚感はなくなったが、安心して使えることから、工事を施工して頂いたことに大変満足している。

5つ星のうち5
福岡県F.K. 様回答日:2025年4月
庭に侵入する害獣(イノシシ)対策のため、玄関への通路入口にネットを張っていたので見栄えを考え、カーゲートを設置。家の庭のフェンスとマッチして見栄えと開閉がよくなった。ネット注文に不安があったが、メール、電話共に係の対応がすばらしく、問題なく設置完了しました。

5つ星のうち5
熊本県T.I. 様回答日:2024年5月
大事にしているバイクが雨ざらし、また防犯上も心配することが多かったのですが、商品の使用が便利なようにと、時間をしっかりとかけながら説明や意見を取り入れて頂きました。非常に狭小なスペースでしたので、切り詰め作業も大変だったと思います。施工後、雨も沢山降りましたが安心していられます。ありがとうございました。

5つ星のうち5
茨城県A.A. 様回答日:2024年4月
前回はテラスを、お願いしました。とても良く今回マタリピーターさせて頂きましたです防犯対策の為にカーゲート、メッシュフェンスを注文しました。ペットがいる為、ペットガード付きにしました。広々とドックランが完成しました。担当の方が相談し易い方に恵まれ施工も順調に、進みました。ペットが小型なので対策として、ネットを自作して気に入ってます。
関連するブログ記事
関連するよくあるご質問
カーゲートって何ですか?
【商品カテゴリ >カーゲート】(ご質問No.28915)
カーポートとカーゲートの交換をしたいのですが、どのような商品が最適か提案をいただきたく、調査と打合せをお願いいたします。
【商品カテゴリ >カーポート】(ご質問No.2223)
 TOSTEM  アルピタUR 片開き 
 
カラー:ブロンズ 規格幅:4180 (mm) 規格高:1150 (mm) 
   
形状タイプ:ノンレールタイプ 
 自家の家の車庫に家族で設置したいのですが、商品のみのご購入が出来ますか??
商品のみの値段が解れば、是非教えて下さい。
【商品カテゴリ >カーゲート】(ご質問No.2235)
 カーブポートシグマU ワイド 
シャレオRX門扉、カーゲート
 カーブポートシグマとどう違うのですか?
それと屋根材ですが、ポリカですりガラス調の色は出来ますか?
熱線吸収アクアシャインポリカの色は?
いま新築中ですが、建築業者との打ち合わせは可能なのですか?
門扉とカーポート、シャレオのカーゲート考えてます。
現場でのアドバイス等もお願い出来るのでしょうか?
【商品カテゴリ >カーポート】(ご質問No.2268)
 TOEX ワイドオーバードアR1型 ハイルーフ電動タイプ 5400x1000 
 キューブポートワイド ハイルーフタイプ 5400x5700 
 施工日数も教えてください。
【商品カテゴリ >カーゲート】(ご質問No.2269)
 カーポートについてお尋ねします。
メーカー TOSTEM 商品名 スクエード DG遮光
             スクエード DG採光
 千葉県
 上記カーポートにオプションがあります。ハイルーフ仕様、サイドパネル、縦連棟施行の意味が分かりません。また跳ね上げ式カーゲートが設置可能でしょうか。宜しくお願いします。
【商品カテゴリ >カーポート】(ご質問No.2323)
 神戸市
 現在自動カーゲートがついていますが、ゲートの幅を広くしたいと考えています。
一度現地を見てもらい作業できるか確認して欲しいです
【商品カテゴリ >カーゲート】(ご質問No.2375)
新日軽 エクジスフォー30-51-51 3000×10173 ポリカーボネート板 定価568,000円
    カーゲート XA型 2872×1250 定価140,200円
          MA型 2955×1120 定価85,000円
    ポスト OM2型 定価35,000+3,000円
杉並区
商品のみの購入を予定しています。当方の工務店に施行を依頼する予定。
【商品カテゴリ >カーポート】(ご質問No.2455)
バルコニーを2階に新設。
その部分の窓をバルコニーに出入りできるように取り替え。
カーゲート新設。
など、今度中古住宅を購入するのですが実際にどのサイズが適当なのかまた、トータルでいくらになるのか実際に現調時に積算してほしいのですが可能でしょうか?
TOSTEM  アルピタUM 片開き 
カラー:ブロンズ 規格幅:3020 (mm) 規格高:1050 (mm) 
形状タイプ:ノンレールタイプ 
TOSTEM  アクトステージB型 アクリル透明タイプ 
カラー:オータムブラウン 規格幅:3650 (mm) 規格奥行:1485 (mm) 床材:グレイ 柱仕様:柱建て式 
【商品カテゴリ >カーゲート】(ご質問No.2490)
施工場所は、埼玉県
 
三協アルミのスペースマンテン(カーゲート)UC/後づけガイドレールタイプで13S+21Mで親子両開き設置して欲しいのですが、現状、門扉のポールが両サイドに立ち、床面がタイル張りで傾斜が有ります。はつってから、セメントで水平にして頂いて施工して頂くと、どの位になるでしょうか?同じ物でしたら、メーカーは拘りません。
 
【商品カテゴリ >カーゲート】(ご質問No.2532)























