各取扱メーカーの会社名、ロゴ及び商品名等は各社の商標または登録商標です。
| 日 | 月 | 火 | 水 | 木 | 金 | 土 |
|---|---|---|---|---|---|---|
| 1 | 2 | 3 | 4 | 5 | 6 | 7 |
| 8 | 9 | 10 | 11 | 12 | 13 | 14 |
| 15 | 16 | 17 | 18 | 19 | 20 | 21 |
| 22 | 23 | 24 | 25 | 26 | 27 | 28 |
| 29 | 30 | 31 |
| 日 | 月 | 火 | 水 | 木 | 金 | 土 |
|---|---|---|---|---|---|---|
| 1 | 2 | 3 | 4 | |||
| 5 | 6 | 7 | 8 | 9 | 10 | 11 |
| 12 | 13 | 14 | 15 | 16 | 17 | 18 |
| 19 | 20 | 21 | 22 | 23 | 24 | 25 |
| 26 | 27 | 28 | 29 | 30 |
…休業日(現場調査・工事は一部対応)
![]()
【受付時間】9:30 - 17:30(営業日)
![]()
【受付時間】9:30 - 17:30(営業日)
オペレーションスタッフ
エクステリアプランナー有資格者の私たちにお任せください。
ショップ責任者
神(じん)
エクステリア プランナー
有資格者61名
1/3
1/3
今週のPick Upページ
![]()
ご利用頂いたお客様の口コミ・レビューを「お客様の声」として掲載しております。
全てのご感想を掲載しておりますので、エクスショップの評判としてご参考ください。
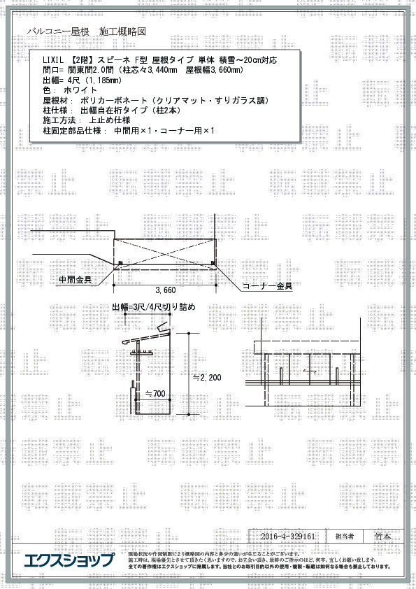
正式お見積りと一緒に提出させて頂いております「工事概略図面」もご覧頂けます。
商品や設置場所のご検討にお役立てください。
(写真No:32916134)
(バルコニー・ベランダ屋根)
| カラー | ホワイト |
|---|---|
| サイズ | 屋根幅 3,660mm 出幅 1,185mm |
| 柱仕様 | 出幅自在桁タイプ(柱2本) |
| 屋根材 | ポリカーボネート(クリアマット・すりガラス調) |
| 工事方法 | 地域密着あんしん施工 |
多少の雨でも洗濯物が雨に濡れないようにバルコニー屋根をつけました。見積もりに来た方と設置場所や色について相談した結果、スピーネF型の白にしました。思ったよりも頑丈で、色も家の壁に合っていて、いわゆる装着感がないのが気に入ってます。また機会があればエクスショップにお願いします。
スピーネ F型の施工をご依頼頂きまして、誠に有り難うございます。ホワイトのフレームとポリカーボネート(クリアマット・すりガラス調)の屋根材の取り合わせは、青空によく映える、爽やかなお仕上がりでございますね。自然な納まり具合にご満足のお言葉をお寄せ頂き、私どもも嬉しく存じます。バルコニーの幅よりも出幅を広くとることが出来ます出幅自在桁タイプですので、雨の吹き込みが抑えられ、お洗濯物も安心して干して頂けるものと存じます。今後益々精進して参りますので、次回エクステリアの施工をご検討の際にも、弊社をご利用頂ければ幸いでございます。
当サイトは以下のセキュリティ機能や保護認定等を備えています。安心してお申し込みください
当サイトはSSL暗号化に対応しています。入力した個人情報は暗号化して送られますので、安心してご利用ください。
当社はJADMAの正会員です。同協会は法律で位置づけられた団体で、消費者の利益保護と業界の健全な発展の為に活動しています。
こちらの工事に使用しているエクステリア
![]()
スピーネ F型 屋根タイプ 単体

工事費・税込
90,000円〜
商品レビュー数
512件
LIXILの新テラス屋根スピーネ。雨や雪の入り込みを防ぎ、さらに視線も遮る目隠しスクリーンも取り付けられるテラスです。斜めなどの加工も対応が可能なシンプルスタイルです。
この商品の詳細へ
無料お見積り・現場調査・ご注文もこちら