各取扱メーカーの会社名、ロゴ及び商品名等は各社の商標または登録商標です。
| 日 | 月 | 火 | 水 | 木 | 金 | 土 |
|---|---|---|---|---|---|---|
| 1 | 2 | 3 | 4 | 5 | 6 | 7 |
| 8 | 9 | 10 | 11 | 12 | 13 | 14 |
| 15 | 16 | 17 | 18 | 19 | 20 | 21 |
| 22 | 23 | 24 | 25 | 26 | 27 | 28 |
| 日 | 月 | 火 | 水 | 木 | 金 | 土 |
|---|---|---|---|---|---|---|
| 1 | 2 | 3 | 4 | 5 | 6 | 7 |
| 8 | 9 | 10 | 11 | 12 | 13 | 14 |
| 15 | 16 | 17 | 18 | 19 | 20 | 21 |
| 22 | 23 | 24 | 25 | 26 | 27 | 28 |
| 29 | 30 | 31 |
…休業日(現場調査・工事は一部対応)
![]()
【受付時間】9:30 - 17:30(営業日)
![]()
【受付時間】9:30 - 17:30(営業日)
オペレーションスタッフ
エクステリアプランナー有資格者の私たちにお任せください。
ショップ責任者
神(じん)
エクステリア プランナー
有資格者61名
1/3
木附
枡田
重富
吉澤
吉野
小東
池本
山田
佐藤
白崎
新西
伊野
次田
南
西山
小林
阿重田
梨田
長谷川
藤田
村上
平戸
植松
内田
久田
中島
長石
水口
榮
山崎
清水
室谷
安田
水谷
小野
酒井
一氏
神吉
日下部
山中
深田
田中
水田
西田
岡本
丸山
北
坂本
中嶋
岩野
伊藤
上中
高山
原
犬井
佐伯
谷川
塚田
松本
小林
森下
上内
島田
森
梅田
松山
山本
小西
倉地
山根
中原
河野
村上
土井
岩破
南
井上
三ツ股
小田
依藤
永禮
林
加藤
石藤
駒井
末吉
山本
芦野
樽井
野上
岡田
木村
池田
西村
藤澤
達川
奥原
那須
1/3
今週のPick Upページ
![]()
ご利用頂いたお客様の口コミ・レビューを「お客様の声」として掲載しております。
全てのご感想を掲載しておりますので、エクスショップの評判としてご参考ください。
正式お見積りと一緒に提出させて頂いております「工事概略図面」もご覧頂けます。
商品や設置場所のご検討にお役立てください。
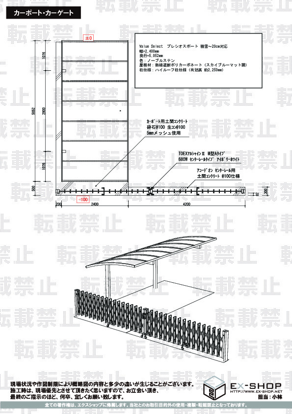
(写真No:10375111)
概ね満足していますが、実際工事をした業者と残土処理を巡って行き違いがありました。菜園に石が混じった残土をまかれてしまいました。後日取り除いてもらいましたが、事前の打ち合わせがお互い不足していたようです。年末に短期間で設置工事していただきありがとうございます。
この度は、プレシオスポートと伸縮式カーゲートの施工をご依頼頂きまして、誠に有難うございます。ご希望の日程で、施工を終わらせることが出来ましたこと、大変嬉しく存じます。弊社と提携施工店の連携不足から、大切な菜園を傷つけてしまい、誠に申し訳ございません。今後は、提携施工店との連絡を密にとり、このようなご迷惑をおかけすることのございませぬよう細心の注意を払って参りたいと存じます。貴重なご意見をお寄せ頂きまして、誠に有難うございました。
当サイトは以下のセキュリティ機能や保護認定等を備えています。安心してお申し込みください
当サイトはSSL暗号化に対応しています。入力した個人情報は暗号化して送られますので、安心してご利用ください。
当社はJADMAの正会員です。同協会は法律で位置づけられた団体で、消費者の利益保護と業界の健全な発展の為に活動しています。
こちらの工事に使用しているエクステリア
![]()
アルシャインU M型 Aタイプ ノンレール 両開き

工事費・税込
188,200円〜
総合平均評価(星5つ評価)
4.58
商品レビュー数
19件
回転収納も可能で使い勝手も抜群の伸縮門扉!強風にも安心の頑丈設計。サイズ特注も可能で、高さも3段階から選べます!お好み通り伸縮門扉が完成します!
この商品の詳細へ
無料お見積り・現場調査・ご注文もこちら
この商品のレビュー
商品レビュー19件

東京都 練馬区 S.S.様
軽くてスッキリして見た目もいいと思います。

兵庫県 高砂市 I.S.様
開閉も比較的スムーズで思っていた以上に使いやすい。

神奈川県 川崎市 O.T.様
とても頑丈で、たためばコンパクトにまとまる。

埼玉県 川口市 U.K.様
非常に満足しています。私の友人からも評価が高いです。本当にありがとうございます。

愛知県 瀬戸市 H.K.様
思った通りの商品で、防犯性も向上し満足しております。

千葉県 袖ケ浦市 Y.K.様
しっかりした造りなので強風に強いし扉もスムーズで快適です。

千葉県 長生郡白子町 E.K.様
以前使用してた物より、しっかりしていてとてもいいです。

東京都 新宿区 K.Y.様
頑丈で使い勝手もよく、大変満足しています。

埼玉県 上尾市 H.S.様
期待通りの商品、仕上がりで満足しています。

東京都 江戸川区 H.N.様
上記設問にて回答しているように非常に満足しています。

千葉県 長生郡睦沢町 N.K.様
非常にしっかりとした造りで、動きも軽く快適です。
関連するお客様の声

5つ星のうち5
東京都H.N. 様回答日:2015年12月
27年前に取り付けたフェンスを利用していましたが、剛性が足らないせいか設置後数年でひしゃげてしまい、今まで何とか凌いできましたが、さすがに我慢の限界で今回新規に交換しました。以前のフェンスよりも多少上級クラスの物を選択したので、さすが見栄えもよく、剛性も高く、快適に開け閉めでき非常に満足しています。

5つ星のうち5
東京都T.Y. 様回答日:2013年12月
リーズナブルな価格で、お目当てのカーゲートを設置することができ、大変満足しております。ネットを通じたお取引にも関わらず、見積りから工事に至るまでの過程がスムーズで、安心して工事の日を迎えることができました。工事当日は、朝小雨が降り寒かった中、時々質問に丁寧に答えていただきました。普段仕事をしているものですから、一日で完了した点も良かったです。

5つ星のうち5
埼玉県T.H. 様回答日:2011年12月
施工時期が年末近くとなり、慌ただしく気温も低い状態での施工となりましたが監督さん、職人さんの努力にて希望どうりの竣工となりました。特に気温の関係でコンクリ打にはご苦労かけましたがしっかり施工していただけ満足していますまた工事をするときにもお願いしたいと思います

5つ星のうち4
兵庫県K.M. 様回答日:2011年6月
今回、駐車場及び自転車置場のコンクリート工事・門柱・門扉・サイクルポート・オーニングの工事を依頼しましたが、打ち合わせは図面により仕上がりがイメージしやすく、見積もりも詳しく記載されていてわかりやすく良かったと思います。各工事の仕上がりについても満足しています。

5つ星のうち5
福岡県F.K. 様回答日:2025年4月
庭に侵入する害獣(イノシシ)対策のため、玄関への通路入口にネットを張っていたので見栄えを考え、カーゲートを設置。家の庭のフェンスとマッチして見栄えと開閉がよくなった。ネット注文に不安があったが、メール、電話共に係の対応がすばらしく、問題なく設置完了しました。

5つ星のうち5
熊本県T.I. 様回答日:2024年5月
大事にしているバイクが雨ざらし、また防犯上も心配することが多かったのですが、商品の使用が便利なようにと、時間をしっかりとかけながら説明や意見を取り入れて頂きました。非常に狭小なスペースでしたので、切り詰め作業も大変だったと思います。施工後、雨も沢山降りましたが安心していられます。ありがとうございました。

5つ星のうち5
茨城県A.A. 様回答日:2024年4月
前回はテラスを、お願いしました。とても良く今回マタリピーターさせて頂きましたです防犯対策の為にカーゲート、メッシュフェンスを注文しました。ペットがいる為、ペットガード付きにしました。広々とドックランが完成しました。担当の方が相談し易い方に恵まれ施工も順調に、進みました。ペットが小型なので対策として、ネットを自作して気に入ってます。
関連するブログ記事
関連するよくあるご質問
カーゲートって何ですか?
【商品カテゴリ >カーゲート】(ご質問No.28915)
カーポートとカーゲートの交換をしたいのですが、どのような商品が最適か提案をいただきたく、調査と打合せをお願いいたします。
【商品カテゴリ >カーポート】(ご質問No.2223)
TOSTEM アルピタUR 片開き
カラー:ブロンズ 規格幅:4180 (mm) 規格高:1150 (mm)
形状タイプ:ノンレールタイプ
自家の家の車庫に家族で設置したいのですが、商品のみのご購入が出来ますか??
商品のみの値段が解れば、是非教えて下さい。
【商品カテゴリ >カーゲート】(ご質問No.2235)
カーブポートシグマU ワイド
シャレオRX門扉、カーゲート
カーブポートシグマとどう違うのですか?
それと屋根材ですが、ポリカですりガラス調の色は出来ますか?
熱線吸収アクアシャインポリカの色は?
いま新築中ですが、建築業者との打ち合わせは可能なのですか?
門扉とカーポート、シャレオのカーゲート考えてます。
現場でのアドバイス等もお願い出来るのでしょうか?
【商品カテゴリ >カーポート】(ご質問No.2268)
TOEX ワイドオーバードアR1型 ハイルーフ電動タイプ 5400x1000
キューブポートワイド ハイルーフタイプ 5400x5700
施工日数も教えてください。
【商品カテゴリ >カーゲート】(ご質問No.2269)
カーポートについてお尋ねします。
メーカー TOSTEM 商品名 スクエード DG遮光
スクエード DG採光
千葉県
上記カーポートにオプションがあります。ハイルーフ仕様、サイドパネル、縦連棟施行の意味が分かりません。また跳ね上げ式カーゲートが設置可能でしょうか。宜しくお願いします。
【商品カテゴリ >カーポート】(ご質問No.2323)
神戸市
現在自動カーゲートがついていますが、ゲートの幅を広くしたいと考えています。
一度現地を見てもらい作業できるか確認して欲しいです
【商品カテゴリ >カーゲート】(ご質問No.2375)
新日軽 エクジスフォー30-51-51 3000×10173 ポリカーボネート板 定価568,000円
カーゲート XA型 2872×1250 定価140,200円
MA型 2955×1120 定価85,000円
ポスト OM2型 定価35,000+3,000円
杉並区
商品のみの購入を予定しています。当方の工務店に施行を依頼する予定。
【商品カテゴリ >カーポート】(ご質問No.2455)
バルコニーを2階に新設。
その部分の窓をバルコニーに出入りできるように取り替え。
カーゲート新設。
など、今度中古住宅を購入するのですが実際にどのサイズが適当なのかまた、トータルでいくらになるのか実際に現調時に積算してほしいのですが可能でしょうか?
TOSTEM アルピタUM 片開き
カラー:ブロンズ 規格幅:3020 (mm) 規格高:1050 (mm)
形状タイプ:ノンレールタイプ
TOSTEM アクトステージB型 アクリル透明タイプ
カラー:オータムブラウン 規格幅:3650 (mm) 規格奥行:1485 (mm) 床材:グレイ 柱仕様:柱建て式
【商品カテゴリ >カーゲート】(ご質問No.2490)
施工場所は、埼玉県
三協アルミのスペースマンテン(カーゲート)UC/後づけガイドレールタイプで13S+21Mで親子両開き設置して欲しいのですが、現状、門扉のポールが両サイドに立ち、床面がタイル張りで傾斜が有ります。はつってから、セメントで水平にして頂いて施工して頂くと、どの位になるでしょうか?同じ物でしたら、メーカーは拘りません。
【商品カテゴリ >カーゲート】(ご質問No.2532)



















