各取扱メーカーの会社名、ロゴ及び商品名等は各社の商標または登録商標です。
| 日 | 月 | 火 | 水 | 木 | 金 | 土 |
|---|---|---|---|---|---|---|
| 1 | 2 | 3 | 4 | 5 | 6 | |
| 7 | 8 | 9 | 10 | 11 | 12 | 13 |
| 14 | 15 | 16 | 17 | 18 | 19 | 20 |
| 21 | 22 | 23 | 24 | 25 | 26 | 27 |
| 28 | 29 | 30 | 31 |
| 日 | 月 | 火 | 水 | 木 | 金 | 土 |
|---|---|---|---|---|---|---|
| 1 | 2 | 3 | ||||
| 4 | 5 | 6 | 7 | 8 | 9 | 10 |
| 11 | 12 | 13 | 14 | 15 | 16 | 17 |
| 18 | 19 | 20 | 21 | 22 | 23 | 24 |
| 25 | 26 | 27 | 28 | 29 | 30 | 31 |
…休業日(現場調査・工事は一部対応)
![]()
【受付時間】9:30 - 17:30(営業日)
![]()
【受付時間】9:30 - 17:30(営業日)
オペレーションスタッフ
エクステリアプランナー有資格者の私たちにお任せください。
ショップ責任者
神(じん)
エクステリア プランナー
有資格者61名
1/3
木附
枡田
重富
吉澤
吉野
小東
池本
山田
佐藤
白崎
新西
伊野
次田
浅川
南
西山
小林
梨田
長谷川
藤田
阿重田
村上
植松
内田
久田
小野
平戸
中島
長石
水口
榮
山崎
清水
室谷
安田
水谷
酒井
神吉
日下部
山中
深田
田中
水田
西田
一氏
岡本
北
坂本
中嶋
岩野
伊藤
上中
高山
竹本
犬井
佐伯
谷川
原
丸山
塚田
松本
上内
島田
森
梅田
松山
山本
小林
倉地
山根
中原
河野
村上
土井
岩破
南
井上
三ツ股
小田
依藤
永禮
林
加藤
石藤
駒井
末吉
山本
芦野
樽井
野上
岡田
木村
池田
西村
藤澤
達川
奥原
那須
小西
森下
1/3
今週のPick Upページ
![]()
ご利用頂いたお客様の口コミ・レビューを「お客様の声」として掲載しております。
全てのご感想を掲載しておりますので、エクスショップの評判としてご参考ください。
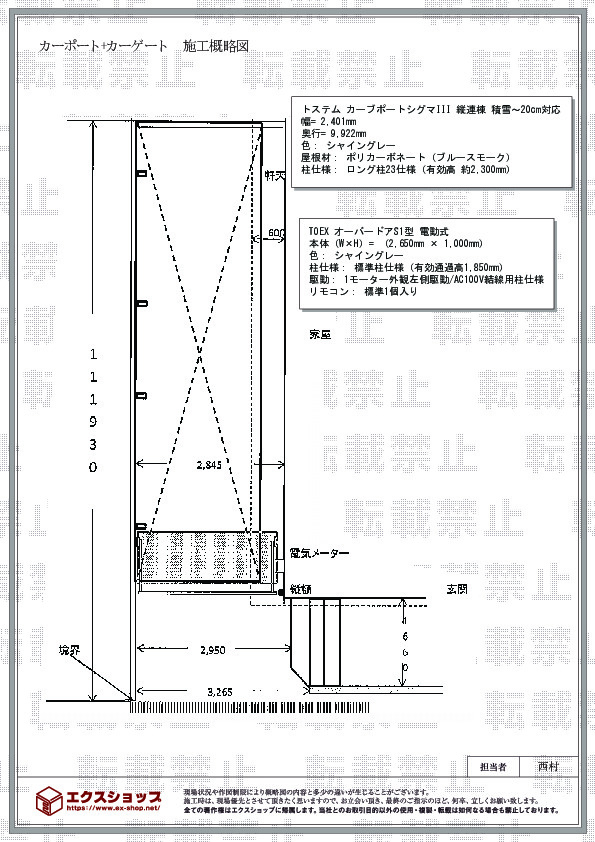
正式お見積りと一緒に提出させて頂いております「工事概略図面」もご覧頂けます。
商品や設置場所のご検討にお役立てください。
(写真No:18457019)
(カーゲート)
| カラー | シャイングレー |
|---|---|
| サイズ | 全幅 2,650mm 高さ 1,000mm |
| 柱タイプ | 標準柱仕様(有効通過高1,850mm) |
| 工事方法 | 地域密着あんしん施工 |
メール連絡もスムーズにとれ、安心して工事をお任せ出来ました。また、工事の2日目に台風がくるということで心配していましたが、当時は工事はしませんでしたが、翌日にやりくりをしていただき、1日目と3日目とで工事が完了しました。工事施工していただいた方も、本当に丁寧にしていただき、3日目は夜遅くまでかかって電動ゲートも調整してくれました。有難うございました。
この度は、エクスショップをご利用頂きまして、誠に有り難うございます。顔の見えないネット販売であるため、お客様より安心というお言葉をお寄せ頂き、大変光栄でございます。スムーズな施工へのご協力、誠に有り難うございました。今後益々精進して参りますので、また機会がございましたら、ぜひエクスショップにご用命くださいますよう、宜しくお願い致します。
当サイトは以下のセキュリティ機能や保護認定等を備えています。安心してお申し込みください
当サイトは256ビットSSL暗号化に対応しています。入力した個人情報は暗号化して送られますので、安心してご利用ください。
当社はJADMAの正会員です。同協会は法律で位置づけられた団体で、消費者の利益保護と業界の健全な発展の為に活動しています。
こちらの工事に使用しているエクステリア
![]()
オーバードアS1型 電動式

工事費・税込
434,800円〜
総合平均評価(星5つ評価)
4.53
商品レビュー数
38件
がオーバードアS1型の特長。スムーズな開閉を実現!定番人気のオーバードアです!リモコン操作でゆっくりと動き出し、スムーズに跳ね上がります。
この商品の詳細へ
無料お見積り・現場調査・ご注文もこちら
この商品のレビュー
商品レビュー38件

埼玉県 川口市 T.M.様
とても満足しています。外観も気に入っています。

兵庫県 西宮市 K.R.様
リモコンを操作してから反応するまで若干時間がかかる しかし、安全を考えるとタイムラグは必要かも知れない。

大阪府 河内長野市 N.H.様
これまでゲートを手動で上げていたので、電動でとても楽になりました

福岡県 北九州市 Y.S.様
デザインや質感に高級感があり、動作もほぼ無音でスムーズなので満足しています。車載用リモコンやホームネットワークなど現代的なオプションもあるようで、追加で欲しくなりました。残念な点として、本体側の操作パネルがネジ止めで厳重に隠されているため、リモコンの電池が切れたり故障した際は難儀しそうです。 何にしても、電動カーゲートの最大の問題点は耐用年数なので、この先何年故障しないかが最も重要な評価ポイントだと思っています。今後に期待したいです。

茨城県 つくば市 H.F.様
大変よくできていると思う。 あえて言えば上昇・下降時の動きがカクカクしている感じがあるので、スムーズに上昇下降するとより良いとは思うが、機能面に影響のあるものではないので全く問題ない。

福岡県 太宰府市 N.T.様
すごく便利になって満足しています。ご近所では手動式が多く、電動に興味を持たれている方が複数ありました。 自己概算見積もりは当初工事費込みとなっていましたが、電気配線工事費が別途になるとは思っていませんでした。その点も事前掲載が必要ではないかと思います。

群馬県 邑楽郡明和町 I.T.様
とても静かだし、動きがゆっくりで高級感がある。

兵庫県 神戸市 O.J.様
車内からリモコンで開閉できるのは便利。ただ、車の入出庫以外に自転車等を出し入れする時にスイッチが通路と反対にあるため少し不便を感じる。今後、リモコンを買い増しして対応したいと考えております。

東京都 西東京市 K.A.様
車での帰宅時降りてゲートを開ける必要が無くリモコンで開閉出来るので便利。 開閉に多少時間が掛かるが音も無くスムーズに動作するので快適です。

兵庫県 西宮市 O.M.様
同じことになりますが、雨の日の開閉が楽になりました。アコーディオン型はガタガタと音がするので、夜遅くは近所に気を使っていましたが、電動オーバードアは、静かでほとんど音がしないので満足しています。

東京都 三鷹市 S.K.様
静かで、操作も簡単なのでとても満足しています。

千葉県 千葉市 S.Y.様
前のより開閉に時間がかかります。 もう少し早ければいいと思います。

埼玉県 さいたま市 S.Y.様
見た目も我が家の玄関回りと 良くマッチしており、その点も非常に満足しておりますし、愛車をある程度 守ってくれていると言う安心感もあり 施工して良かったと感じております。とにかく「カッコイイ」です。

千葉県 船橋市 N.M.様
とても静かで 快適に使っています。知り合いにも 勧めたいと思います。

神奈川県 厚木市 K.M.様
以前の物に比べてパネル幅が短くなったので横の隙間が大きくなったが、やむを得ない。 思ったより動作が遅い。

埼玉県 南埼玉郡宮代町 K.K.様
丈夫さはまだわかりませんが、非常に満足していまし

京都府 京都市 T.M.様
開閉音が非常に静かで、時間帯を選ばずに使用できる点が大変良いと思います。

大阪府 堺市 D.E.様
20年以上前の電動式ガレージドアとくらべて、騒音がなくなり、安全性がよくなっていてよかったです。ただ、以前の電動ドアの配線をそのまま使ったので、以前のように室内からの開閉ができるとおもっていたらできなくなったので星ひとつおとしました。
関連するお客様の声

5つ星のうち5
兵庫県M.K. 様回答日:2015年1月
対応も良くとてもスムーズに工事まで進みました。ありがたく思っております。またほかにも工事することになった際にはお願いしたいと思っております

5つ星のうち5
東京都N.M. 様回答日:2011年3月
ネットで工事を発注するには多少の不安がありましたが見積もりにもすぐきていただけて、工事も1日で完了し助かりました。

5つ星のうち4
神奈川県K.T. 様回答日:2018年2月
営業の方も丁寧に応対して頂けました。また工事の方も親切に応対頂けました。ただ、1日目の工事が終わった際に、作業終了のご連絡を頂ければ、更に良かったです。

5つ星のうち4
神奈川県M.R. 様回答日:2011年12月
カタログで見た感じよりしっかりとしていて良かったです。工事はほぼ1日でしたが、暗くなってしまったので細かい調整は翌日になりました。でも、最後まできちんとしてくださったので安心しました。

5つ星のうち5
大阪府I.K. 様回答日:2013年8月
見積に来てくださった方が、工事をしてくださったので、二度手間もなく、スムーズに工事にとりかかっていただけたのがよかったです、安いから心配かな?と思っていましたが、全くそのような事はありませんでした。

5つ星のうち5
千葉県K.A. 様回答日:2016年2月
駐車場の前の道路が狭いので、以前の伸縮ゲートでは出入りの後閉めるのに時間がかかり、他の車に迷惑をかけ困っていたが、オーバードア(電動)にしてからは出入りがとても楽になった。工事担当の業者の方は事前の相談にも親切に乗ってもらい、仕事も丁寧で大変満足しています。

5つ星のうち4
静岡県E.K. 様回答日:2015年10月
セキュリテーの強化で検討開始、近隣の同様の商品を散歩がてら拝見し評価を聞き決断。予想どうりのパフォーマンス(セキュリテー強化)で満足しています、又見積もりから施工引き渡しまで、まったく問題なく完了し満足しています。後はアフターケアーですね。。。期待しています。

5つ星のうち5
大阪府M.T. 様回答日:2013年10月
メール連絡もスムーズにとれ、安心して工事をお任せ出来ました。また、工事の2日目に台風がくるということで心配していましたが、当時は工事はしませんでしたが、翌日にやりくりをしていただき、1日目と3日目とで工事が完了しました。工事施工していただいた方も、本当に丁寧にしていただき、3日目は夜遅くまでかかって電動ゲートも調整してくれました。有難うございました。

5つ星のうち5
福岡県F.K. 様回答日:2025年4月
庭に侵入する害獣(イノシシ)対策のため、玄関への通路入口にネットを張っていたので見栄えを考え、カーゲートを設置。家の庭のフェンスとマッチして見栄えと開閉がよくなった。ネット注文に不安があったが、メール、電話共に係の対応がすばらしく、問題なく設置完了しました。

5つ星のうち5
熊本県T.I. 様回答日:2024年5月
大事にしているバイクが雨ざらし、また防犯上も心配することが多かったのですが、商品の使用が便利なようにと、時間をしっかりとかけながら説明や意見を取り入れて頂きました。非常に狭小なスペースでしたので、切り詰め作業も大変だったと思います。施工後、雨も沢山降りましたが安心していられます。ありがとうございました。
関連するブログ記事
関連するよくあるご質問
カーゲートって何ですか?
【商品カテゴリ >カーゲート】(ご質問No.28915)
カーポートとカーゲートの交換をしたいのですが、どのような商品が最適か提案をいただきたく、調査と打合せをお願いいたします。
【商品カテゴリ >カーポート】(ご質問No.2223)
TOSTEM アルピタUR 片開き
カラー:ブロンズ 規格幅:4180 (mm) 規格高:1150 (mm)
形状タイプ:ノンレールタイプ
自家の家の車庫に家族で設置したいのですが、商品のみのご購入が出来ますか??
商品のみの値段が解れば、是非教えて下さい。
【商品カテゴリ >カーゲート】(ご質問No.2235)
カーブポートシグマU ワイド
シャレオRX門扉、カーゲート
カーブポートシグマとどう違うのですか?
それと屋根材ですが、ポリカですりガラス調の色は出来ますか?
熱線吸収アクアシャインポリカの色は?
いま新築中ですが、建築業者との打ち合わせは可能なのですか?
門扉とカーポート、シャレオのカーゲート考えてます。
現場でのアドバイス等もお願い出来るのでしょうか?
【商品カテゴリ >カーポート】(ご質問No.2268)
TOEX ワイドオーバードアR1型 ハイルーフ電動タイプ 5400x1000
キューブポートワイド ハイルーフタイプ 5400x5700
施工日数も教えてください。
【商品カテゴリ >カーゲート】(ご質問No.2269)
カーポートについてお尋ねします。
メーカー TOSTEM 商品名 スクエード DG遮光
スクエード DG採光
千葉県
上記カーポートにオプションがあります。ハイルーフ仕様、サイドパネル、縦連棟施行の意味が分かりません。また跳ね上げ式カーゲートが設置可能でしょうか。宜しくお願いします。
【商品カテゴリ >カーポート】(ご質問No.2323)
神戸市
現在自動カーゲートがついていますが、ゲートの幅を広くしたいと考えています。
一度現地を見てもらい作業できるか確認して欲しいです
【商品カテゴリ >カーゲート】(ご質問No.2375)
新日軽 エクジスフォー30-51-51 3000×10173 ポリカーボネート板 定価568,000円
カーゲート XA型 2872×1250 定価140,200円
MA型 2955×1120 定価85,000円
ポスト OM2型 定価35,000+3,000円
杉並区
商品のみの購入を予定しています。当方の工務店に施行を依頼する予定。
【商品カテゴリ >カーポート】(ご質問No.2455)
バルコニーを2階に新設。
その部分の窓をバルコニーに出入りできるように取り替え。
カーゲート新設。
など、今度中古住宅を購入するのですが実際にどのサイズが適当なのかまた、トータルでいくらになるのか実際に現調時に積算してほしいのですが可能でしょうか?
TOSTEM アルピタUM 片開き
カラー:ブロンズ 規格幅:3020 (mm) 規格高:1050 (mm)
形状タイプ:ノンレールタイプ
TOSTEM アクトステージB型 アクリル透明タイプ
カラー:オータムブラウン 規格幅:3650 (mm) 規格奥行:1485 (mm) 床材:グレイ 柱仕様:柱建て式
【商品カテゴリ >カーゲート】(ご質問No.2490)
施工場所は、埼玉県
三協アルミのスペースマンテン(カーゲート)UC/後づけガイドレールタイプで13S+21Mで親子両開き設置して欲しいのですが、現状、門扉のポールが両サイドに立ち、床面がタイル張りで傾斜が有ります。はつってから、セメントで水平にして頂いて施工して頂くと、どの位になるでしょうか?同じ物でしたら、メーカーは拘りません。
【商品カテゴリ >カーゲート】(ご質問No.2532)


















