各取扱メーカーの会社名、ロゴ及び商品名等は各社の商標または登録商標です。
| 日 | 月 | 火 | 水 | 木 | 金 | 土 |
|---|---|---|---|---|---|---|
| 1 | 2 | 3 | 4 | |||
| 5 | 6 | 7 | 8 | 9 | 10 | 11 |
| 12 | 13 | 14 | 15 | 16 | 17 | 18 |
| 19 | 20 | 21 | 22 | 23 | 24 | 25 |
| 26 | 27 | 28 | 29 | 30 | 31 |
| 日 | 月 | 火 | 水 | 木 | 金 | 土 |
|---|---|---|---|---|---|---|
| 1 | ||||||
| 2 | 3 | 4 | 5 | 6 | 7 | 8 |
| 9 | 10 | 11 | 12 | 13 | 14 | 15 |
| 16 | 17 | 18 | 19 | 20 | 21 | 22 |
| 23 | 24 | 25 | 26 | 27 | 28 | 29 |
| 30 |
…休業日(現場調査・工事は一部対応)
![]()
【受付時間】9:30 - 17:30(営業日)
![]()
【受付時間】9:30 - 17:30(営業日)
オペレーションスタッフ
エクステリアプランナー有資格者の私たちにお任せください。
ショップ責任者
神(じん)
エクステリア プランナー
有資格者61名
1/3
1/3
今週のPick Upページ
![]()
ご利用頂いたお客様の口コミ・レビューを「お客様の声」として掲載しております。
全てのご感想を掲載しておりますので、エクスショップの評判としてご参考ください。
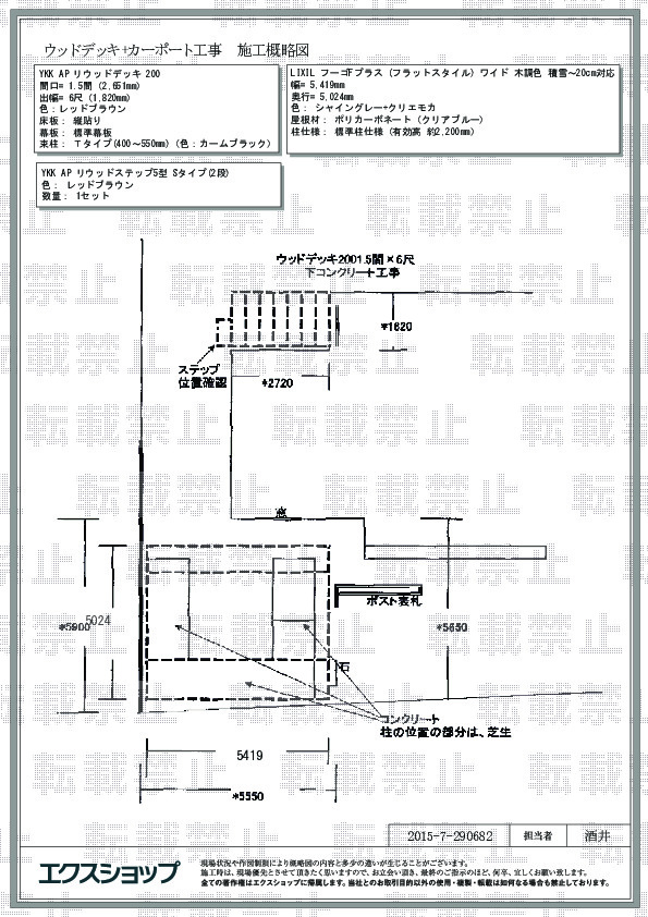
正式お見積りと一緒に提出させて頂いております「工事概略図面」もご覧頂けます。
商品や設置場所のご検討にお役立てください。
(写真No:29068227)
(カーポート、ウッドデッキ)
| カラー | シャイングレー+クリエモカ |
|---|---|
| サイズ | 幅 5,419mm 奥行 5,024mm |
| 屋根高等 | 標準柱仕様(有効高 約2,200mm) |
| 屋根材等 | ポリカーボネート(クリアブルー) |
| 工事方法 | 地域密着あんしん施工 |
(写真No:29068227)
(カーポート、ウッドデッキ)
| カラー | レッドブラウン |
|---|---|
| サイズ | 間口 2,651mm 出幅 1,820mm |
| 工事方法 | 地域密着あんしん施工 |
いろいろ頑張って頂きましてありがとうございました。
この度はリウッドデッキ 200及び フーゴFプラス (フラットスタイル) ワイド 木調色 の施工をご依頼頂き、誠に有り難うございます。広々としたリウッドデッキ200がお庭の一角に綺麗に納まり、ご家族皆様でおくつろぎ頂ける憩いの空間の完成でございますね。雨や紫外線からお車をお守りするカーポートも設置され、更に豊かで快適な毎日をお過ごし頂けるものと存じます。今後も、常に、お客様のご希望にかなった完成を目指し、努力して参ります。また機会がございましたら、是非エクスショップにご用命頂きますよう宜しくお願い致します。
当サイトは以下のセキュリティ機能や保護認定等を備えています。安心してお申し込みください
当サイトは256ビットSSL暗号化に対応しています。入力した個人情報は暗号化して送られますので、安心してご利用ください。
当社はJADMAの正会員です。同協会は法律で位置づけられた団体で、消費者の利益保護と業界の健全な発展の為に活動しています。
こちらの工事に使用しているエクステリア
![]()
フーゴ F プラス 2台用 木調色(フラットスタイル)

工事費・税込
530,500円〜
商品レビュー数
31件
フーゴ F プラス 2台用 木調色(フラットスタイル)は木の風合いとアルミのカラーが特徴的な2台の車が並んで駐車できるカーポートです。屋根の素材はブラックマットを含む全7種類から選択でき、カラーは4種類の組み合わせが揃っています。耐風圧性能は基準風速Vo=40m/sで、積雪耐性は20cmまで対応可能です。※屋根材:ポリカーボネート(ブラックマット)は同色のサイドパネルの設定が無いため、サイドパネル:ポリカーボネート(クリアブルー/クリアブラウン)の価格で算出しています。
この商品の詳細へ
無料お見積り・現場調査・ご注文もこちら
こちらの工事に使用しているエクステリア
![]()
リウッドデッキ 200

工事費・税込
78,800円〜
商品レビュー数
5967件
リウッドデッキ 200は木粉とポリプロピレンを混合したリウッド(再生木)でできた人工木デッキです。硬度・耐水性・耐候性・防腐朽性の高さが特徴で、水濡れやシロアリ・菌類による腐食の心配がありません。目地幅は安全性と意匠性を考慮した3mm幅設定。※束石の手配は別途。
この商品の詳細へ
無料お見積り・現場調査・ご注文もこちら