各取扱メーカーの会社名、ロゴ及び商品名等は各社の商標または登録商標です。
| 日 | 月 | 火 | 水 | 木 | 金 | 土 |
|---|---|---|---|---|---|---|
| 1 | 2 | 3 | 4 | 5 | 6 | |
| 7 | 8 | 9 | 10 | 11 | 12 | 13 |
| 14 | 15 | 16 | 17 | 18 | 19 | 20 |
| 21 | 22 | 23 | 24 | 25 | 26 | 27 |
| 28 | 29 | 30 | 31 |
| 日 | 月 | 火 | 水 | 木 | 金 | 土 |
|---|---|---|---|---|---|---|
| 1 | 2 | 3 | ||||
| 4 | 5 | 6 | 7 | 8 | 9 | 10 |
| 11 | 12 | 13 | 14 | 15 | 16 | 17 |
| 18 | 19 | 20 | 21 | 22 | 23 | 24 |
| 25 | 26 | 27 | 28 | 29 | 30 | 31 |
…休業日(現場調査・工事は一部対応)
![]()
【受付時間】9:30 - 17:30(営業日)
![]()
【受付時間】9:30 - 17:30(営業日)
オペレーションスタッフ
エクステリアプランナー有資格者の私たちにお任せください。
ショップ責任者
神(じん)
エクステリア プランナー
有資格者61名
1/3
1/3
今週のPick Upページ
![]()
ご利用頂いたお客様の口コミ・レビューを「お客様の声」として掲載しております。
全てのご感想を掲載しておりますので、エクスショップの評判としてご参考ください。
正式お見積りと一緒に提出させて頂いております「工事概略図面」もご覧頂けます。
商品や設置場所のご検討にお役立てください。
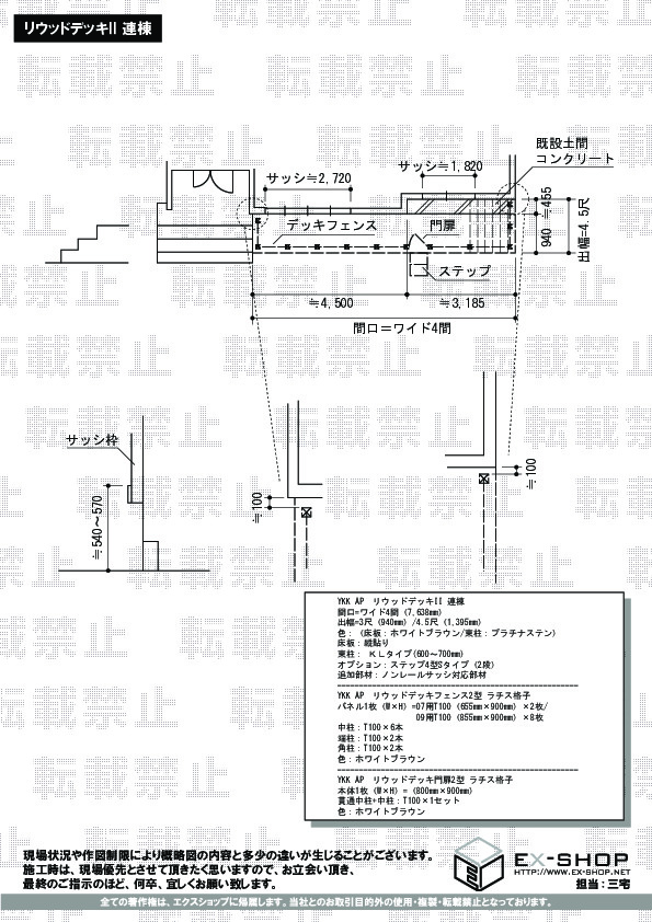
(写真No:6860061)
(ウッドデッキ)
| カラー | ホワイトブラウン |
|---|---|
| サイズ | 間口 7,638mm 出幅 1,395mm |
| 工事方法 | メーカー責任施工 |
現地確認から見積提出までは約10日間、最終的に工事完了までほぼ1カ月かかったため、ちょっと完成するまで期間が長すぎるという不満はあった。しかし、工事作業はしっかりとしており思った以上の出来栄えと、作業担当者より何か問題ありましたらご連絡いただければ対応しますとのお話もあり、アフターサービスもしっかりしていそうで任せてよかったと感じた。
リウッドデッキIIの施工をご依頼頂き、誠に有難うございます。広々としたウッドデッキを、ご自宅の雰囲気を損ねることなく、美しく施工することが出来ましたこと、大変嬉しく存じます。ラチス格子のフェンス・門扉も、とてもお洒落なお仕上がりでございますね。この度は完成までお待たせしてしまうこととなり、大変申し訳ございませんでした。今後、より一層迅速な対応に努めて参ります。商品に関しまして、何か気になる点等ございましたら、ご遠慮なく弊社までお申し付け下さい。この度のご利用、誠に有難うございました。
当サイトは以下のセキュリティ機能や保護認定等を備えています。安心してお申し込みください
当サイトは256ビットSSL暗号化に対応しています。入力した個人情報は暗号化して送られますので、安心してご利用ください。
当社はJADMAの正会員です。同協会は法律で位置づけられた団体で、消費者の利益保護と業界の健全な発展の為に活動しています。
こちらの工事に使用しているエクステリア
![]()
リウッドデッキ 200

工事費・税込
78,800円〜
商品レビュー数
6009件
リウッドデッキ 200は木粉とポリプロピレンを混合したリウッド(再生木)でできた人工木デッキです。硬度・耐水性・耐候性・防腐朽性の高さが特徴で、水濡れやシロアリ・菌類による腐食の心配がありません。目地幅は安全性と意匠性を考慮した3mm幅設定。※束石の手配は別途。
この商品の詳細へ
無料お見積り・現場調査・ご注文もこちら