各取扱メーカーの会社名、ロゴ及び商品名等は各社の商標または登録商標です。
| 日 | 月 | 火 | 水 | 木 | 金 | 土 |
|---|---|---|---|---|---|---|
| 1 | ||||||
| 2 | 3 | 4 | 5 | 6 | 7 | 8 |
| 9 | 10 | 11 | 12 | 13 | 14 | 15 |
| 16 | 17 | 18 | 19 | 20 | 21 | 22 |
| 23 | 24 | 25 | 26 | 27 | 28 | 29 |
| 30 |
| 日 | 月 | 火 | 水 | 木 | 金 | 土 |
|---|---|---|---|---|---|---|
| 1 | 2 | 3 | 4 | 5 | 6 | |
| 7 | 8 | 9 | 10 | 11 | 12 | 13 |
| 14 | 15 | 16 | 17 | 18 | 19 | 20 |
| 21 | 22 | 23 | 24 | 25 | 26 | 27 |
| 28 | 29 | 30 | 31 |
…休業日(現場調査・工事は一部対応)
![]()
【受付時間】9:30 - 17:30(営業日)
![]()
【受付時間】9:30 - 17:30(営業日)
オペレーションスタッフ
エクステリアプランナー有資格者の私たちにお任せください。
ショップ責任者
神(じん)
エクステリア プランナー
有資格者61名
1/3
木附
枡田
重富
吉澤
吉野
小東
池本
山田
佐藤
白崎
新西
伊野
次田
浅川
南
西山
小林
梨田
長谷川
藤田
阿重田
村上
植松
内田
久田
小野
平戸
中島
長石
水口
榮
山崎
清水
室谷
安田
水谷
酒井
神吉
日下部
山中
深田
田中
水田
西田
一氏
岡本
北
坂本
中嶋
岩野
伊藤
上中
高山
竹本
犬井
佐伯
谷川
原
丸山
塚田
松本
上内
島田
森
梅田
松山
山本
小林
倉地
山根
中原
河野
村上
土井
岩破
南
井上
三ツ股
小田
依藤
永禮
林
加藤
石藤
駒井
末吉
山本
芦野
樽井
野上
岡田
木村
池田
西村
藤澤
達川
奥原
那須
小西
森下
1/3
今週のPick Upページ
![]()
ご利用頂いたお客様の口コミ・レビューを「お客様の声」として掲載しております。
全てのご感想を掲載しておりますので、エクスショップの評判としてご参考ください。
正式お見積りと一緒に提出させて頂いております「工事概略図面」もご覧頂けます。
商品や設置場所のご検討にお役立てください。
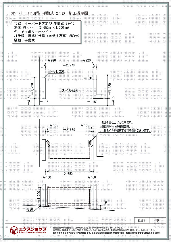
(写真No:19930311)
(カーゲート)
| カラー | アイボリーホワイト |
|---|---|
| サイズ | 全幅 2,850mm 高さ 1,000mm |
| 柱タイプ | 標準柱仕様(有効通過高1,850mm) |
| 工事方法 | 地域密着あんしん施工 |
サイズが既製品では合わなかったので特注になりましたが、すぐに対応していただき、また工事は手早く丁寧にしていただきました。ありがとうございました。
跳ね上げ式カーゲートが、ご自宅の敷地に綺麗に納まりましたこと、スタッフ一同大変嬉しく存じます。どっしりとして、安定感のあるオーバードアS1型でございますが、アイボリーホワイトのお色は威圧感がなく、お洒落な土間にもぴったりマッチしてございますね。お気に召して頂き、永くご愛用頂けましたら幸いでございます。これからも、お客様の笑顔の為に、日々努力して参りたいと存じますので、また、機会がございましたら、是非エクスショップをご利用頂けますよう、宜しくお願い致します。
当サイトは以下のセキュリティ機能や保護認定等を備えています。安心してお申し込みください
当サイトは256ビットSSL暗号化に対応しています。入力した個人情報は暗号化して送られますので、安心してご利用ください。
当社はJADMAの正会員です。同協会は法律で位置づけられた団体で、消費者の利益保護と業界の健全な発展の為に活動しています。
こちらの工事に使用しているエクステリア
![]()
オーバードアS1型 手動式

工事費・税込
239,400円〜
総合平均評価(星5つ評価)
4.41
商品レビュー数
49件
がオーバードアS1型の特長。上桟がやわらかなR形状のデザインで、雨水が溜まりにくくなっています。スムーズな開閉を実現!定番人気のオーバードアです!
この商品の詳細へ
無料お見積り・現場調査・ご注文もこちら
この商品のレビュー
商品レビュー49件

埼玉県 坂戸市 S.S.様
セキュリティ対策で鍵が付いていれば良いと思います。

千葉県 千葉市 N.T.様
開閉(上げ下げ)が軽く楽にでき満足です。 基本門扉は下げておくものだと理解していますが、雨の日の外出で上げたまま帰宅し下げようとしたら大量の雨水が落ちてきました。他の商品と比べられませんが、横着せずに下げれおこうと思います。

東京都 調布市 I.H.様
片手で操作できるので高齢者でも楽に上げ下げできるのでおすすめです。

東京都 府中市 K.A.様
同様の既存門扉からの買い替えでしたが、約30年前の商品と比べ軽い力で動かせて快適です。

東京都 八王子市 A.S.様
上げ下げが非常に楽です。途中でも止まり操作が簡単で力が要りません。 気になる点はハイルーフタイプのカタログ上は有効通過高さが2150と表示されているが、設置後のゲート上げた状態で通過高さが2300と高い。有効通過高さと、ゲートを完全に上げた状態の通過高さは違うようです。

神奈川県 川崎市 I.H.様
製品は高級感あり、手動でもまったく楽に上げ下げできるので、この製品を選んで良かったです。

神奈川県 横浜市 F.H.様
今までのものより間口が狭いので車庫入れがちょっと大変になりました。(間口が狭くなるのは了承して購入しております)

大阪府 八尾市 T.Y.様
音も静かで使いやすい。 知り合いからも立派になったねと言われて、見栄えもよく、工事してよかった。

神奈川県 川崎市 I.H.様
既設よりも、軽く上げ下げ可能になり良かった。

大阪府 吹田市 S.T.様
質感も想定したレベルで値段なりに良かったです。

兵庫県 神戸市 M.S.様
まだ使用時間が経っていないが、印象では良い商品であったと思う。

千葉県 千葉市 A.Y.様
アームに上げ下げ時に使う取っ手があるが、実際に使用するには内側からしか操作できないのとかなりの力を必要とするので意味がない。アームのロック部分も使い勝手はあまりよくないのがマイナス点。デザインと、バネを使ったアームの制御は良いと思う。

奈良県 生駒郡平群町 C.Y.様
スムーズな動きで、ロック機能があるのも良かったです。 高級感があるので、お気に入りです。

神奈川県 大和市 N.S.様
大きい扉にもかかわらず、楽に開閉ができ驚いています。シャイングレーの色も決めるに当たり相談にも丁寧に対応していただき安心して注文することができました。家のカラーとも相性が良いと家族にも評判です。

神奈川県 横浜市 I.Y.様
色や形等、想像していた通りのゲートであり、開閉が本当に楽になった。

千葉県 松戸市 M.I.様
設置して間もないので正しい評価はできないが、上げ下げもスムーズで使い勝手は良いと思う。また、フェンスとしての役割は十分果たしていると思う。
関連するお客様の声

5つ星のうち5
千葉県A.Y. 様回答日:2012年5月
見積もりに来てくれた方も、施工して下さった方もとても親切でした。特注でしたが思ったより早く取付けられたのでよかったです。

5つ星のうち5
神奈川県N.H. 様回答日:2015年4月
門の幅が既製品とぴったり合っていた。また、ワイドサイズのため重さに不安があったが、思ったよりも軽く跳ね上げることができるので、車や自転車の出し入れが楽になった。大変満足です。

5つ星のうち5
兵庫県S.K. 様回答日:2017年8月
小さなサイズでしたので、合うものがなかなか無いということでしたが、ピッタリの商品を見つけていただきありがとうございました。工事も迅速丁寧で満足いたしました。

5つ星のうち5
千葉県N.T. 様回答日:2022年10月
はじめに考えていた商品が我が家に合わず、丁寧な説明に納得して選びました。元々の門扉は支柱が上下する開閉も重くタイプでチェーン等の劣化で動作せず付け替えになりました。開閉(上げ下げ)が軽く楽になりました。見積り依頼から現地確認、施工から請求とメールでのやり取りでしたがこまめな連絡があり安心感がありました。丁寧ん仕上がりに満足しています。

5つ星のうち5
東京都A.S. 様回答日:2021年11月
跳ね上げ式カーゲートが壊れて、棒の支えで利用していたが非常に不便で、今回の購入を決めた。快適な点はとにかく上げ下げが力が要らず楽な点です。貴社の対応は早いことが一番です。メールで依頼してから17日目に施工と早い。特にメールの回答が12回と初めてオンラインショップを利用する不安が払拭された。

5つ星のうち5
奈良県C.Y. 様回答日:2020年10月
工事期間は予定通りで、丁寧に作業をして頂きました。ガスの配管の関係で、一部部品の位置を調整する必要がありましたが、車の出し入れに関しては影響がありませんでした。屋根も高くなり、オーバードアもスタイルが良く、高級感があります。良い買い物が出来て、とても満足しております。ありがとうございました。

5つ星のうち5
神奈川県N.S. 様回答日:2020年9月
以前のカーポート扉は高さが十分でなく車高のある車を入庫させることができませんでした。新しく設置していただいた扉は高さも十分で扉の開閉も軽くとても快適に使えます。もう一方の扉も間口に合ったタイプのものを紹介していただき、以前に比べとても使いやすくなりました。手際よく工事もしていたたき、大変満足しています。

5つ星のうち5
東京都M.M. 様回答日:2019年1月
20年を過ぎたカーゲートは開閉をサーポートするバネが壊れ、交換部品もなかったのでカーゲートを購入、工事をした。今までは重量挙げみたいにかなりの力が必要だったが、かなり楽になった。エクスショップさんはメールでの対応が迅速で気持ち良く交渉が出来ました。有難うございました。

5つ星のうち5
福岡県F.K. 様回答日:2025年4月
庭に侵入する害獣(イノシシ)対策のため、玄関への通路入口にネットを張っていたので見栄えを考え、カーゲートを設置。家の庭のフェンスとマッチして見栄えと開閉がよくなった。ネット注文に不安があったが、メール、電話共に係の対応がすばらしく、問題なく設置完了しました。

5つ星のうち5
熊本県T.I. 様回答日:2024年5月
大事にしているバイクが雨ざらし、また防犯上も心配することが多かったのですが、商品の使用が便利なようにと、時間をしっかりとかけながら説明や意見を取り入れて頂きました。非常に狭小なスペースでしたので、切り詰め作業も大変だったと思います。施工後、雨も沢山降りましたが安心していられます。ありがとうございました。
関連するブログ記事
関連するよくあるご質問
カーゲートって何ですか?
【商品カテゴリ >カーゲート】(ご質問No.28915)
カーポートとカーゲートの交換をしたいのですが、どのような商品が最適か提案をいただきたく、調査と打合せをお願いいたします。
【商品カテゴリ >カーポート】(ご質問No.2223)
TOSTEM アルピタUR 片開き
カラー:ブロンズ 規格幅:4180 (mm) 規格高:1150 (mm)
形状タイプ:ノンレールタイプ
自家の家の車庫に家族で設置したいのですが、商品のみのご購入が出来ますか??
商品のみの値段が解れば、是非教えて下さい。
【商品カテゴリ >カーゲート】(ご質問No.2235)
カーブポートシグマU ワイド
シャレオRX門扉、カーゲート
カーブポートシグマとどう違うのですか?
それと屋根材ですが、ポリカですりガラス調の色は出来ますか?
熱線吸収アクアシャインポリカの色は?
いま新築中ですが、建築業者との打ち合わせは可能なのですか?
門扉とカーポート、シャレオのカーゲート考えてます。
現場でのアドバイス等もお願い出来るのでしょうか?
【商品カテゴリ >カーポート】(ご質問No.2268)
TOEX ワイドオーバードアR1型 ハイルーフ電動タイプ 5400x1000
キューブポートワイド ハイルーフタイプ 5400x5700
施工日数も教えてください。
【商品カテゴリ >カーゲート】(ご質問No.2269)
カーポートについてお尋ねします。
メーカー TOSTEM 商品名 スクエード DG遮光
スクエード DG採光
千葉県
上記カーポートにオプションがあります。ハイルーフ仕様、サイドパネル、縦連棟施行の意味が分かりません。また跳ね上げ式カーゲートが設置可能でしょうか。宜しくお願いします。
【商品カテゴリ >カーポート】(ご質問No.2323)
神戸市
現在自動カーゲートがついていますが、ゲートの幅を広くしたいと考えています。
一度現地を見てもらい作業できるか確認して欲しいです
【商品カテゴリ >カーゲート】(ご質問No.2375)
新日軽 エクジスフォー30-51-51 3000×10173 ポリカーボネート板 定価568,000円
カーゲート XA型 2872×1250 定価140,200円
MA型 2955×1120 定価85,000円
ポスト OM2型 定価35,000+3,000円
杉並区
商品のみの購入を予定しています。当方の工務店に施行を依頼する予定。
【商品カテゴリ >カーポート】(ご質問No.2455)
バルコニーを2階に新設。
その部分の窓をバルコニーに出入りできるように取り替え。
カーゲート新設。
など、今度中古住宅を購入するのですが実際にどのサイズが適当なのかまた、トータルでいくらになるのか実際に現調時に積算してほしいのですが可能でしょうか?
TOSTEM アルピタUM 片開き
カラー:ブロンズ 規格幅:3020 (mm) 規格高:1050 (mm)
形状タイプ:ノンレールタイプ
TOSTEM アクトステージB型 アクリル透明タイプ
カラー:オータムブラウン 規格幅:3650 (mm) 規格奥行:1485 (mm) 床材:グレイ 柱仕様:柱建て式
【商品カテゴリ >カーゲート】(ご質問No.2490)
施工場所は、埼玉県
三協アルミのスペースマンテン(カーゲート)UC/後づけガイドレールタイプで13S+21Mで親子両開き設置して欲しいのですが、現状、門扉のポールが両サイドに立ち、床面がタイル張りで傾斜が有ります。はつってから、セメントで水平にして頂いて施工して頂くと、どの位になるでしょうか?同じ物でしたら、メーカーは拘りません。
【商品カテゴリ >カーゲート】(ご質問No.2532)


















