各取扱メーカーの会社名、ロゴ及び商品名等は各社の商標または登録商標です。
| 日 | 月 | 火 | 水 | 木 | 金 | 土 |
|---|---|---|---|---|---|---|
| 1 | 2 | 3 | 4 | 5 | 6 | |
| 7 | 8 | 9 | 10 | 11 | 12 | 13 |
| 14 | 15 | 16 | 17 | 18 | 19 | 20 |
| 21 | 22 | 23 | 24 | 25 | 26 | 27 |
| 28 | 29 | 30 | 31 |
| 日 | 月 | 火 | 水 | 木 | 金 | 土 |
|---|---|---|---|---|---|---|
| 1 | 2 | 3 | ||||
| 4 | 5 | 6 | 7 | 8 | 9 | 10 |
| 11 | 12 | 13 | 14 | 15 | 16 | 17 |
| 18 | 19 | 20 | 21 | 22 | 23 | 24 |
| 25 | 26 | 27 | 28 | 29 | 30 | 31 |
…休業日(現場調査・工事は一部対応)
![]()
【受付時間】9:30 - 17:30(営業日)
![]()
【受付時間】9:30 - 17:30(営業日)
オペレーションスタッフ
エクステリアプランナー有資格者の私たちにお任せください。
ショップ責任者
神(じん)
エクステリア プランナー
有資格者61名
1/3
1/3
今週のPick Upページ
![]()
ご利用頂いたお客様の口コミ・レビューを「お客様の声」として掲載しております。
全てのご感想を掲載しておりますので、エクスショップの評判としてご参考ください。
正式お見積りと一緒に提出させて頂いております「工事概略図面」もご覧頂けます。
商品や設置場所のご検討にお役立てください。
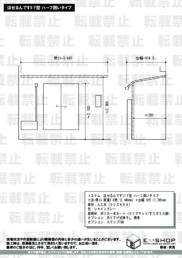
(写真No:16052413)
(テラス囲い・サンルーム)
| サイズ | 間口 3,640mm 出幅 1,785mm |
|---|---|
| カラー | シャイングレー |
| 屋根材 | ポリカーボネート(クリアマット/すりガラス調) |
| 工事方法 | メーカー責任施工 |
・連絡など迅速にして頂き、施工の際も丁寧に対応してもらったので全体を通して満足しています。
この度は、ほせるんですII F型の施工ご依頼を頂き誠に有難うございます。顔の見えないネット販売ではございますが、お客様に快適にご利用頂ける様、日々試行錯誤致しておりますので、この様なお言葉を頂戴でき大変嬉しく存じます。明るく爽やかなテラス囲いがご自宅にマッチしておりますね。後付とは思えないお仕上がりでございます。今後も、お客様にご満足頂ける様、日々精進して参りますので、また機会がございましたら是非エクスショップをご利用下さいます様、宜しくお願い致します。
当サイトは以下のセキュリティ機能や保護認定等を備えています。安心してお申し込みください
当サイトは256ビットSSL暗号化に対応しています。入力した個人情報は暗号化して送られますので、安心してご利用ください。
当社はJADMAの正会員です。同協会は法律で位置づけられた団体で、消費者の利益保護と業界の健全な発展の為に活動しています。
こちらの工事に使用しているエクステリア
![]()
サニージュF型 ハーフ囲い 屋根高タイプ 積雪20cm対応

工事費・税込
872,200円〜
サニージュF型 ハーフ囲い 屋根高タイプ 積雪20cm対応は空間を一層広くした屋根の高さが特徴的なテラス囲いです。通常の屋根材のほか、熱線カット効果に加え、美観を維持する防汚加工が施された熱線吸収アクアポリカーボネートもご用意。耐積雪性能は20cm相当対応です。
この商品の詳細へ
無料お見積り・現場調査・ご注文もこちら