各取扱メーカーの会社名、ロゴ及び商品名等は各社の商標または登録商標です。
| 日 | 月 | 火 | 水 | 木 | 金 | 土 |
|---|---|---|---|---|---|---|
| 1 | 2 | 3 | ||||
| 4 | 5 | 6 | 7 | 8 | 9 | 10 |
| 11 | 12 | 13 | 14 | 15 | 16 | 17 |
| 18 | 19 | 20 | 21 | 22 | 23 | 24 |
| 25 | 26 | 27 | 28 | 29 | 30 | 31 |
| 日 | 月 | 火 | 水 | 木 | 金 | 土 |
|---|---|---|---|---|---|---|
| 1 | 2 | 3 | 4 | 5 | 6 | 7 |
| 8 | 9 | 10 | 11 | 12 | 13 | 14 |
| 15 | 16 | 17 | 18 | 19 | 20 | 21 |
| 22 | 23 | 24 | 25 | 26 | 27 | 28 |
…休業日(現場調査・工事は一部対応)
![]()
【受付時間】9:30 - 17:30(営業日)
![]()
【受付時間】9:30 - 17:30(営業日)
オペレーションスタッフ
エクステリアプランナー有資格者の私たちにお任せください。
ショップ責任者
神(じん)
エクステリア プランナー
有資格者61名
1/3
木附
枡田
重富
吉澤
吉野
小東
池本
山田
佐藤
白崎
新西
伊野
次田
南
西山
小林
阿重田
梨田
長谷川
藤田
村上
平戸
植松
内田
久田
中島
長石
水口
榮
山崎
清水
室谷
安田
水谷
小野
酒井
一氏
神吉
日下部
山中
深田
田中
水田
西田
岡本
丸山
北
坂本
中嶋
岩野
伊藤
上中
高山
原
犬井
佐伯
谷川
塚田
松本
小林
森下
上内
島田
森
梅田
松山
山本
小西
倉地
山根
中原
河野
村上
土井
岩破
南
井上
三ツ股
小田
依藤
永禮
林
加藤
石藤
駒井
末吉
山本
芦野
樽井
野上
岡田
木村
池田
西村
藤澤
達川
奥原
那須
1/3
今週のPick Upページ
![]()
ご利用頂いたお客様の口コミ・レビューを「お客様の声」として掲載しております。
全てのご感想を掲載しておりますので、エクスショップの評判としてご参考ください。
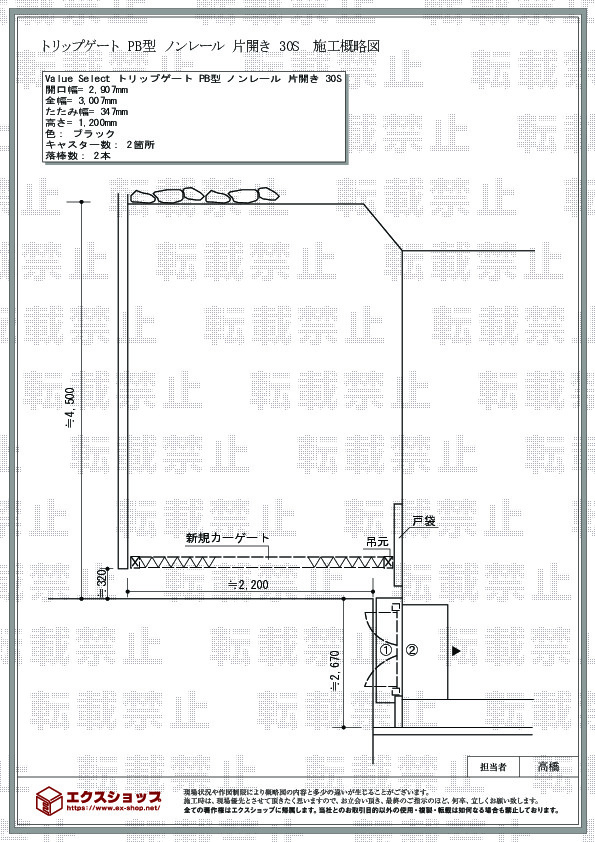
正式お見積りと一緒に提出させて頂いております「工事概略図面」もご覧頂けます。
商品や設置場所のご検討にお役立てください。
(写真No:18596019)
(カーゲート)
| カラー | ブラック |
|---|---|
| サイズ | 全幅 3,007mm 高さ 1,200mm |
| 柱タイプ | |
| 工事方法 | 地域密着あんしん施工 |
ホームページで簡単見積もりが取れ、おおよその金額が分かり便利でした。また、対応も早く、不明な点等も直接伺うことができ、安心感がありました。工事内容も大変満足しています。ありがとうございました。
この度は、エクスショップのプライベートブランドでございますトリップゲート PB型の施工をご依頼頂きまして、誠に有り難うございます。カーゲートの一流メーカーと共同で開発した商品でございますので、安価ではございますが、機能性・耐久性に優れており、安心してご愛用頂けるものと存じます。これからも、お客様の笑顔の為に、日々努力して参りますので、また機会がございましたら、是非エクスショップにご用命くださいますよう、宜しくお願い致します。
当サイトは以下のセキュリティ機能や保護認定等を備えています。安心してお申し込みください
当サイトは256ビットSSL暗号化に対応しています。入力した個人情報は暗号化して送られますので、安心してご利用ください。
当社はJADMAの正会員です。同協会は法律で位置づけられた団体で、消費者の利益保護と業界の健全な発展の為に活動しています。
こちらの工事に使用しているエクステリア
![]()
トリップゲートU 2型 スタンダード ノンレール 片開き

工事費・税込
100,300円〜
総合平均評価(星5つ評価)
4.65
商品レビュー数
230件
トリップゲートU 2型 スタンダード ノンレール 片開きはエクスショップオリジナルブランドの伸縮式カーゲートの片開きタイプです。ステンレス落とし棒や錠付きの取っ手など便利機能が充実しています。商品カラーも全6色と豊富です。
この商品の詳細へ
無料お見積り・現場調査・ご注文もこちら
この商品のレビュー
商品レビュー230件

東京都 東久留米市 A.T.様
非常に軽くキャスターも動き、使いやすいです。 見栄えも良いと思います。

兵庫県 西宮市 H.S.様
メーカー品ではなく、オリジナル商品を展開されているのは良いと思います。

神奈川県 南足柄市 K.T.様
コスパ抜群。もっと高価であれば気に入ったタイプもあるがこれにして良かった。

東京都 墨田区 A.N.様
基本的に使用するのは、実家に住む父と親戚のため、まだ良くわかりません。親戚は、軽くて断然良いと言ってました。

東京都 八王子市 H.E.様
とても使い易く購入して良かったと思います。

愛知県 知立市 M.N.様
ノンレールだからか音も静かで操作もしやすく満足しています。

東京都 板橋区 H.M.様
レールはないのですが、風対策で2か所止めるところがあるのがよかったです。先日息子夫婦が来て、いいのが付いたねと言ってくれました。

東京都 町田市 O.N.様
非常に満足しています 購入前10万円から12万円くらいをイメージしていました

東京都 世田谷区 S.Y.様
欠点は表玄関の門も兼ねてる駐車場なのでいかにも駐車場と云う感じが否めないことです。 ただ壊された為直ぐに取り付ける必要があったので仕方がないです。

埼玉県 久喜市 S.K.様
本体もすごく軽くて移動もスムーズ、畳んで横向きにすればコンパクトで場所を取らないのもいいです。固定の棒がとても使いやすくて驚きました。

東京都 府中市 A.K.様
オープンスペースなので、柱だけでは外部からの侵入という点では不安ですが、モノ自体は良いものなので、この評価です。

埼玉県 春日部市 I.K.様
特に他の商品と比べていないので、細かい部分は分かりませんが、商品には満足してます。門扉は重厚感があるものより、軽い感じの方が好みです。

福岡県 福岡市 N.M.様
商品その物の評価は、想定内であり大変満足しておりす。又近所の評判も大変良いようです。
関連するお客様の声

5つ星のうち5
兵庫県F.W. 様回答日:2013年5月
ホームページが見やすく、商品の選択がし易い。簡単見積もりがついているので料金の予想がつくので良い。メールの返信が早い。

5つ星のうち5
東京都T.M. 様回答日:2011年4月
仕上がりには満足しています。工務店に直接当たるより便利で料金も安くなるのなら良いサービスだと思います。

5つ星のうち5
福岡県F.K. 様回答日:2025年4月
庭に侵入する害獣(イノシシ)対策のため、玄関への通路入口にネットを張っていたので見栄えを考え、カーゲートを設置。家の庭のフェンスとマッチして見栄えと開閉がよくなった。ネット注文に不安があったが、メール、電話共に係の対応がすばらしく、問題なく設置完了しました。

5つ星のうち5
埼玉県I.Y. 様回答日:2023年1月
30年近く利用していたため門扉の鍵の掛かりも悪く、年末にとうとうタイヤ部分も壊れてしまいましたがテープで止めて騙しだまし使用していました。見積りの現地調査も迅速で、工期も半日かからず終了したのでとても助かりました。新しい商品は以前の物よりしっかりした作りで、軽い力でスムーズに動くので快適になりました。

5つ星のうち4
千葉県O.T. 様回答日:2023年1月
以前使っていたゲートが壊れてしまい急遽お問合せしました。年末でしたが迅速に動いて下さり 現地調査 ⇒見積り ⇒注文依頼 ⇒施工予定日 がトントン拍子に進められ 年末、お正月を挟んだにも関わらず お問合せしてから2週間ほどでやって頂きました。質問した事柄に関しても担当の方からご丁寧に返答を頂き安心しました。

5つ星のうち5
福岡県I.I. 様回答日:2022年12月
夏の台風で既設のカーゲートが破損し、開閉不可となっており改修を試みるも、他社に見積もり依頼をしていましたが、見積もりがなかなか出て来ず、また出た見積もりは今回行った施工費の5倍ほどの金額が提示されていたためエクスショップに依頼しました。きちんと施工頂き、品質にも満足しております。

5つ星のうち4
長野県A.H. 様回答日:2022年7月
職場(保育園)で長年使用していた伸縮フェンスが、壊れて開閉できなくなってしまったため、色や構造がほぼ同じ伸縮フェンスを購入することにしました。工事担当者より工事前、工事中、工事後に丁寧な説明があり安心しました。伸縮フェンスは、想像以上に丈夫な作りで開閉も軽く満足しています。

5つ星のうち5
福岡県F.K. 様回答日:2025年4月
庭に侵入する害獣(イノシシ)対策のため、玄関への通路入口にネットを張っていたので見栄えを考え、カーゲートを設置。家の庭のフェンスとマッチして見栄えと開閉がよくなった。ネット注文に不安があったが、メール、電話共に係の対応がすばらしく、問題なく設置完了しました。

5つ星のうち5
熊本県T.I. 様回答日:2024年5月
大事にしているバイクが雨ざらし、また防犯上も心配することが多かったのですが、商品の使用が便利なようにと、時間をしっかりとかけながら説明や意見を取り入れて頂きました。非常に狭小なスペースでしたので、切り詰め作業も大変だったと思います。施工後、雨も沢山降りましたが安心していられます。ありがとうございました。

5つ星のうち5
茨城県A.A. 様回答日:2024年4月
前回はテラスを、お願いしました。とても良く今回マタリピーターさせて頂きましたです防犯対策の為にカーゲート、メッシュフェンスを注文しました。ペットがいる為、ペットガード付きにしました。広々とドックランが完成しました。担当の方が相談し易い方に恵まれ施工も順調に、進みました。ペットが小型なので対策として、ネットを自作して気に入ってます。
関連するブログ記事
関連するよくあるご質問
カーゲートって何ですか?
【商品カテゴリ >カーゲート】(ご質問No.28915)
カーポートとカーゲートの交換をしたいのですが、どのような商品が最適か提案をいただきたく、調査と打合せをお願いいたします。
【商品カテゴリ >カーポート】(ご質問No.2223)
TOSTEM アルピタUR 片開き
カラー:ブロンズ 規格幅:4180 (mm) 規格高:1150 (mm)
形状タイプ:ノンレールタイプ
自家の家の車庫に家族で設置したいのですが、商品のみのご購入が出来ますか??
商品のみの値段が解れば、是非教えて下さい。
【商品カテゴリ >カーゲート】(ご質問No.2235)
カーブポートシグマU ワイド
シャレオRX門扉、カーゲート
カーブポートシグマとどう違うのですか?
それと屋根材ですが、ポリカですりガラス調の色は出来ますか?
熱線吸収アクアシャインポリカの色は?
いま新築中ですが、建築業者との打ち合わせは可能なのですか?
門扉とカーポート、シャレオのカーゲート考えてます。
現場でのアドバイス等もお願い出来るのでしょうか?
【商品カテゴリ >カーポート】(ご質問No.2268)
TOEX ワイドオーバードアR1型 ハイルーフ電動タイプ 5400x1000
キューブポートワイド ハイルーフタイプ 5400x5700
施工日数も教えてください。
【商品カテゴリ >カーゲート】(ご質問No.2269)
カーポートについてお尋ねします。
メーカー TOSTEM 商品名 スクエード DG遮光
スクエード DG採光
千葉県
上記カーポートにオプションがあります。ハイルーフ仕様、サイドパネル、縦連棟施行の意味が分かりません。また跳ね上げ式カーゲートが設置可能でしょうか。宜しくお願いします。
【商品カテゴリ >カーポート】(ご質問No.2323)
神戸市
現在自動カーゲートがついていますが、ゲートの幅を広くしたいと考えています。
一度現地を見てもらい作業できるか確認して欲しいです
【商品カテゴリ >カーゲート】(ご質問No.2375)
新日軽 エクジスフォー30-51-51 3000×10173 ポリカーボネート板 定価568,000円
カーゲート XA型 2872×1250 定価140,200円
MA型 2955×1120 定価85,000円
ポスト OM2型 定価35,000+3,000円
杉並区
商品のみの購入を予定しています。当方の工務店に施行を依頼する予定。
【商品カテゴリ >カーポート】(ご質問No.2455)
バルコニーを2階に新設。
その部分の窓をバルコニーに出入りできるように取り替え。
カーゲート新設。
など、今度中古住宅を購入するのですが実際にどのサイズが適当なのかまた、トータルでいくらになるのか実際に現調時に積算してほしいのですが可能でしょうか?
TOSTEM アルピタUM 片開き
カラー:ブロンズ 規格幅:3020 (mm) 規格高:1050 (mm)
形状タイプ:ノンレールタイプ
TOSTEM アクトステージB型 アクリル透明タイプ
カラー:オータムブラウン 規格幅:3650 (mm) 規格奥行:1485 (mm) 床材:グレイ 柱仕様:柱建て式
【商品カテゴリ >カーゲート】(ご質問No.2490)
施工場所は、埼玉県
三協アルミのスペースマンテン(カーゲート)UC/後づけガイドレールタイプで13S+21Mで親子両開き設置して欲しいのですが、現状、門扉のポールが両サイドに立ち、床面がタイル張りで傾斜が有ります。はつってから、セメントで水平にして頂いて施工して頂くと、どの位になるでしょうか?同じ物でしたら、メーカーは拘りません。
【商品カテゴリ >カーゲート】(ご質問No.2532)


















