快適なガレージには必須
お庭に機能的スペースを作り出します
日光、雨・風を防ぎバルコニーを快適に
ガレージの保全・防犯にカーポートと合わせて
お家の収納能力をアップ
ガレージ商品とコンビで高級感を演出
各取扱メーカーの会社名、ロゴ及び商品名等は各社の商標または登録商標です。
| 日 | 月 | 火 | 水 | 木 | 金 | 土 |
|---|---|---|---|---|---|---|
| 1 | 2 | 3 | 4 | 5 | 6 | 7 |
| 8 | 9 | 10 | 11 | 12 | 13 | 14 |
| 15 | 16 | 17 | 18 | 19 | 20 | 21 |
| 22 | 23 | 24 | 25 | 26 | 27 | 28 |
| 29 | 30 | 31 |
| 日 | 月 | 火 | 水 | 木 | 金 | 土 |
|---|---|---|---|---|---|---|
| 1 | 2 | 3 | 4 | |||
| 5 | 6 | 7 | 8 | 9 | 10 | 11 |
| 12 | 13 | 14 | 15 | 16 | 17 | 18 |
| 19 | 20 | 21 | 22 | 23 | 24 | 25 |
| 26 | 27 | 28 | 29 | 30 |
…休業日(現場調査・工事は一部対応)
![]()
【受付時間】9:30 - 17:30(営業日)
![]()
【受付時間】9:30 - 17:30(営業日)
オペレーションスタッフ
エクステリアプランナー有資格者の私たちにお任せください。
ショップ責任者
神(じん)
エクステリア プランナー
有資格者61名
1/3
木附
枡田
重富
吉澤
吉野
小東
池本
山田
佐藤
白崎
新西
伊野
次田
南
西山
小林
阿重田
梨田
長谷川
藤田
村上
平戸
植松
内田
久田
中島
長石
水口
榮
山崎
清水
室谷
安田
水谷
小野
酒井
一氏
神吉
日下部
山中
深田
田中
水田
西田
岡本
丸山
北
坂本
中嶋
岩野
伊藤
上中
高山
原
犬井
佐伯
谷川
塚田
松本
小林
森下
上内
島田
森
梅田
松山
山本
小西
倉地
山根
中原
河野
村上
土井
岩破
南
井上
三ツ股
小田
依藤
永禮
林
加藤
石藤
駒井
末吉
山本
芦野
樽井
野上
岡田
木村
池田
西村
藤澤
達川
奥原
那須
1/3
今週のPick Upページ
![]()
ご利用頂いたお客様の口コミ・レビューを「お客様の声」として掲載しております。
全てのご感想を掲載しておりますので、エクスショップの評判としてご参考ください。
正式お見積りと一緒に提出させて頂いております「工事概略図面」もご覧頂けます。
商品や設置場所のご検討にお役立てください。
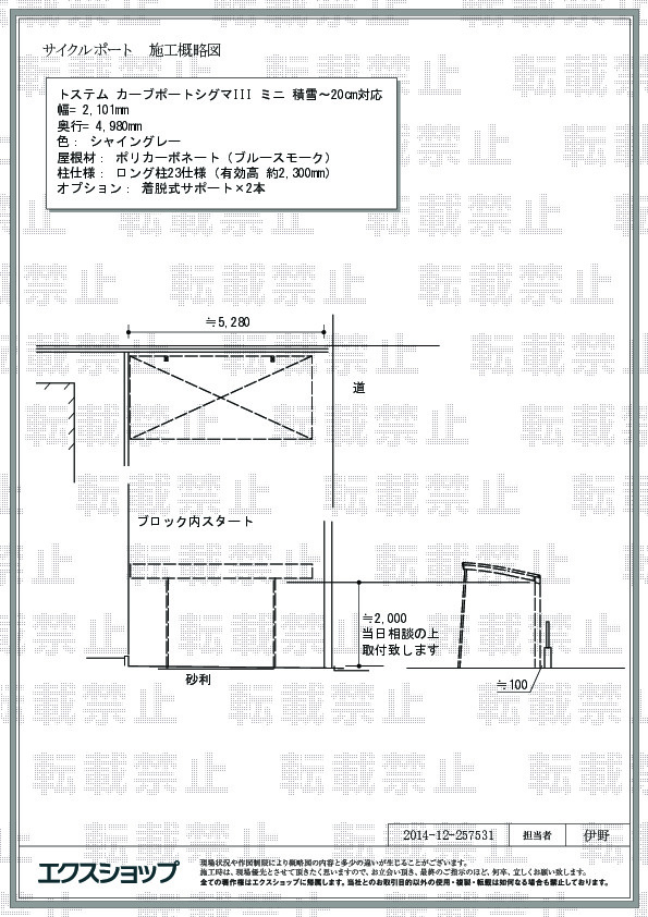
(写真No:25753121)
(サイクルポート・自転車置き場)
| カラー | シャイングレー |
|---|---|
| サイズ | 幅 1,801mm 奥行 4,980mm |
| 屋根高等 | 標準柱仕様(有効高 約1,800mm) |
| 屋根材等 | ポリカーボネート(ブルースモーク) |
| 工事方法 | メーカー責任施工 |
メールの返信、現場調査、見積、全てが早かった。そのため、検討にかかる時間の短縮ができた。価格も納得できるもので提示いただけた。
この度はカーブポートシグマIII ミニの施工をご依頼頂きまして、誠に有り難うございます。ネット販売ならではの迅速な対応にお褒めのお言葉を頂戴致しまして、大変光栄でございます。2本の支柱とサポート柱により支えられたサイクルポートは安定感があり、とても頼もしいお仕上がりでございますね。今後も日々精進して参りますので、また機会がございましたらエクスショップをご利用下さいますよう、宜しくお願い致します。
当サイトは以下のセキュリティ機能や保護認定等を備えています。安心してお申し込みください
当サイトはSSL暗号化に対応しています。入力した個人情報は暗号化して送られますので、安心してご利用ください。
当社はJADMAの正会員です。同協会は法律で位置づけられた団体で、消費者の利益保護と業界の健全な発展の為に活動しています。
こちらの工事に使用しているエクステリア
![]()
ネスカRミニ (ラウンドスタイル)

工事費・税込
121,200円〜
総合平均評価(星5つ評価)
4.76
商品レビュー数
499件
ネスカRミニ (ラウンドスタイル)は丸みのある屋根形状が目を引くサイクルポート・駐輪場です。基準風速Vo=34m/sの耐風性能も備わり、20cm相当の積雪に対応します。自転車を約3〜8台停められます(自転車1台の幅を600mmとして計算)。
この商品の詳細へ
無料お見積り・現場調査・ご注文もこちら
この商品のレビュー
商品レビュー499件

静岡県 静岡市 M.T.様
強風時の支え柱が思ったより車側に きたものの他は希望通り。

奈良県 奈良市 T.K.様
まだ施工したばかりなのでまわりの反応わかりませんが、私は満足してます。

茨城県 つくばみらい市 T.M.様
家ともマッチしていて、オシャレ。 これから夏に向けて日差しも遮ってくれて助かります。

大阪府 大阪市 Y.O.様
ホームセンターの商品と違いしっかりしていました。

兵庫県 伊丹市 N.T.様
色合いを含めて家の外装とマッチしていて満足しています。

埼玉県 上尾市 T.H.様
シンプルなデザインながら耐久性もありそうでとっても満足しています。

埼玉県 久喜市 O.T.様
今まで自転車は倉庫にしまっていて出し入れが不便でしたが、外に出しっぱなしでも雨に濡れないので楽になりました。

東京都 北区 K.M.様
クリアマットの色が離れて見ると想像以上にブルーでしたが、とても満足しています。

長野県 長野市 S.Y.様
元は別の商品を検討していましたが設置場所のサイズ感に合わせてこちらの商品を提案して頂きました。結果的にサイズ感がちょうど良く収まっているため大変満足しています。

宮崎県 宮崎市 Z.T.様
新築戸建ての外壁保障に抵触しないよう、外壁に固定しない独立タイプを検討し決めました。雨対策ももちろんですが、家の外観が良くなりました。予想通りの出来栄えで満足です。 商品に関しては、個人的にはもう少し低くても良いのになぁ〜(雨がより防げる為)とも思いました。見た目は高い方が良いのでしょうが。
関連するお客様の声

5つ星のうち5
広島県N.M. 様回答日:2015年4月
何より価格が安いこと。また、全て、メールのやり取りで見積もりから、現場調査及び工事日程の調整までできること。

5つ星のうち4
群馬県M.K. 様回答日:2014年10月
物置とサイクルポートを同時に施工して欲しかったのですが、別々でないとできないということでした。そのために物置の移設費用がかかるとの事で、少し納得できなかったので正直に気持ちを伝えると担当者の方が丁寧に調べて下さり、こちらの納得のできる見積りを出して下さいました。また質問に対する返信も早くとても気持ちよく工事まで進められました。

5つ星のうち4
栃木県O.M. 様回答日:2014年9月
インターネットでのやりとりが初めてで不安でしたが、メールでの返信がとても早く丁寧で安心できました。施工業者さんもとてもよかったです。

5つ星のうち4
群馬県S.L. 様回答日:2018年6月
自転車置き場を検討していた。その際、他業者様へお見積りをお願いした結果、あまりにも高額だったため、相見積を実施した。その際、対応が早く、価格も安価であったため、お願いいたしました。

5つ星のうち5
兵庫県N.T. 様回答日:2024年2月
新築以来約25年間ずっと、自転車置き場に屋根を設置したいと思っていましたが、ハウスメーカーからガス管の埋設位置の関係で無理だと言われてきました。ところが、御社の現場調査の際、こちらの考えていた形で設置可能だと即答いただき、とても嬉しかったです。実際、完成したものも期待した通りで満足しています。

5つ星のうち4
千葉県S.R. 様回答日:2023年4月
他社の見積もりの方が安かったので相談したら他社より少しお値引きしてくれて、施工も丁寧にしてくれたので満足です。子供2人を乗せて保育園に行く際に、雨が降っていると自転車に乗せて用意するまでに濡れる心配があったがサイクルポートをつけてもらったら、多少の雨では濡れることなく子供達を乗せることができるのでよかったです。

5つ星のうち5
東京都P.Y. 様回答日:2023年1月
新築一戸建てを建てるにあたり一年ほど前から色んなショップと比較をしましたが、取り扱い商品の豊富さや競争力のある金額が購入のきっかけとなりました。また、製品を後から設置したのにまるで注文住宅の純正オプションのような調和感が最高です。今後、物置やカーポートも設置を検討しているのでまた今後とも是非よろしくお願い致します。

5つ星のうち5
東京都K.T. 様回答日:2023年1月
以前より自転車やバイクの駐輪スペース上のベランダが小さくて雨に濡れていました。建築したハウスメーカーではサイクルポートの施工は行わない為に今回エクスショップに依頼し施工していただきました。施工したことにより駐輪場から玄関までをほぼ雨にぬれずに移動できるようになりました。

5つ星のうち5
埼玉県O.N. 様回答日:2022年11月
夫婦ともに通勤が自転車のためサイクルポートをつけたいと思っていました。日差しや雨を遮ってくれるため快適になりました。自転車の劣化を少しでも防ぐことができるのも嬉しい点です。エクスショップは対応が早くとても丁寧に対応していただき、安心感がありました。

5つ星のうち5
岡山県S.A. 様回答日:2026年1月
新築戸建の購入に伴い、カーポートとサイクルポートの設置を検討していました。インターネットで検索した際に上位に表示され、施工事例の画像やレビューを拝見して良さそうだと感じ、見積もりを依頼しました。見積もり内容の変更を何度かお願いしましたが、その都度迅速にご対応いただきました。また、工事日程の調整などについても小まめにご連絡をいただき、無事に完工することができました。
関連するブログ記事










関連するよくあるご質問
サイクルポートって何ですか?
【商品カテゴリ >サイクルポート・自転車置き場】(ご質問No.28914)
リレーリアにて、門柱+サイクルポートのようなものの取り扱いはありますか?
【商品カテゴリ >サイクルポート・自転車置き場】(ご質問No.214)
サイクルポートに目安で自転車何台くらいとめられますか?
【商品カテゴリ >サイクルポート・自転車置き場】(ご質問No.720)
サイクルポートと一緒に土間コンクリートを打設できますか?
【商品カテゴリ >サイクルポート・自転車置き場】(ご質問No.721)
スクリーンの取付けについて、「前面のみ」や「側面のみ」の取付けはできますか?
【商品カテゴリ >サイクルポート・自転車置き場】(ご質問No.722)
前の大雪で当社の自転車置き場がつぶれました。
つきましては新しく作成を考えていますので、一度見に来ていただいて見積もりを作成していただければ幸いです。 よろしく願います。
【商品カテゴリ >サイクルポート・自転車置き場】(ご質問No.961)
自宅の駐車場に屋根を付けたい。
【商品カテゴリ >サイクルポート・自転車置き場】(ご質問No.1009)
プレシオスポートミニを検討しています。
柱の高さを短くして使用したいのですが、工事ではなく物販のみの対応はしていただけるのでしょうか?
対応していただける場合の納期と商品の入荷方法(輸送時チャーター便?それとも宅配便?)
など教えていただければ幸いです。
よろしくお願いいたします。
【商品カテゴリ >サイクルポート・自転車置き場】(ご質問No.1100)
タカショーのサイクルポート「アートポートミニ」(21-21、標準柱熱線カット屋根)の設置を考えているのですが、見積もりをお願いできますか?
【商品カテゴリ >サイクルポート・自転車置き場】(ご質問No.1140)
お世話になります。
自宅に設置する駐輪場部材の購入を検討していますが、
三協アルミ カムフィNex R 延長 幅1792mm × 奥行3621mm 標準柱 を購入した場合の納品時期について教えてください。
【商品カテゴリ >サイクルポート・自転車置き場】(ご質問No.1198)


















