快適なガレージには必須
お庭に機能的スペースを作り出します
日光、雨・風を防ぎバルコニーを快適に
ガレージの保全・防犯にカーポートと合わせて
お家の収納能力をアップ
ガレージ商品とコンビで高級感を演出
各取扱メーカーの会社名、ロゴ及び商品名等は各社の商標または登録商標です。
| 日 | 月 | 火 | 水 | 木 | 金 | 土 |
|---|---|---|---|---|---|---|
| 1 | 2 | 3 | 4 | 5 | 6 | |
| 7 | 8 | 9 | 10 | 11 | 12 | 13 |
| 14 | 15 | 16 | 17 | 18 | 19 | 20 |
| 21 | 22 | 23 | 24 | 25 | 26 | 27 |
| 28 | 29 | 30 | 31 |
| 日 | 月 | 火 | 水 | 木 | 金 | 土 |
|---|---|---|---|---|---|---|
| 1 | 2 | 3 | ||||
| 4 | 5 | 6 | 7 | 8 | 9 | 10 |
| 11 | 12 | 13 | 14 | 15 | 16 | 17 |
| 18 | 19 | 20 | 21 | 22 | 23 | 24 |
| 25 | 26 | 27 | 28 | 29 | 30 | 31 |
…休業日(現場調査・工事は一部対応)
![]()
【受付時間】9:30 - 17:30(営業日)
![]()
【受付時間】9:30 - 17:30(営業日)
オペレーションスタッフ
エクステリアプランナー有資格者の私たちにお任せください。
ショップ責任者
神(じん)
エクステリア プランナー
有資格者61名
1/3
木附
枡田
重富
吉澤
吉野
小東
池本
山田
佐藤
白崎
新西
伊野
次田
浅川
南
西山
小林
梨田
長谷川
藤田
阿重田
村上
植松
内田
久田
小野
平戸
中島
長石
水口
榮
山崎
清水
室谷
安田
水谷
酒井
神吉
日下部
山中
深田
田中
水田
西田
一氏
岡本
北
坂本
中嶋
岩野
伊藤
上中
高山
竹本
犬井
佐伯
谷川
原
丸山
塚田
松本
上内
島田
森
梅田
松山
山本
小林
倉地
山根
中原
河野
村上
土井
岩破
南
井上
三ツ股
小田
依藤
永禮
林
加藤
石藤
駒井
末吉
山本
芦野
樽井
野上
岡田
木村
池田
西村
藤澤
達川
奥原
那須
小西
森下
1/3
今週のPick Upページ
![]()
ご利用頂いたお客様の口コミ・レビューを「お客様の声」として掲載しております。
全てのご感想を掲載しておりますので、エクスショップの評判としてご参考ください。
正式お見積りと一緒に提出させて頂いております「工事概略図面」もご覧頂けます。
商品や設置場所のご検討にお役立てください。
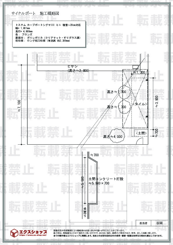
(写真No:20617222)
(サイクルポート・自転車置き場)
| カラー | ブロンズ |
|---|---|
| サイズ | 幅 1,801mm 奥行 4,980mm |
| 屋根高等 | ロング柱23仕様(有効高 約2,300mm) |
| 屋根材等 | ガリレポリカ(クリアマット・すりガラス調) |
| 工事方法 | 地域密着あんしん施工 |
特に対応等は問題なし。下見を含め丁寧に対応頂いた。
この度はカーブポートシグマIII ミニの施工をご依頼頂きまして、誠に有り難うございます。ネット販売という顔の見えないお取引の中で、お客様にご安心して施工をお任せ頂けるよう努めております私どもと致しまして、このようなお言葉を頂戴出来ますことを、何より嬉しく存じます。遮光性に優れたガリレポリカの屋根材により、明るく開放感のある素敵なお仕上がりでございますね。お気に召して頂き永くご愛用頂けましたら幸いでございます。今後もお客様のご期待を裏切ることの無いよう、なお一層の努力を重ねて参りますので、また機会がございましたらエクスショップをご用命下さいますよう、宜しくお願い致します。
当サイトは以下のセキュリティ機能や保護認定等を備えています。安心してお申し込みください
当サイトは256ビットSSL暗号化に対応しています。入力した個人情報は暗号化して送られますので、安心してご利用ください。
当社はJADMAの正会員です。同協会は法律で位置づけられた団体で、消費者の利益保護と業界の健全な発展の為に活動しています。
こちらの工事に使用しているエクステリア
![]()
ネスカRミニ (ラウンドスタイル)

工事費・税込
121,200円〜
総合平均評価(星5つ評価)
4.76
商品レビュー数
486件
ネスカRミニ (ラウンドスタイル)は丸みのある屋根形状が目を引くサイクルポート・駐輪場です。基準風速Vo=34m/sの耐風性能も備わり、20cm相当の積雪に対応します。自転車を約3〜8台停められます(自転車1台の幅を600mmとして計算)。
この商品の詳細へ
無料お見積り・現場調査・ご注文もこちら
この商品のレビュー
商品レビュー486件

大阪府 大阪市 Y.O.様
ホームセンターの商品と違いしっかりしていました。

兵庫県 伊丹市 N.T.様
色合いを含めて家の外装とマッチしていて満足しています。

埼玉県 上尾市 T.H.様
シンプルなデザインながら耐久性もありそうでとっても満足しています。

東京都 北区 K.M.様
クリアマットの色が離れて見ると想像以上にブルーでしたが、とても満足しています。

宮崎県 宮崎市 Z.T.様
新築戸建ての外壁保障に抵触しないよう、外壁に固定しない独立タイプを検討し決めました。雨対策ももちろんですが、家の外観が良くなりました。予想通りの出来栄えで満足です。 商品に関しては、個人的にはもう少し低くても良いのになぁ〜(雨がより防げる為)とも思いました。見た目は高い方が良いのでしょうが。

京都府 宇治市 S.T.様
雨の日、または暑い日とかに、屋根が有ると自転車、バイクが濡れないのと、自転車バイクの耐久性もいいと思います

東京都 葛飾区 K.T.様
外観上は気に入っています。 現在まだ雨は降っていませんがいいと思います。

東京都 八王子市 P.Y.様
サイズやカラーがちょうどよく家族のみんなが大満足しています。
関連するお客様の声

5つ星のうち5
兵庫県N.T. 様回答日:2024年2月
新築以来約25年間ずっと、自転車置き場に屋根を設置したいと思っていましたが、ハウスメーカーからガス管の埋設位置の関係で無理だと言われてきました。ところが、御社の現場調査の際、こちらの考えていた形で設置可能だと即答いただき、とても嬉しかったです。実際、完成したものも期待した通りで満足しています。

5つ星のうち5
東京都P.Y. 様回答日:2023年1月
新築一戸建てを建てるにあたり一年ほど前から色んなショップと比較をしましたが、取り扱い商品の豊富さや競争力のある金額が購入のきっかけとなりました。また、製品を後から設置したのにまるで注文住宅の純正オプションのような調和感が最高です。今後、物置やカーポートも設置を検討しているのでまた今後とも是非よろしくお願い致します。

5つ星のうち5
東京都K.T. 様回答日:2023年1月
以前より自転車やバイクの駐輪スペース上のベランダが小さくて雨に濡れていました。建築したハウスメーカーではサイクルポートの施工は行わない為に今回エクスショップに依頼し施工していただきました。施工したことにより駐輪場から玄関までをほぼ雨にぬれずに移動できるようになりました。

5つ星のうち5
埼玉県O.N. 様回答日:2022年11月
夫婦ともに通勤が自転車のためサイクルポートをつけたいと思っていました。日差しや雨を遮ってくれるため快適になりました。自転車の劣化を少しでも防ぐことができるのも嬉しい点です。エクスショップは対応が早くとても丁寧に対応していただき、安心感がありました。

5つ星のうち5
愛知県M.T. 様回答日:2022年8月
バイクの雨避けのために倉庫を撤去してガレージを置くか考えたが、普段使いしているためガレージにしたら出し入れが面倒だと思い別のなにかを探していたら見つけた。サイクルポート設置後、何度か雨があったが濡れなくなったので乗る前の拭き取る手間がなくなった。

5つ星のうち5
兵庫県Y.A. 様回答日:2024年11月
お隣が畑で大きい柿の木もあり、夏の終わりには蚊が多かったため、高めのフェンスを設置することにしました。工事もきちんと説明しながら進めて下さり、サイクルポートもフェンスも完璧な仕上がりで特にお値段が大満足でした!ありがとうございました!また何かありましたら利用させて頂きます。

5つ星のうち5
栃木県K.T. 様回答日:2024年7月
今までマンションタイプの賃貸にしか住んだことがなかった為、サイクルポートや物置の必要性を感じたことがなかったのですが、雨に濡れていない自転車や物が散乱していない庭は気持ちがいいです。ウッドデッキはそこまで広くないのですが、庭仕事と部屋の同線が良くなり大変満足しています。

5つ星のうち5
京都府Y.T. 様回答日:2024年5月
購入を考えるきっかけになったのは引っ越しです。設置前は自宅の駐車スペースに屋根がなく、バイクカバーが欠かせない状況でした。サイクルポート設置後、バイクカバーはもちろん不要です。雨の日にバイクで帰宅しても、玄関に入る前に、気軽にカッパを脱ぐことができて便利です。雨の日のゴミ出しも、サイクルポート内に出せるので、濡れずに済んで快適です。エクスショップでの見積から、商品決定、施工スケジュール調整、施工日の連絡、支払い方法の案内まで、非常にスムーズに進行しました。不明点に対しては非常に丁寧に対応いただき感謝しております。
関連するブログ記事










関連するよくあるご質問
サイクルポートって何ですか?
【商品カテゴリ >サイクルポート・自転車置き場】(ご質問No.28914)
リレーリアにて、門柱+サイクルポートのようなものの取り扱いはありますか?
【商品カテゴリ >サイクルポート・自転車置き場】(ご質問No.214)
サイクルポートに目安で自転車何台くらいとめられますか?
【商品カテゴリ >サイクルポート・自転車置き場】(ご質問No.720)
サイクルポートと一緒に土間コンクリートを打設できますか?
【商品カテゴリ >サイクルポート・自転車置き場】(ご質問No.721)
スクリーンの取付けについて、「前面のみ」や「側面のみ」の取付けはできますか?
【商品カテゴリ >サイクルポート・自転車置き場】(ご質問No.722)
前の大雪で当社の自転車置き場がつぶれました。
つきましては新しく作成を考えていますので、一度見に来ていただいて見積もりを作成していただければ幸いです。 よろしく願います。
【商品カテゴリ >サイクルポート・自転車置き場】(ご質問No.961)
自宅の駐車場に屋根を付けたい。
【商品カテゴリ >サイクルポート・自転車置き場】(ご質問No.1009)
プレシオスポートミニを検討しています。
柱の高さを短くして使用したいのですが、工事ではなく物販のみの対応はしていただけるのでしょうか?
対応していただける場合の納期と商品の入荷方法(輸送時チャーター便?それとも宅配便?)
など教えていただければ幸いです。
よろしくお願いいたします。
【商品カテゴリ >サイクルポート・自転車置き場】(ご質問No.1100)
タカショーのサイクルポート「アートポートミニ」(21-21、標準柱熱線カット屋根)の設置を考えているのですが、見積もりをお願いできますか?
【商品カテゴリ >サイクルポート・自転車置き場】(ご質問No.1140)
お世話になります。
自宅に設置する駐輪場部材の購入を検討していますが、
三協アルミ カムフィNex R 延長 幅1792mm × 奥行3621mm 標準柱 を購入した場合の納品時期について教えてください。
【商品カテゴリ >サイクルポート・自転車置き場】(ご質問No.1198)


















