各取扱メーカーの会社名、ロゴ及び商品名等は各社の商標または登録商標です。
| 日 | 月 | 火 | 水 | 木 | 金 | 土 |
|---|---|---|---|---|---|---|
| 1 | 2 | |||||
| 3 | 4 | 5 | 6 | 7 | 8 | 9 |
| 10 | 11 | 12 | 13 | 14 | 15 | 16 |
| 17 | 18 | 19 | 20 | 21 | 22 | 23 |
| 24 | 25 | 26 | 27 | 28 | 29 | 30 |
| 31 |
| 日 | 月 | 火 | 水 | 木 | 金 | 土 |
|---|---|---|---|---|---|---|
| 1 | 2 | 3 | 4 | 5 | 6 | |
| 7 | 8 | 9 | 10 | 11 | 12 | 13 |
| 14 | 15 | 16 | 17 | 18 | 19 | 20 |
| 21 | 22 | 23 | 24 | 25 | 26 | 27 |
| 28 | 29 | 30 |
…休業日(現場調査・工事は一部対応)
![]()
【受付時間】9:30 - 17:30(営業日)
![]()
【受付時間】9:30 - 17:30(営業日)
オペレーションスタッフ
エクステリアプランナー有資格者の私たちにお任せください。
ショップ責任者
神(じん)
エクステリア プランナー
有資格者61名
1/3
1/3
今週のPick Upページ
![]()
ご利用頂いたお客様の口コミ・レビューを「お客様の声」として掲載しております。
全てのご感想を掲載しておりますので、エクスショップの評判としてご参考ください。
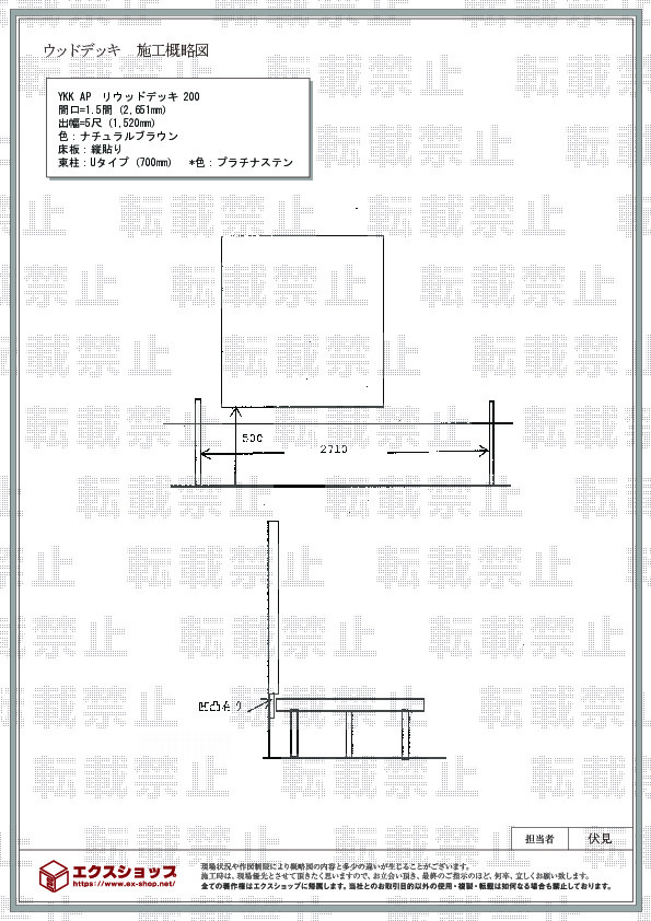
正式お見積りと一緒に提出させて頂いております「工事概略図面」もご覧頂けます。
商品や設置場所のご検討にお役立てください。
(写真No:22345224)
(ウッドデッキ)
| カラー | ナチュラルブラウン |
|---|---|
| サイズ | 間口 2,651mm 出幅 1,520mm |
| 工事方法 | 地域密着あんしん施工 |
当初は、ネットでの注文、御社が神戸であることで心配でした(茨城からは遠いなあ)しかし、発注から施工までの動きが早く、また、丁寧な対応で安心しました。リウッドデッキは天気にも恵まれ予定通り1日で完成しました。施工は地域密着安心施工を選びました。業者の方もとても対応がよく、地域密着を選んでよかったと思います。完成後のリウッドデッキは、イメージ通りで大満足しています。ありがとうございました。現在は、早くも犬小屋をおいています。次はテラス囲いを検討しています(妻にはまだ内緒ですが…)
この度はリウッドデッキ200の施工をご依頼頂き、誠に有り難うございました。遠方のお客様にも安心してご利用頂き、迅速な対応が出来ることがネット販売の魅力だと感じ、日々努力しておりますので、このようなお褒めのお言葉を頂くことは、何よりの喜びでございます。ナチュラルブラウンのウッドデッキが芝生の緑に映え、明るく美しいお仕上がりでございますね。広々として温かみのあるリウッドデッキがご家族皆様の団欒の場となりますことを、心より願っております。これからもお客様のご満足の為にエクスショップは日々精進して参ります。また機会がございましたら、是非弊社にご用命くださいますよう、宜しくお願い致します。
当サイトは以下のセキュリティ機能や保護認定等を備えています。安心してお申し込みください
当サイトはSSL暗号化に対応しています。入力した個人情報は暗号化して送られますので、安心してご利用ください。
当社はJADMAの正会員です。同協会は法律で位置づけられた団体で、消費者の利益保護と業界の健全な発展の為に活動しています。
こちらの工事に使用しているエクステリア
![]()
リウッドデッキ S

工事費・税込
69,500円~
商品レビュー数
27件
リウッドデッキ S(旧商品200)は木粉とポリプロピレンを混合したリウッド(再生木)でできた人工木デッキです。硬度・耐水性・耐候性・防腐朽性の高さが特徴で、水濡れやシロアリ・菌類による腐食の心配がありません。目地幅は安全性と意匠性を考慮した3mm幅設定。※束石の手配は別途。
この商品の詳細へ
無料お見積り・現場調査・ご注文もこちら