お客様の声(工事例)

ご利用頂いたお客様の口コミ・レビューを「お客様の声」として掲載しております。
全てのご感想を掲載しておりますので、エクスショップの評判としてご参考ください。
正式お見積りと一緒に提出させて頂いております「工事概略図面」もご覧頂けます。
商品や設置場所のご検討にお役立てください。

毎日更新 安心と信頼の工事実績
声の掲載数
177,246
商品工事数
220,287
(2025年10月17日現在)

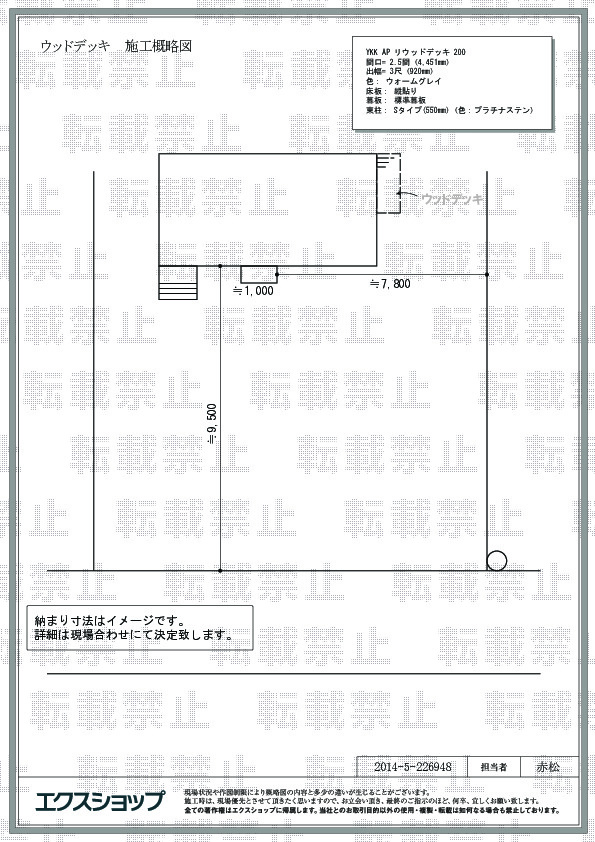
長野県長野県 のYKKAPウッドデッキ施工例(リウッドデッキ 200)

長野県長野県のYKKAPのウッドデッキ リウッドデッキ 200 施工例

(写真No:22694825)

リウッドデッキ 200

カラー ウォームグレイ
サイズ 間口 4,451mm 出幅 920mm
工事方法 地域密着あんしん施工

お客様の感想 評価: 5つ星のうち1 1

噂通りでがっかりしました。特に担当者の評判はどんぴしゃです。知識がない、対応が適当等

エクスショップ担当者より

弊社担当者の対応に至らない点がございまして、お客様にご迷惑及びご心配をお掛け致しましたこと、誠に申し訳ございませんでした。ネット販売という顔の見えないお取引の中でお客様にご安心頂ける対応に努めるべきでございますのに、このような事態となりご満足頂けない結果となってしまいましたこと、大変心苦しく感じております。ご指摘頂きましたことを肝に銘じ、今後二度とこのようなことの無いようスタッフの知識教育に努めるとともに、お客様目線での真摯な対応に努めて参る所存でございます。重ねてではございますが、ご迷惑をお掛け致しましたこと、心より深くお詫び申し上げます。今後またなにかお気づきの点等ございましたらお手数ではございますが、エクスショップまでご連絡下さいますよう、宜しくお願い致します。

この工事例についてのお問い合わせ

下のフォームの全項目にご入力の上、確認画面へ進んでください。
(※お客様にご入力いただいた情報は、セコムSSLにて暗号化され、安全に送信されます。)

お名前
(ふりがな)
せい めい
ご住所 都道府県:
メールアドレス

メールアドレスを持っていない(info@ex-shop.netが自動入力されます)

お電話番号
お問い合わせ内容

上の「お問い合わせフォーム」に必要事項を全て入力されましたら、
次の入力内容の確認ページへと進んでください。

確認画面へ進む

第三者への転売等を目的とする建設関連業者様からの施工のご依頼は、申し訳ありませんがお断りしております(※商品のみのご購入には対応しております)。

こちらの工事に使用しているエクステリア

YKKAP

リウッドデッキ 200

  • 54%OFF
  • さらに特別値引

工事費・税込

78,800円〜

総合平均評価(星5つ評価)

4.69

商品レビュー数

5939

リウッドデッキ 200は木粉とポリプロピレンを混合したリウッド(再生木)でできた人工木デッキです。硬度・耐水性・耐候性・防腐朽性の高さが特徴で、水濡れやシロアリ・菌類による腐食の心配がありません。目地幅は安全性と意匠性を考慮した3mm幅設定。※束石の手配は別途。

この商品のレビュー

エクスショップが選ばれる7つの理由

高価な買い物だから、工事が必要な商品だから、ネットを介した購入だから、工事実績豊富で価格面も安心!のエクスショップが選ばれています。

25年連続NO.1エクステリアネット販売実績2000〜2024

  • 極限価格 割引率最大69%+α OFF!!
  • 現場調査&お見積り工事開始まですべて無料! 仕様変更による再見積りももちろん無料!
  • 全国対応 地域密着 1,613店 お近くの当社提携施工店が工事対応します!
  • メーカー取り扱い商品点数 豊富な10,000商品
  • 掲載中の施工実績&お客様の声 170,000件の実績!!
  • 商品&施工、安心のダブル保証! 商品2年施工10年
  • お客様情報をあらゆる面から守ります 安心セキュリティ

ページトップへ