各取扱メーカーの会社名、ロゴ及び商品名等は各社の商標または登録商標です。
| 日 | 月 | 火 | 水 | 木 | 金 | 土 |
|---|---|---|---|---|---|---|
| 1 | ||||||
| 2 | 3 | 4 | 5 | 6 | 7 | 8 |
| 9 | 10 | 11 | 12 | 13 | 14 | 15 |
| 16 | 17 | 18 | 19 | 20 | 21 | 22 |
| 23 | 24 | 25 | 26 | 27 | 28 | 29 |
| 30 |
| 日 | 月 | 火 | 水 | 木 | 金 | 土 |
|---|---|---|---|---|---|---|
| 1 | 2 | 3 | 4 | 5 | 6 | |
| 7 | 8 | 9 | 10 | 11 | 12 | 13 |
| 14 | 15 | 16 | 17 | 18 | 19 | 20 |
| 21 | 22 | 23 | 24 | 25 | 26 | 27 |
| 28 | 29 | 30 | 31 |
…休業日(現場調査・工事は一部対応)
![]()
【受付時間】9:30 - 17:30(営業日)
![]()
【受付時間】9:30 - 17:30(営業日)
オペレーションスタッフ
エクステリアプランナー有資格者の私たちにお任せください。
ショップ責任者
神(じん)
エクステリア プランナー
有資格者61名
1/3
木附
枡田
重富
吉澤
吉野
小東
池本
山田
佐藤
白崎
新西
伊野
次田
浅川
南
西山
小林
梨田
長谷川
藤田
阿重田
村上
植松
内田
久田
小野
平戸
中島
長石
水口
榮
山崎
清水
室谷
安田
水谷
酒井
神吉
日下部
山中
深田
田中
水田
西田
一氏
岡本
北
坂本
中嶋
岩野
伊藤
上中
高山
竹本
犬井
佐伯
谷川
原
丸山
塚田
松本
上内
島田
森
梅田
松山
山本
小林
倉地
山根
中原
河野
村上
土井
岩破
南
井上
三ツ股
小田
依藤
永禮
林
加藤
石藤
駒井
末吉
山本
芦野
樽井
野上
岡田
木村
池田
西村
藤澤
達川
奥原
那須
小西
森下
1/3
今週のPick Upページ
![]()
ご利用頂いたお客様の口コミ・レビューを「お客様の声」として掲載しております。
全てのご感想を掲載しておりますので、エクスショップの評判としてご参考ください。
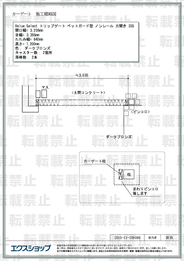
正式お見積りと一緒に提出させて頂いております「工事概略図面」もご覧頂けます。
商品や設置場所のご検討にお役立てください。
(写真No:30906931)
(カーゲート)
| カラー | ダークブロンズ |
|---|---|
| サイズ | 全幅 3,355mm 高さ 1,200mm |
| 柱タイプ | |
| 工事方法 | 地域密着あんしん施工 |
ガレージが老朽化していたので設置した。以前のものより、より安心して使えそうだ。エクスショップは、知らなかったのでやや不安もあったが、実際に注文してみると、きちんと対応してもうらうことが出来、また施工もしっかりしており、精算時も良心的に対応してもらうことが出来た。
トリップゲート ペットガード型 ノンレール 片開きの施工をご依頼頂きまして、誠に有り難うございます。お住まいの顔として、綺麗に納まりましたこと、大変嬉しく存じます。カーゲートの下部は間隔が狭くなっており、ペットの脱走や外部からの浸入を防ぐことが出来るものと存じます。担当致します施工士も弊社スタッフも、常にお客様に満足して頂くことを第一に考えておりますので、このようなお褒めのお言葉を頂き、これからの励みになります。アフターサービスにつきましても、責任を持って対応致しますので、何かございましたら、お気軽に弊社までご連絡頂きますよう、宜しくお願い致します。
当サイトは以下のセキュリティ機能や保護認定等を備えています。安心してお申し込みください
当サイトは256ビットSSL暗号化に対応しています。入力した個人情報は暗号化して送られますので、安心してご利用ください。
当社はJADMAの正会員です。同協会は法律で位置づけられた団体で、消費者の利益保護と業界の健全な発展の為に活動しています。
こちらの工事に使用しているエクステリア
![]()
トリップゲートU P型 ペットガード付き ノンレール 片開き

工事費・税込
120,200円〜
総合平均評価(星5つ評価)
4.62
商品レビュー数
128件
トリップゲートU P型 ペットガード付き ノンレール 片開きはエクスショップオリジナルブランドの格子ガード付き伸縮式カーゲートです。通常のトリップゲートよりゲート下の隙間が小さい51mmを採用しているのでペットの飛び出しを防止します。
この商品の詳細へ
無料お見積り・現場調査・ご注文もこちら
この商品のレビュー
商品レビュー128件

福岡県 糸島市 S.R.様
全体的には満足してます。 ただ少しゲートを開けて出入りする時でもズレ防止の棒?を上げないとゲートが縮まらないのがちょっと面倒かなと思います。

長崎県 長崎市 H.T.様
・門扉の開閉が簡単になった。 ・カーポート全体がスッキリなり、防犯効果も増進した。 ・手続きが丁寧で確実なた め、信頼がおけた。

京都府 向日市 Y.H.様
丁寧に工事していただいて、商品にも満足しています。

岡山県 岡山市 N.N.様
先に設置いただいたカーポートと外構フェンスとの色合いもよく、気に入っています。

東京都 足立区 U.R.様
ペットガード付きが一番の目的で、実際には下に5センチの隙間ができるので、犬についての不安は解消されたが、猫については完全ではないので、そこだけが少し気になる。

埼玉県 朝霞市 U.M.様
小型犬も出ないです! 折りたたみ式ですが、丈夫です!

福島県 いわき市 M.U.様
子供の飛び出し防止ではありますが、いずれペットを購入した時にも活躍しそうです。

福岡県 京都郡みやこ町 I.T.様
ペット(犬)を飼っているのでペットガード付ゲートは使い勝手もよく満足のいく商品です。

神奈川県 川崎市 M.H.様
開閉がとても軽く、快適になったので満足しています。

熊本県 荒尾市 M.S.様
上記対策ができ、敷地内でペットを離せるようになった。プラスでゲートを利用して布団が干せるようになった。

千葉県 野田市 T.M.様
土間工事もしていただいたことで がたつきもなく開閉もスムーズです。

埼玉県 さいたま市 A.M.様
思っていたよりも隙間が狭く入り組んでいるので、小型犬でも安心出来ると思います。

神奈川県 中郡大磯町 A.Y.様
滑らかで、しっかりした作りでよかったです。

千葉県 市川市 M.Y.様
大変満足しています。 これから、庭で楽に犬と遊べるようになりました。 又、今までは解放状態の伸縮ゲートも楽に締まるようになり、防犯上にもよくなりました。

神奈川県 川崎市 K.T.様
開閉がスムーズで軽い、造もがっちりしていて長持ちしそうな感じです。

神奈川県 川崎市 O.K.様
思っていたよりしっかりとしたフェンスで、その割には動きがスムーズで満足です。

千葉県 船橋市 M.K.様
YKKやリクシルも考えましたが、バリュー価格のオリジナルで十分でした。わんこの脱走、野良猫の侵入も防げ、何より開閉スムーズ、音静かが有難い。

千葉県 千葉市 W.M.様
思っていたよりもしっかりとした造りでした。設置後、片開きのドアが、ポールを全て引き抜かないと開閉が出来ないと知り、親子ドアタイプにすれば良かったと少し後悔しています。
関連するお客様の声

5つ星のうち4
東京都O.J. 様回答日:2013年9月
ネットでの注文ということで不安もありましたが、丁寧に対応していただいたので安心できました。仕上がりも満足しています。

5つ星のうち5
鹿児島県M.K. 様回答日:2011年8月
ネットで工事を頼むことに不安がありましたが,見積もりに来てくれた方の対応,メールでの対応,そして何より他社より安いことから注文しました。施工は丁寧で,商品についても,とても満足しています。

5つ星のうち4
滋賀県M.N. 様回答日:2012年5月
施工業者と直接のやり取りができなかったことで、連絡に時間がかかってしまいましたが、良心的に対応していただけ、安心してお任せする事ができました。

5つ星のうち5
静岡県H.H. 様回答日:2021年12月
ガレージが壊れてしまったので新しいガレージを購入。エクスショップで安く販売されていたので問い合せた。実際に取り付けたものは別の商品でしたが、価格・品質共に満足しています。

5つ星のうち5
東京都K.M. 様回答日:2020年1月
ガレージが古くカーゲートが大分壊れかけていたので交換。以前着いていたものよりも非常に軽く取り扱いが楽になった。

5つ星のうち4
大阪府I.K. 様回答日:2019年2月
・以前のものが老朽化していたので取り換えを検討していた。。・伸縮ゲートを開けて折りたたんでひらいた時に固定できるようになったことが良くなった。

5つ星のうち5
東京都N.T. 様回答日:2011年5月
エクスショップの方の電話の対応も丁寧でしたし、現場調査に来て下さった方、施工担当者の方も良心的で好感を持てました。思っていた以上に素敵に仕上がり大満足です。エクスショップにお願いして本当に良かったと思っております。次回もまたお願いしたいです。

5つ星のうち4
千葉県A.T. 様回答日:2019年12月
以前に設置していたゲートが、老朽化してきた中で電動ゲートにすることで開け閉めの楽さ、目隠しの機能が高いものにしたい希望が叶いました。

5つ星のうち5
熊本県T.I. 様回答日:2024年5月
大事にしているバイクが雨ざらし、また防犯上も心配することが多かったのですが、商品の使用が便利なようにと、時間をしっかりとかけながら説明や意見を取り入れて頂きました。非常に狭小なスペースでしたので、切り詰め作業も大変だったと思います。施工後、雨も沢山降りましたが安心していられます。ありがとうございました。

5つ星のうち4
千葉県W.M. 様回答日:2022年7月
駐車場の拡張に伴い、飼い猫が庭から外に出ないようにゲートを作る事にしました。土間をコンクリートにし、とてもキレイになりました。またペットゲートを付け、猫が脱走することも無く安心です。ゲートは親子ドアにした方が使い勝手が良かったかなと、ちょと後悔しています。ただ口コミ程お安くはなかったです。

5つ星のうち5
千葉県M.K. 様回答日:2022年7月
15年使ったカーゲートが重く、ガタガタ音も酷く近所迷惑レベルだったが、開閉が軽く楽になり、音も静かで全然気にならず。もっと早く変えれば良かったです。ベランダルーフもこれで天候気にせず、洗濯物を干して出かけられ便利になり、もっと早く付けてれば良かったと後悔。

5つ星のうち5
大阪府O.T. 様回答日:2021年12月
シャッターの開閉が重すぎて、いずれ扱えなくなる時期が近いだろうから、ガレージ前にカーゲートを設置すればどうかと考えていました。ちょっと無理気味の要望にも快く応じてくださり、こちらの希望にそった、イメージ通りの工事をして頂きました。お礼申し上げます。

5つ星のうち5
福岡県T.T. 様回答日:2021年10月
以前、設置のガレージシャッターでは、当家のペット(犬)が度々飛び出しがあったためペットガード付のシャッターがないものかと検索したところエクスショップ様の製品紹介で最適な商品があったので、即依頼をし工事をお願いいたしました。今では安心して敷地内で遊ばしております。
関連するブログ記事
関連するよくあるご質問
カーゲートって何ですか?
【商品カテゴリ >カーゲート】(ご質問No.28915)
カーポートとカーゲートの交換をしたいのですが、どのような商品が最適か提案をいただきたく、調査と打合せをお願いいたします。
【商品カテゴリ >カーポート】(ご質問No.2223)
TOSTEM アルピタUR 片開き
カラー:ブロンズ 規格幅:4180 (mm) 規格高:1150 (mm)
形状タイプ:ノンレールタイプ
自家の家の車庫に家族で設置したいのですが、商品のみのご購入が出来ますか??
商品のみの値段が解れば、是非教えて下さい。
【商品カテゴリ >カーゲート】(ご質問No.2235)
カーブポートシグマU ワイド
シャレオRX門扉、カーゲート
カーブポートシグマとどう違うのですか?
それと屋根材ですが、ポリカですりガラス調の色は出来ますか?
熱線吸収アクアシャインポリカの色は?
いま新築中ですが、建築業者との打ち合わせは可能なのですか?
門扉とカーポート、シャレオのカーゲート考えてます。
現場でのアドバイス等もお願い出来るのでしょうか?
【商品カテゴリ >カーポート】(ご質問No.2268)
TOEX ワイドオーバードアR1型 ハイルーフ電動タイプ 5400x1000
キューブポートワイド ハイルーフタイプ 5400x5700
施工日数も教えてください。
【商品カテゴリ >カーゲート】(ご質問No.2269)
カーポートについてお尋ねします。
メーカー TOSTEM 商品名 スクエード DG遮光
スクエード DG採光
千葉県
上記カーポートにオプションがあります。ハイルーフ仕様、サイドパネル、縦連棟施行の意味が分かりません。また跳ね上げ式カーゲートが設置可能でしょうか。宜しくお願いします。
【商品カテゴリ >カーポート】(ご質問No.2323)
神戸市
現在自動カーゲートがついていますが、ゲートの幅を広くしたいと考えています。
一度現地を見てもらい作業できるか確認して欲しいです
【商品カテゴリ >カーゲート】(ご質問No.2375)
新日軽 エクジスフォー30-51-51 3000×10173 ポリカーボネート板 定価568,000円
カーゲート XA型 2872×1250 定価140,200円
MA型 2955×1120 定価85,000円
ポスト OM2型 定価35,000+3,000円
杉並区
商品のみの購入を予定しています。当方の工務店に施行を依頼する予定。
【商品カテゴリ >カーポート】(ご質問No.2455)
バルコニーを2階に新設。
その部分の窓をバルコニーに出入りできるように取り替え。
カーゲート新設。
など、今度中古住宅を購入するのですが実際にどのサイズが適当なのかまた、トータルでいくらになるのか実際に現調時に積算してほしいのですが可能でしょうか?
TOSTEM アルピタUM 片開き
カラー:ブロンズ 規格幅:3020 (mm) 規格高:1050 (mm)
形状タイプ:ノンレールタイプ
TOSTEM アクトステージB型 アクリル透明タイプ
カラー:オータムブラウン 規格幅:3650 (mm) 規格奥行:1485 (mm) 床材:グレイ 柱仕様:柱建て式
【商品カテゴリ >カーゲート】(ご質問No.2490)
施工場所は、埼玉県
三協アルミのスペースマンテン(カーゲート)UC/後づけガイドレールタイプで13S+21Mで親子両開き設置して欲しいのですが、現状、門扉のポールが両サイドに立ち、床面がタイル張りで傾斜が有ります。はつってから、セメントで水平にして頂いて施工して頂くと、どの位になるでしょうか?同じ物でしたら、メーカーは拘りません。
【商品カテゴリ >カーゲート】(ご質問No.2532)


















