各取扱メーカーの会社名、ロゴ及び商品名等は各社の商標または登録商標です。
| 日 | 月 | 火 | 水 | 木 | 金 | 土 |
|---|---|---|---|---|---|---|
| 1 | 2 | 3 | ||||
| 4 | 5 | 6 | 7 | 8 | 9 | 10 |
| 11 | 12 | 13 | 14 | 15 | 16 | 17 |
| 18 | 19 | 20 | 21 | 22 | 23 | 24 |
| 25 | 26 | 27 | 28 | 29 | 30 | 31 |
| 日 | 月 | 火 | 水 | 木 | 金 | 土 |
|---|---|---|---|---|---|---|
| 1 | 2 | 3 | 4 | 5 | 6 | 7 |
| 8 | 9 | 10 | 11 | 12 | 13 | 14 |
| 15 | 16 | 17 | 18 | 19 | 20 | 21 |
| 22 | 23 | 24 | 25 | 26 | 27 | 28 |
…休業日(現場調査・工事は一部対応)
![]()
【受付時間】9:30 - 17:30(営業日)
![]()
【受付時間】9:30 - 17:30(営業日)
オペレーションスタッフ
エクステリアプランナー有資格者の私たちにお任せください。
ショップ責任者
神(じん)
エクステリア プランナー
有資格者61名
1/3
1/3
今週のPick Upページ
![]()
ご利用頂いたお客様の口コミ・レビューを「お客様の声」として掲載しております。
全てのご感想を掲載しておりますので、エクスショップの評判としてご参考ください。
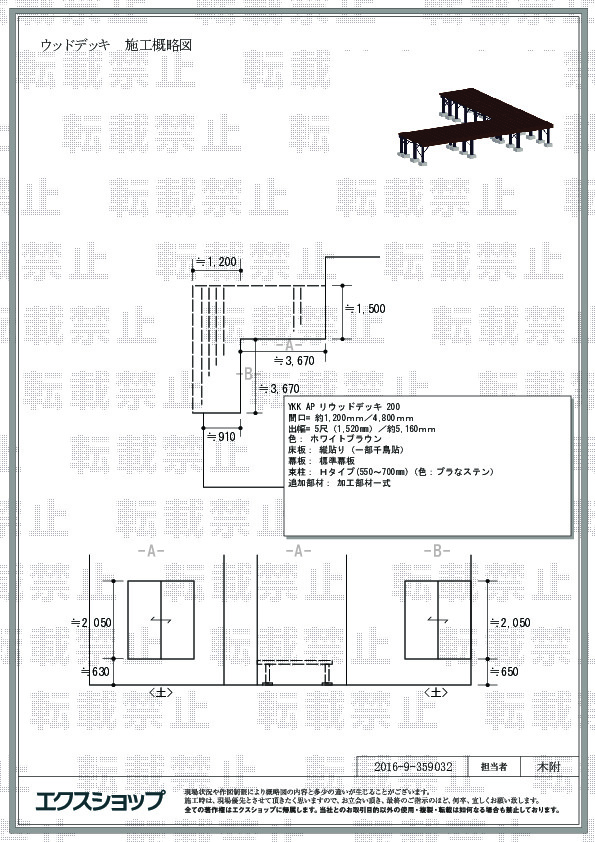
正式お見積りと一緒に提出させて頂いております「工事概略図面」もご覧頂けます。
商品や設置場所のご検討にお役立てください。
(写真No:35903239)
(ウッドデッキ)
| カラー | ホワイトブラウン |
|---|---|
| サイズ | 間口 4,800mm 出幅 5,160mm |
| 工事方法 | 地域密着あんしん施工 |
子どもが走って回れる家を理想としていたので、部屋からデッキを回遊魚のようにぐるぐると回れるようになったのが、とても嬉しいです。最近の家は床下も高いため、リビングの窓から庭に出るのは、一苦労でしたが、大変便利になりました。建物と庭の距離が近くなったように感じます。
この度は、リウッドデッキ200の施工をご依頼頂きまして誠に有り難うございます。お部屋を囲むように設置されたウッドデッキは、後付けとは思えない自然な仕上がりでございますね。早速、お子様が楽しんでいらっしゃるようで、私共も大変嬉しく存じます。また、お庭に出る際にも利便性を実感頂けているようで幸いでございます。メンテナンスが楽で、耐久性もある人工木のウッドデッキですので、長くご愛用頂けるのではないかと期待しております。これからも、エクステリアの施工を通じてお客様のより快適な暮らしのお手伝いができるよう、日々精進して参ります。またの機会がありましたら、是非エクスショップをご利用下さいますよう宜しくお願い申し上げます。
当サイトは以下のセキュリティ機能や保護認定等を備えています。安心してお申し込みください
当サイトは256ビットSSL暗号化に対応しています。入力した個人情報は暗号化して送られますので、安心してご利用ください。
当社はJADMAの正会員です。同協会は法律で位置づけられた団体で、消費者の利益保護と業界の健全な発展の為に活動しています。
こちらの工事に使用しているエクステリア
![]()
リウッドデッキ S

工事費・税込
69,500円〜
商品レビュー数
5件
リウッドデッキ S(旧商品200)は木粉とポリプロピレンを混合したリウッド(再生木)でできた人工木デッキです。硬度・耐水性・耐候性・防腐朽性の高さが特徴で、水濡れやシロアリ・菌類による腐食の心配がありません。目地幅は安全性と意匠性を考慮した3mm幅設定。※束石の手配は別途。
この商品の詳細へ
無料お見積り・現場調査・ご注文もこちら