各取扱メーカーの会社名、ロゴ及び商品名等は各社の商標または登録商標です。
| 日 | 月 | 火 | 水 | 木 | 金 | 土 |
|---|---|---|---|---|---|---|
| 1 | 2 | |||||
| 3 | 4 | 5 | 6 | 7 | 8 | 9 |
| 10 | 11 | 12 | 13 | 14 | 15 | 16 |
| 17 | 18 | 19 | 20 | 21 | 22 | 23 |
| 24 | 25 | 26 | 27 | 28 | 29 | 30 |
| 31 |
| 日 | 月 | 火 | 水 | 木 | 金 | 土 |
|---|---|---|---|---|---|---|
| 1 | 2 | 3 | 4 | 5 | 6 | |
| 7 | 8 | 9 | 10 | 11 | 12 | 13 |
| 14 | 15 | 16 | 17 | 18 | 19 | 20 |
| 21 | 22 | 23 | 24 | 25 | 26 | 27 |
| 28 | 29 | 30 |
…休業日(現場調査・工事は一部対応)
![]()
【受付時間】9:30 - 17:30(営業日)
![]()
【受付時間】9:30 - 17:30(営業日)
オペレーションスタッフ
エクステリアプランナー有資格者の私たちにお任せください。
ショップ責任者
神(じん)
エクステリア プランナー
有資格者61名
1/3
1/3
今週のPick Upページ
![]()
ご利用頂いたお客様の口コミ・レビューを「お客様の声」として掲載しております。
全てのご感想を掲載しておりますので、エクスショップの評判としてご参考ください。
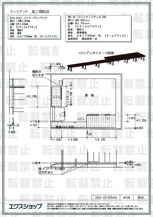
正式お見積りと一緒に提出させて頂いております「工事概略図面」もご覧頂けます。
商品や設置場所のご検討にお役立てください。
(写真No:30349031)
(ウッドデッキ)
| カラー | ナチュラルブラウン |
|---|---|
| サイズ | 間口 9,350mm 出幅 1,720mm |
| 工事方法 | 地域密着あんしん施工 |
値段が安く最初の対応が早かったためこちらに決めさせて頂きました。ただ予定よりかなり工期が延びてしまったのが残念です。施工の職人さんの体調不良とゆうことで仕方ありませんがあんなに延びるなら代わりの人がいてもいいと思いました。一か所打ち合わせがうまくいってなかったのか、隙間ができていましたがすぐに対応して直して頂きよかったです。仕上がりは大変満足しています。
マージウッドデッキとリウッドデッキ 200の2点の施工のご依頼を頂きまして、誠にありがとうございます。ウッドデッキがナチュラルで温かみのある雰囲気のお住まいにマッチし、とても素敵な仕上がりでございますね。マージウッドデッキとリウッドデッキは天然木に比べお手入れが簡単で、耐久性がございますので、永くご愛用頂けますと、幸いでございます。この度は弊社の提携施工店の担当者の体調不良で工期が延びる形となり、お客様には多大なるご迷惑をお掛けしました事、大変申し訳ございませんでした。また隙間が出来ていた事につきまして、施工方法の伝達に至らぬ点がございました事、重ねてお詫び申し上げます。今後はより確実で迅速な対応が出来ますよう、心掛けて参りますので、また機会がございましたら、是非エクスショップにご用命頂きますよう、宜しくお願い申し上げます。
当サイトは以下のセキュリティ機能や保護認定等を備えています。安心してお申し込みください
当サイトはSSL暗号化に対応しています。入力した個人情報は暗号化して送られますので、安心してご利用ください。
当社はJADMAの正会員です。同協会は法律で位置づけられた団体で、消費者の利益保護と業界の健全な発展の為に活動しています。
こちらの工事に使用しているエクステリア
![]()
リウッドデッキ S

工事費・税込
69,500円~
商品レビュー数
27件
リウッドデッキ S(旧商品200)は木粉とポリプロピレンを混合したリウッド(再生木)でできた人工木デッキです。硬度・耐水性・耐候性・防腐朽性の高さが特徴で、水濡れやシロアリ・菌類による腐食の心配がありません。目地幅は安全性と意匠性を考慮した3mm幅設定。※束石の手配は別途。
この商品の詳細へ
無料お見積り・現場調査・ご注文もこちら