各取扱メーカーの会社名、ロゴ及び商品名等は各社の商標または登録商標です。
| 日 | 月 | 火 | 水 | 木 | 金 | 土 |
|---|---|---|---|---|---|---|
| 1 | 2 | 3 | 4 | |||
| 5 | 6 | 7 | 8 | 9 | 10 | 11 |
| 12 | 13 | 14 | 15 | 16 | 17 | 18 |
| 19 | 20 | 21 | 22 | 23 | 24 | 25 |
| 26 | 27 | 28 | 29 | 30 | 31 |
| 日 | 月 | 火 | 水 | 木 | 金 | 土 |
|---|---|---|---|---|---|---|
| 1 | ||||||
| 2 | 3 | 4 | 5 | 6 | 7 | 8 |
| 9 | 10 | 11 | 12 | 13 | 14 | 15 |
| 16 | 17 | 18 | 19 | 20 | 21 | 22 |
| 23 | 24 | 25 | 26 | 27 | 28 | 29 |
| 30 |
…休業日(現場調査・工事は一部対応)
![]()
【受付時間】9:30 - 17:30(営業日)
![]()
【受付時間】9:30 - 17:30(営業日)
オペレーションスタッフ
エクステリアプランナー有資格者の私たちにお任せください。
ショップ責任者
神(じん)
エクステリア プランナー
有資格者61名
1/3
1/3
今週のPick Upページ
![]()
ご利用頂いたお客様の口コミ・レビューを「お客様の声」として掲載しております。
全てのご感想を掲載しておりますので、エクスショップの評判としてご参考ください。
正式お見積りと一緒に提出させて頂いております「工事概略図面」もご覧頂けます。
商品や設置場所のご検討にお役立てください。
(写真No:20938922)
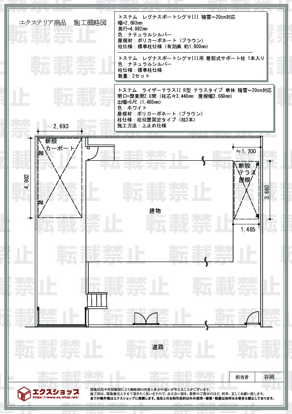
(テラス屋根、カーポート)
| カラー | ホワイト |
|---|---|
| サイズ | 屋根幅 3,660mm 出幅 1,485mm |
| 柱仕様 | 柱位置固定タイプ(柱2本) |
| 屋根材 | ポリカーボネート(ブラウン) |
| 工事方法 | 地域密着あんしん施工 |
(写真No:20938922)
(テラス屋根、カーポート)
| カラー | ナチュラルシルバー |
|---|---|
| サイズ | 幅 2,693mm 奥行 4,982mm |
| 屋根高等 | 標準柱仕様(有効高 約1,800mm) |
| 屋根材等 | ポリカーボネート(ブラウン) |
| 工事方法 | 地域密着あんしん施工 |
発注から施工まで、連絡はほとんどが電子メールでしたが、迅速かつ丁寧な対応で満足しています。施工も現場に適合し、仕上がりに満足しています。
この度はレグナスポートシグマIII並びにライザーテラスII R型の施工をご依頼頂きまして、誠に有り難うございます。弊社はネット販売ならではの低価格に加え、迅速・丁寧な対応を日々心掛けておりますので、このようなお褒めのお言葉を頂くことは一番の喜びでございます。カーポート、テラス屋根どちらもブラウンの屋根が温かみがあり、ご自宅にもとてもよくマッチしておりますね。ポリカーボネートの屋根材は紫外線をほぼ100%遮断致しますので、大変快適にご利用頂けることと存じます。お気に召して頂きましたら幸いでございます。今後もお客様の笑顔の為日々精進して参りますので、またエクステリアをご検討の際には是非エクスショップをご利用下さいますよう、宜しくお願い致します。
当サイトは以下のセキュリティ機能や保護認定等を備えています。安心してお申し込みください
当サイトは256ビットSSL暗号化に対応しています。入力した個人情報は暗号化して送られますので、安心してご利用ください。
当社はJADMAの正会員です。同協会は法律で位置づけられた団体で、消費者の利益保護と業界の健全な発展の為に活動しています。
こちらの工事に使用しているエクステリア
![]()
スピーネ R型 テラスタイプ 単体

工事費・税込
88,100円〜
商品レビュー数
332件
LIXILの新テラス屋根スピーネ。広い地域に対応ができる積雪〜20cmタイプです。緩やかなカーブでどんなご自宅にでもマッチングいたします。
この商品の詳細へ
無料お見積り・現場調査・ご注文もこちら
こちらの工事に使用しているエクステリア
![]()
フーゴ R 1台用(ラウンドスタイル)

工事費・税込
221,200円〜
商品レビュー数
54件
フーゴ R 1台用(ラウンドスタイル)はアール型の屋根デザインを特徴とする1台用カーポートです。本体のカラーはシャイングレーとその他4色の全5色仕様です。また、屋根材は全光線透過率の異なる6種類からお選びいただけます。耐風性能は基準風速Vo=36m/s、耐積雪性能は20cmまで対応しています。
この商品の詳細へ
無料お見積り・現場調査・ご注文もこちら