各取扱メーカーの会社名、ロゴ及び商品名等は各社の商標または登録商標です。
| 日 | 月 | 火 | 水 | 木 | 金 | 土 |
|---|---|---|---|---|---|---|
| 1 | 2 | 3 | 4 | 5 | 6 | |
| 7 | 8 | 9 | 10 | 11 | 12 | 13 |
| 14 | 15 | 16 | 17 | 18 | 19 | 20 |
| 21 | 22 | 23 | 24 | 25 | 26 | 27 |
| 28 | 29 | 30 | 31 |
| 日 | 月 | 火 | 水 | 木 | 金 | 土 |
|---|---|---|---|---|---|---|
| 1 | 2 | 3 | ||||
| 4 | 5 | 6 | 7 | 8 | 9 | 10 |
| 11 | 12 | 13 | 14 | 15 | 16 | 17 |
| 18 | 19 | 20 | 21 | 22 | 23 | 24 |
| 25 | 26 | 27 | 28 | 29 | 30 | 31 |
…休業日(現場調査・工事は一部対応)
![]()
【受付時間】9:30 - 17:30(営業日)
![]()
【受付時間】9:30 - 17:30(営業日)
オペレーションスタッフ
エクステリアプランナー有資格者の私たちにお任せください。
ショップ責任者
神(じん)
エクステリア プランナー
有資格者61名
1/3
1/3
今週のPick Upページ
![]()
ご利用頂いたお客様の口コミ・レビューを「お客様の声」として掲載しております。
全てのご感想を掲載しておりますので、エクスショップの評判としてご参考ください。
正式お見積りと一緒に提出させて頂いております「工事概略図面」もご覧頂けます。
商品や設置場所のご検討にお役立てください。
(写真No:28942927)
(テラス屋根、カーポート)
| カラー | クリエダーク |
|---|---|
| サイズ | 屋根幅 4,090mm 出幅 1,785mm |
| 柱仕様 | 出幅自在桁タイプ(柱2本)/ロング柱 |
| 屋根材 | ポリカーボネート (クリアブラウン) |
| 工事方法 | 地域密着あんしん施工 |
(写真No:28942927)
(テラス屋根、カーポート)
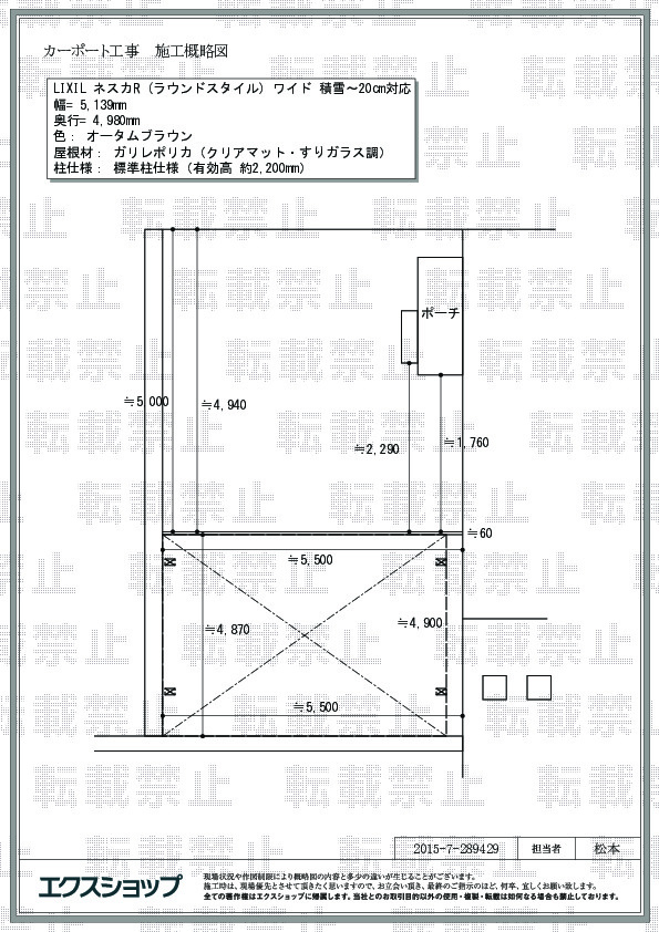
| カラー | オータムブラウン |
|---|---|
| サイズ | 幅 5,139mm 奥行 4,980mm |
| 屋根高等 | 標準柱仕様(有効高 約2,200mm) |
| 屋根材等 | ガリレポリカ(クリアマット・すりガラス調) |
| 工事方法 | 地域密着あんしん施工 |
特にありません
この度は、ネスカR およびシュエットの施工をご依頼頂きまして、誠に有り難うございます。カーポート、テラス屋根共にご自宅の外観を損なわない、素敵な仕上がりでございますね。今回の施工を機に、お客様の生活がより快適な、過ごしやすいものになりますことを、心より願っております。今後もお客様のお声を励みに、一人一人に丁寧かつ誠実な対応を心がけ、少しでも多くの皆様に満足頂けるよう、日々精進して参ります。また機会がございましたら、是非エクスショップにご用命頂きますよう宜しくお願い致します。
当サイトは以下のセキュリティ機能や保護認定等を備えています。安心してお申し込みください
当サイトは256ビットSSL暗号化に対応しています。入力した個人情報は暗号化して送られますので、安心してご利用ください。
当社はJADMAの正会員です。同協会は法律で位置づけられた団体で、消費者の利益保護と業界の健全な発展の為に活動しています。
こちらの工事に使用しているエクステリア
![]()
シュエット テラスタイプ 単体

工事費・税込
152,800円〜
商品レビュー数
63件
木目調にアレンジされているデザインテラスの「シュエット」。最大の特徴はなんといっても木目のクオリティ。「一般的なアルミ色だけでは物足りないと思っていた」「家のスタイルに合った屋根を取りつけたかった」という方に木目が美しいシュエットがおすすめです
この商品の詳細へ
無料お見積り・現場調査・ご注文もこちら
こちらの工事に使用しているエクステリア
![]()
ネスカ R 2台用(ラウンドスタイル)

工事費・税込
223,500円〜
商品レビュー数
1267件
ネスカ R 2台用(ラウンドスタイル)は大きなアール仕様の屋根が特徴的な横並び2台駐車可能のカーポートです。標準柱が2200mmとなっており大半の車種に対応可能。耐風性能は基準風速Vo=40m/s、耐積雪性能は20cm相当の耐性があります。
この商品の詳細へ
無料お見積り・現場調査・ご注文もこちら