この商品の現場調査・ご注文、概算お見積りをご希望の方
以下、ご希望の内容を選択してください。かんたんに概算のお見積りが確認できます。
シミュレーションに、個人情報の入力は一切必要ありません。
※お見積りシミュレーションの内容は概算となります。
※お見積内容は現場状況によって変動する可能性がございます。
- 商品仕様
-
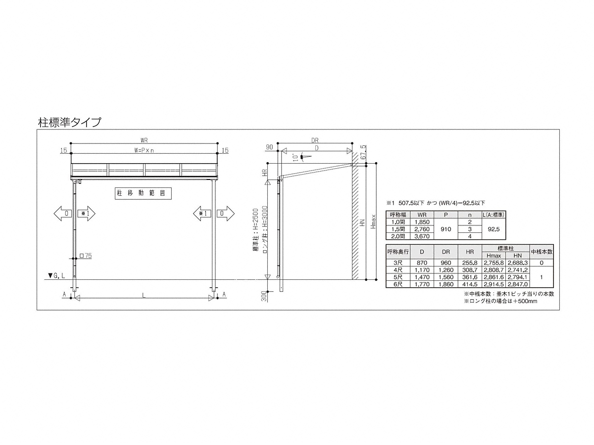
- 間口
-
- 出幅
-
- 柱タイプ
-
現在ご選択の商品構成は規格外となっております。
申し訳ありませんが、別の構成をご選択ください。
- 屋根材
-
- 商品カラー
-
- オプション商品
-
オプションをご希望の方は、「オプションを希望する」をご選択ください。
-
カラー
屋根材
-
カラー
-
- 取り付け工事
-
- 商品の取り付け工事を希望されますか?
-
「商品購入のみ」の場合、商品加工や設置・撤去作業はご依頼いただけません。
- 幅の切詰め加工
-
設置場所の間口寸法より製品の規格寸法が大きい場合や、土地の幅に合わせて製品を切詰める加工になります。
- 奥行の切詰め加工
-
設置場所の奥行寸法より製品の規格寸法が大きい場合や、土地の奥行に合わせて製品を切詰める加工になります。
- ご希望の工事サービス
解説を表示
-
「メーカー責任工事」と「地域密着あんしん工事(提携店工事)」の2つの工事体制で、お客様のニーズにお応えしています。ご希望の工事内容にあった工事サービスをお選びください。
※それぞれの施工サービスには未対応エリアがございます。ご了承ください。
- お支払い方法
-
- ご希望のお支払方法
-
YKKAP商品 ローン金利0円キャンペーン実施中!
本商品にて弊社提携リフォームローンをご利用の場合本商品にて金利0円キャンペーン適用の場合(例:回払い)
月々のお支払い 約円!
ローンシミュレーション
- ※お見積り総額が120万円、またはお支払い回数が36回を超える場合、分割金利手数料0円キャンペーンは適用対象外となります。
- ※現在の金利を元にしたシミュレーション結果ですので、目安としてご利用ください。
- ※実際のお支払金額は、シミュレーション結果と異なる場合があります。
- キャンペーン・割引サービス
-
- 適用可能なキャンペーン
解説を表示
-
ご希望のキャンペーンを1つ選択してください。
共同購入人数:
- 適用条件付きのキャンペーン
解説を表示
-
キャンペーン適用条件を満たしている場合は、ご希望を選択してください。
このお見積りシミュレーションの内容を保存できます。
お見積り結果の比較や、商品をまとめてご依頼される際は、お見積りメモに追加して下さい。
- プレシオステラスU F型 屋根タイプ 単体に関するブログ記事
-
