お客様の声(工事例)

ご利用頂いたお客様の口コミ・レビューを「お客様の声」として掲載しております。
全てのご感想を掲載しておりますので、エクスショップの評判としてご参考ください。
正式お見積りと一緒に提出させて頂いております「工事概略図面」もご覧頂けます。
商品や設置場所のご検討にお役立てください。

毎日更新 安心と信頼の工事実績
声の掲載数
177,246
商品工事数
220,287
(2025年10月03日現在)

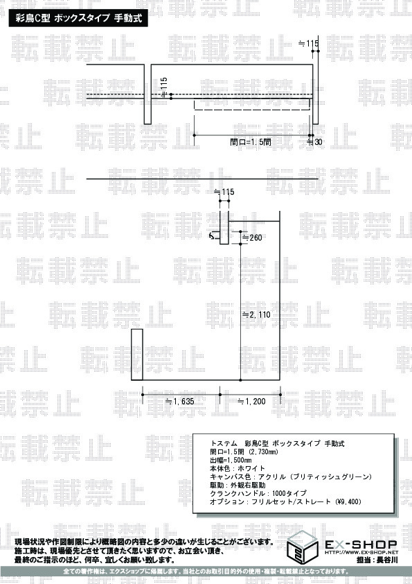
岐阜県恵那市ぎふけん えなし のLIXIL リクシル(トステム)オーニング・サンシェード・日よけ施工例(彩鳥C型 ボックスタイプ 手動式)

岐阜県恵那市のLIXIL リクシル(トステム)のオーニング・サンシェード・日よけ 彩鳥C型 ボックスタイプ 手動式 施工例

(写真No:6302667)

彩鳥C型 ボックスタイプ 手動式

カラー ホワイト
サイズ 間口 2,730mm 出幅 1,500mm
屋根材
工事方法 メーカー責任施工

お客様の感想 評価: 5つ星のうち

事務的な連絡は、ちゃんとしていると思います。ただし、支払い後に新たな、見積もりをお願いしてますが、返事がありません。なお、別荘に行った際に撮って携帯メールで別途送ります。

エクスショップ担当者より

この度はエクスショップをご利用頂き、またお忙しい中アンケートにご協力頂き誠に有難うございました。ウッド調の素敵なテラスにオーニングがマッチしており、とても素敵なお仕上がりになりましたこと大変嬉しく存じます。オーニングの他にもお客様のお住まいの印象を変える素敵なエクステリア商品が弊社にはございますので、また機会がございましたら是非弊社HPをご覧くださいませ。そして、なにか気になることがございましたらお気軽にエクスショップまでご連絡下さいませ。今後ともエクスショップを宜しくお願いいたします。

この工事例についてのお問い合わせ

下のフォームの全項目にご入力の上、確認画面へ進んでください。
(※お客様にご入力いただいた情報は、セコムSSLにて暗号化され、安全に送信されます。)

お名前
(ふりがな)
せい めい
ご住所 都道府県:
メールアドレス

メールアドレスを持っていない(info@ex-shop.netが自動入力されます)

お電話番号
お問い合わせ内容

上の「お問い合わせフォーム」に必要事項を全て入力されましたら、
次の入力内容の確認ページへと進んでください。

確認画面へ進む

第三者への転売等を目的とする建設関連業者様からの施工のご依頼は、申し訳ありませんがお断りしております(※商品のみのご購入には対応しております)。

こちらの工事に使用しているエクステリア

LIXIL(トステム)

彩風 あやかぜ C型 手動式

  • 50%OFF
  • さらに特別値引

工事費・税込

187,200円〜

総合平均評価(星5つ評価)

4.58

商品レビュー数

134

キャンパスの傾斜角度を20度以上にすることにより、雨天でも雨よけとして利用できます。彩鳥 の後継商品となります。

この商品のレビュー

エクスショップが選ばれる7つの理由

高価な買い物だから、工事が必要な商品だから、ネットを介した購入だから、工事実績豊富で価格面も安心!のエクスショップが選ばれています。

25年連続NO.1エクステリアネット販売実績2000〜2024

  • 極限価格 割引率最大69%+α OFF!!
  • 現場調査&お見積り工事開始まですべて無料! 仕様変更による再見積りももちろん無料!
  • 全国対応 地域密着 1,613店 お近くの当社提携施工店が工事対応します!
  • メーカー取り扱い商品点数 豊富な10,000商品
  • 掲載中の施工実績&お客様の声 170,000件の実績!!
  • 商品&施工、安心のダブル保証! 商品2年施工10年
  • お客様情報をあらゆる面から守ります 安心セキュリティ

ページトップへ