各取扱メーカーの会社名、ロゴ及び商品名等は各社の商標または登録商標です。
| 日 | 月 | 火 | 水 | 木 | 金 | 土 |
|---|---|---|---|---|---|---|
| 1 | ||||||
| 2 | 3 | 4 | 5 | 6 | 7 | 8 |
| 9 | 10 | 11 | 12 | 13 | 14 | 15 |
| 16 | 17 | 18 | 19 | 20 | 21 | 22 |
| 23 | 24 | 25 | 26 | 27 | 28 | 29 |
| 30 |
| 日 | 月 | 火 | 水 | 木 | 金 | 土 |
|---|---|---|---|---|---|---|
| 1 | 2 | 3 | 4 | 5 | 6 | |
| 7 | 8 | 9 | 10 | 11 | 12 | 13 |
| 14 | 15 | 16 | 17 | 18 | 19 | 20 |
| 21 | 22 | 23 | 24 | 25 | 26 | 27 |
| 28 | 29 | 30 | 31 |
…休業日(現場調査・工事は一部対応)
![]()
【受付時間】9:30 - 17:30(営業日)
![]()
【受付時間】9:30 - 17:30(営業日)
オペレーションスタッフ
エクステリアプランナー有資格者の私たちにお任せください。
ショップ責任者
神(じん)
エクステリア プランナー
有資格者61名
1/3
1/3
今週のPick Upページ
![]()
ご利用頂いたお客様の口コミ・レビューを「お客様の声」として掲載しております。
全てのご感想を掲載しておりますので、エクスショップの評判としてご参考ください。
正式お見積りと一緒に提出させて頂いております「工事概略図面」もご覧頂けます。
商品や設置場所のご検討にお役立てください。
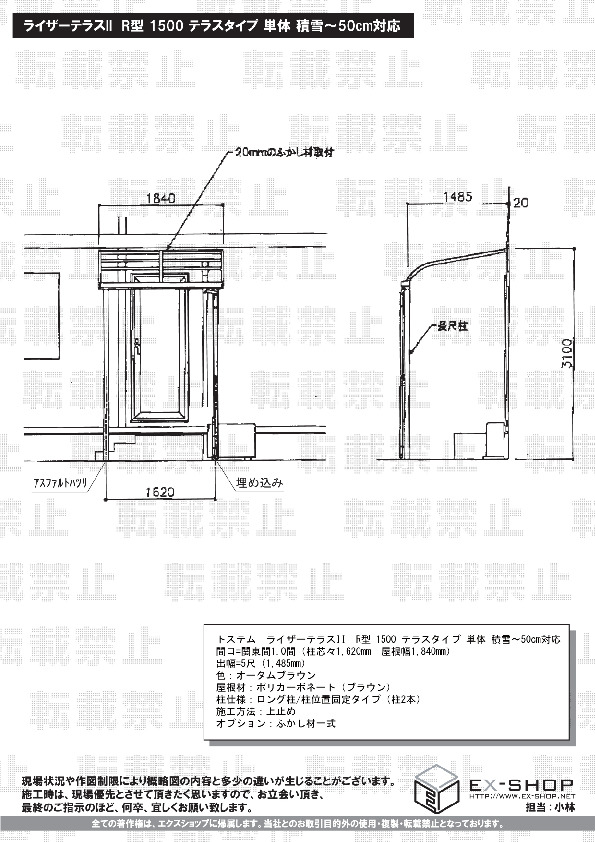
(写真No:7105371)
(テラス屋根)
| カラー | オータムブラウン |
|---|---|
| サイズ | 屋根幅 1,840mm 出幅 1,485mm |
| 柱仕様 | ロング柱/柱位置固定タイプ(柱2本) |
| 屋根材 | ポリカーボネート(ブラウン) |
| 工事方法 | メーカー責任施工 |
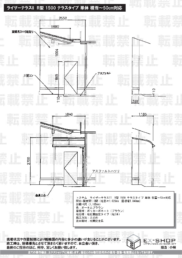
(写真No:7105371)
(テラス屋根)
| カラー | オータムブラウン |
|---|---|
| サイズ | 屋根幅 1,840mm 出幅 1,185mm |
| 柱仕様 | 柱位置固定タイプ(柱2本) |
| 屋根材 | ポリカーボネート(ブラウン) |
| 工事方法 | メーカー責任施工 |
メールや電話での丁寧なご連絡を頂き安心してお任せすることができました。
インターネットでのお買い物は顔の見えないお取引となりますので、お客様がご不安に思われることのないよう、お電話とメールにて、随時ご連絡を差し上げております。この様なお言葉を頂き、大変光栄に存じます。積雪50pまで対応致しますライザーテラスII R型の施工を、二か所にご依頼頂きまして、誠に有難うございます。ご自宅の雰囲気を損なわない、美しい納まり具合に、スタッフ一同安堵致しました。これからも、お客様のご期待を裏切らないよう精進して参りますので、また機会がございましたら、ぜひエクスショップをご利用頂けますよう、宜しくお願い致します。
当サイトは以下のセキュリティ機能や保護認定等を備えています。安心してお申し込みください
当サイトは256ビットSSL暗号化に対応しています。入力した個人情報は暗号化して送られますので、安心してご利用ください。
当社はJADMAの正会員です。同協会は法律で位置づけられた団体で、消費者の利益保護と業界の健全な発展の為に活動しています。
こちらの工事に使用しているエクステリア
![]()
スピーネ R型 テラスタイプ 単体

工事費・税込
88,100円〜
商品レビュー数
333件
LIXILの新テラス屋根スピーネ。広い地域に対応ができる積雪〜20cmタイプです。緩やかなカーブでどんなご自宅にでもマッチングいたします。
この商品の詳細へ
無料お見積り・現場調査・ご注文もこちら