各取扱メーカーの会社名、ロゴ及び商品名等は各社の商標または登録商標です。
| 日 | 月 | 火 | 水 | 木 | 金 | 土 |
|---|---|---|---|---|---|---|
| 1 | 2 | 3 | 4 | 5 | 6 | |
| 7 | 8 | 9 | 10 | 11 | 12 | 13 |
| 14 | 15 | 16 | 17 | 18 | 19 | 20 |
| 21 | 22 | 23 | 24 | 25 | 26 | 27 |
| 28 | 29 | 30 | 31 |
| 日 | 月 | 火 | 水 | 木 | 金 | 土 |
|---|---|---|---|---|---|---|
| 1 | 2 | 3 | ||||
| 4 | 5 | 6 | 7 | 8 | 9 | 10 |
| 11 | 12 | 13 | 14 | 15 | 16 | 17 |
| 18 | 19 | 20 | 21 | 22 | 23 | 24 |
| 25 | 26 | 27 | 28 | 29 | 30 | 31 |
…休業日(現場調査・工事は一部対応)
![]()
【受付時間】9:30 - 17:30(営業日)
![]()
【受付時間】9:30 - 17:30(営業日)
オペレーションスタッフ
エクステリアプランナー有資格者の私たちにお任せください。
ショップ責任者
神(じん)
エクステリア プランナー
有資格者61名
1/3
1/3
今週のPick Upページ
![]()
ご利用頂いたお客様の口コミ・レビューを「お客様の声」として掲載しております。
全てのご感想を掲載しておりますので、エクスショップの評判としてご参考ください。
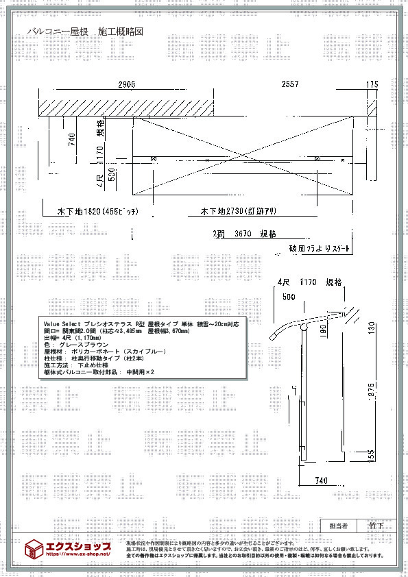
正式お見積りと一緒に提出させて頂いております「工事概略図面」もご覧頂けます。
商品や設置場所のご検討にお役立てください。
(写真No:20054721)
(バルコニー・ベランダ屋根)
| カラー | グレースブラウン |
|---|---|
| サイズ | 屋根幅 3,670mm 出幅 1,170mm |
| 柱仕様 | 柱奥行移動タイプ(柱2本) |
| 屋根材 | ポリカーボネート(スカイブルー) |
| 工事方法 | メーカー責任施工 |
現地確認から見積もり、施工まで、説明が丁寧で分かりやすかったです。施工内容も満足です。次はカーポートを検討しているので、施工する際はまたお願いしたいです。
現場調査にお伺いしてから、バルコニー屋根の施工が完了するまで、全てにおいてお客様にご満足頂けましたこと、大変嬉しく存じます。緩やかにカーブしたプレシオステラス R型の屋根が、雨風の吹き込みを軽減し、お洗濯物も安心して干して頂けますね。カーポートも様々なフォルム・サイズを取り揃えておりますので、きっとお気に入りの一点が見つかるものと存じます。またのご利用を、心よりお待ち申し上げております。
当サイトは以下のセキュリティ機能や保護認定等を備えています。安心してお申し込みください
当サイトは256ビットSSL暗号化に対応しています。入力した個人情報は暗号化して送られますので、安心してご利用ください。
当社はJADMAの正会員です。同協会は法律で位置づけられた団体で、消費者の利益保護と業界の健全な発展の為に活動しています。
こちらの工事に使用しているエクステリア
![]()
プレシオステラスU R型 屋根タイプ 単体

工事費・税込
68,400円〜
商品レビュー数
188件
プレシオステラスU R型 屋根タイプ 単体はエクスショップオリジナルブランドのアール屋根タイプのバルコニー屋根です。間口3サイズ・出幅5サイズからの選択ができます。屋根は曲線型のアール仕様で、3色からお選びいただけます。
この商品の詳細へ
無料お見積り・現場調査・ご注文もこちら