各取扱メーカーの会社名、ロゴ及び商品名等は各社の商標または登録商標です。
| 日 | 月 | 火 | 水 | 木 | 金 | 土 |
|---|---|---|---|---|---|---|
| 1 | ||||||
| 2 | 3 | 4 | 5 | 6 | 7 | 8 |
| 9 | 10 | 11 | 12 | 13 | 14 | 15 |
| 16 | 17 | 18 | 19 | 20 | 21 | 22 |
| 23 | 24 | 25 | 26 | 27 | 28 | 29 |
| 30 |
| 日 | 月 | 火 | 水 | 木 | 金 | 土 |
|---|---|---|---|---|---|---|
| 1 | 2 | 3 | 4 | 5 | 6 | |
| 7 | 8 | 9 | 10 | 11 | 12 | 13 |
| 14 | 15 | 16 | 17 | 18 | 19 | 20 |
| 21 | 22 | 23 | 24 | 25 | 26 | 27 |
| 28 | 29 | 30 | 31 |
…休業日(現場調査・工事は一部対応)
![]()
【受付時間】9:30 - 17:30(営業日)
![]()
【受付時間】9:30 - 17:30(営業日)
オペレーションスタッフ
エクステリアプランナー有資格者の私たちにお任せください。
ショップ責任者
神(じん)
エクステリア プランナー
有資格者61名
1/3
1/3
今週のPick Upページ
![]()
ご利用頂いたお客様の口コミ・レビューを「お客様の声」として掲載しております。
全てのご感想を掲載しておりますので、エクスショップの評判としてご参考ください。
正式お見積りと一緒に提出させて頂いております「工事概略図面」もご覧頂けます。
商品や設置場所のご検討にお役立てください。
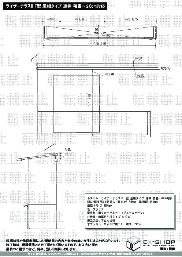
(写真No:16448614)
(バルコニー・ベランダ屋根)
| カラー | ブラック |
|---|---|
| サイズ | 屋根幅 5,480mm 出幅 1,185mm |
| 柱仕様 | 出幅自在桁タイプ(柱3本) |
| 屋根材 | ポリカーボネート(ブルースモーク) |
| 工事方法 | メーカー責任施工 |
バルコニー屋根を施工してもらいました。現場調査して図面にしてくれて分かりやすく分からない所は、電話にて対応してもらい、現場調書と不一致な個所は、再調査もして頂いたので、問題は無いと思い、施工日には妻に立ち会ってもらいました。施工後に見てあれ!雨樋がベランダに垂れ流しではないですか。他所に施工してもらったバルコニー屋根の雨樋は、屋根の雨樋につないでいるので、雨樋につないでくれるものとばっかり思っていたので残念でした。細かな所の話をしてもらわなかったのが残念です。その点以外は特に問題は無いと思います。
この度はライザーテラスII F型の施工をご依頼頂きまして、誠に有り難うございます。弊社を信頼してご依頼頂きましたのに、100%ご満足頂くことが出来ず、誠に申し訳なく存じております。今後は、細かな内容も含めた十分なご説明に努め、施工内容に行き違いがございませぬよう、提携施工店とも連絡を密にとって参りたいと存じます。ご迷惑をお掛け致しましたこと、心よりお詫び申し上げます。
当サイトは以下のセキュリティ機能や保護認定等を備えています。安心してお申し込みください
当サイトは256ビットSSL暗号化に対応しています。入力した個人情報は暗号化して送られますので、安心してご利用ください。
当社はJADMAの正会員です。同協会は法律で位置づけられた団体で、消費者の利益保護と業界の健全な発展の為に活動しています。
こちらの工事に使用しているエクステリア
![]()
スピーネ F型 屋根タイプ 連棟

工事費・税込
177,900円〜
商品レビュー数
65件
LIXILの新テラス屋根スピーネ。緩やかなカーブでどんなご自宅にでもマッチング。広い地域に対応ができる積雪〜20cmタイプです。
この商品の詳細へ
無料お見積り・現場調査・ご注文もこちら