各取扱メーカーの会社名、ロゴ及び商品名等は各社の商標または登録商標です。
| 日 | 月 | 火 | 水 | 木 | 金 | 土 |
|---|---|---|---|---|---|---|
| 1 | 2 | 3 | 4 | |||
| 5 | 6 | 7 | 8 | 9 | 10 | 11 |
| 12 | 13 | 14 | 15 | 16 | 17 | 18 |
| 19 | 20 | 21 | 22 | 23 | 24 | 25 |
| 26 | 27 | 28 | 29 | 30 | 31 |
| 日 | 月 | 火 | 水 | 木 | 金 | 土 |
|---|---|---|---|---|---|---|
| 1 | ||||||
| 2 | 3 | 4 | 5 | 6 | 7 | 8 |
| 9 | 10 | 11 | 12 | 13 | 14 | 15 |
| 16 | 17 | 18 | 19 | 20 | 21 | 22 |
| 23 | 24 | 25 | 26 | 27 | 28 | 29 |
| 30 |
…休業日(現場調査・工事は一部対応)
![]()
【受付時間】9:30 - 17:30(営業日)
![]()
【受付時間】9:30 - 17:30(営業日)
オペレーションスタッフ
エクステリアプランナー有資格者の私たちにお任せください。
ショップ責任者
神(じん)
エクステリア プランナー
有資格者61名
1/3
1/3
今週のPick Upページ
![]()
ご利用頂いたお客様の口コミ・レビューを「お客様の声」として掲載しております。
全てのご感想を掲載しておりますので、エクスショップの評判としてご参考ください。
正式お見積りと一緒に提出させて頂いております「工事概略図面」もご覧頂けます。
商品や設置場所のご検討にお役立てください。
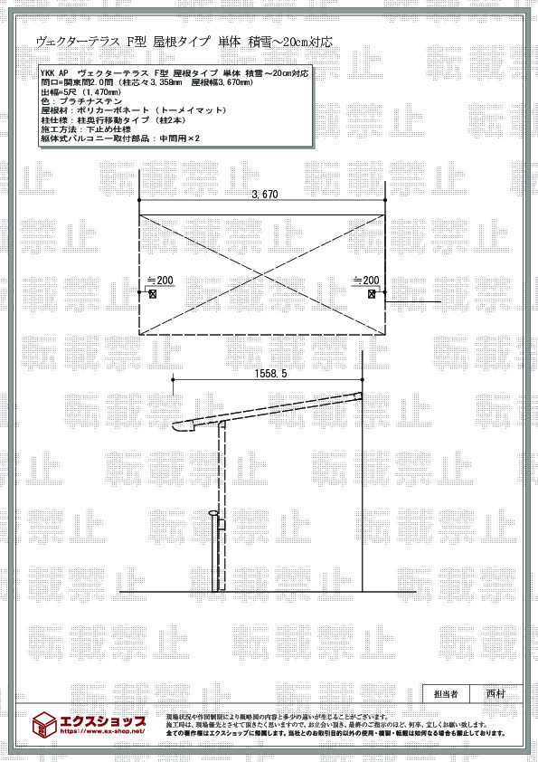
(写真No:18130318)
(バルコニー・ベランダ屋根)
| カラー | プラチナステン |
|---|---|
| サイズ | 屋根幅 3,670mm 出幅 1,470mm |
| 柱仕様 | 柱奥行移動タイプ(柱2本) |
| 屋根材 | ポリカーボネート(トーメイマット) |
| 工事方法 | 地域密着あんしん施工 |
テラスに屋根がないため雨が降るたびに洗濯物が気になっていました。また紫外線防止策に大変でした。今回それらが解消されストレスがなくなり本当に良かったです。洗濯物干しが楽しいです。
大変嬉しいお喜びのお言葉をお寄せ頂きまして、誠に有り難うございます。強い紫外線はカットしますが、光を通すポリカーボネート(トーメイマット)は、お客様のご要望にぴったりの屋根材でございますね。ヴェクターテラス F型のストレートなラインがお住まいにマッチして、違和感のないお仕上がりでございますね。今後も変わらず、お客様のご満足の為に精進して参りたいと存じますので、また何かございましたら、お気軽にエクスショップまでご連絡くださいますよう宜しくお願い致します。
当サイトは以下のセキュリティ機能や保護認定等を備えています。安心してお申し込みください
当サイトは256ビットSSL暗号化に対応しています。入力した個人情報は暗号化して送られますので、安心してご利用ください。
当社はJADMAの正会員です。同協会は法律で位置づけられた団体で、消費者の利益保護と業界の健全な発展の為に活動しています。
こちらの工事に使用しているエクステリア
![]()
ソラリア F型 屋根タイプ 単体

工事費・税込
75,600円〜
商品レビュー数
619件
快適な空間を生み出してくれるソラリアシリーズのバルコニー屋根です。豊富なサイズ展開でお住まいにぴったりとフィットしてくれます。洗濯物干し場の屋根として大活躍してくれますので、急な雨でも安心です。
この商品の詳細へ
無料お見積り・現場調査・ご注文もこちら