各取扱メーカーの会社名、ロゴ及び商品名等は各社の商標または登録商標です。
| 日 | 月 | 火 | 水 | 木 | 金 | 土 | 
|---|---|---|---|---|---|---|
| 1 | 2 | 3 | 4 | |||
| 5 | 6 | 7 | 8 | 9 | 10 | 11 | 
| 12 | 13 | 14 | 15 | 16 | 17 | 18 | 
| 19 | 20 | 21 | 22 | 23 | 24 | 25 | 
| 26 | 27 | 28 | 29 | 30 | 31 | 
| 日 | 月 | 火 | 水 | 木 | 金 | 土 | 
|---|---|---|---|---|---|---|
| 1 | ||||||
| 2 | 3 | 4 | 5 | 6 | 7 | 8 | 
| 9 | 10 | 11 | 12 | 13 | 14 | 15 | 
| 16 | 17 | 18 | 19 | 20 | 21 | 22 | 
| 23 | 24 | 25 | 26 | 27 | 28 | 29 | 
| 30 | 
 …休業日(現場調査・工事は一部対応)
…休業日(現場調査・工事は一部対応)

【受付時間】9:30 - 17:30(営業日)

【受付時間】9:30 - 17:30(営業日)
オペレーションスタッフ
エクステリアプランナー有資格者の私たちにお任せください。
ショップ責任者
神(じん)
エクステリア プランナー
有資格者61名
1/3
1/3
今週のPick Upページ

ご利用頂いたお客様の口コミ・レビューを「お客様の声」として掲載しております。
全てのご感想を掲載しておりますので、エクスショップの評判としてご参考ください。
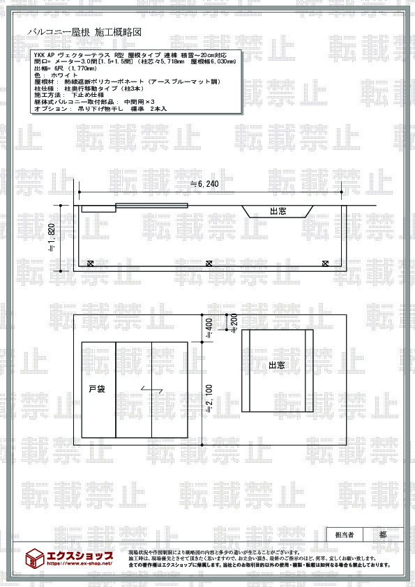
正式お見積りと一緒に提出させて頂いております「工事概略図面」もご覧頂けます。
商品や設置場所のご検討にお役立てください。

                       
                
(写真No:18222018)
 (バルコニー・ベランダ屋根)
(バルコニー・ベランダ屋根)
| カラー | ホワイト | 
|---|---|
| サイズ | 屋根幅 6,030mm 出幅 1,770mm | 
| 柱仕様 | 柱奥行移動タイプ(柱3本) | 
| 屋根材 | 熱線遮断ポリカーボネート(アースブルーマット調) | 
| 工事方法 | メーカー責任施工 | 
満足したものが出来ました。
この度は、ヴェクターテラス R型 屋根タイプの施工をご依頼頂きまして、誠に有り難うございます。カーブした屋根が、雨風の吹き込みを軽減し、強い紫外線もしっかりとカット致しますね。お気に召して頂き、スタッフ一同大変嬉しく存じます。これからも、お客様の笑顔の為に、日々努力して参りたいと存じますので、また、機会がございましたら、是非エクスショップをご利用頂けますよう、宜しくお願い致します。
当サイトは以下のセキュリティ機能や保護認定等を備えています。安心してお申し込みください
当サイトは256ビットSSL暗号化に対応しています。入力した個人情報は暗号化して送られますので、安心してご利用ください。
当社はJADMAの正会員です。同協会は法律で位置づけられた団体で、消費者の利益保護と業界の健全な発展の為に活動しています。
こちらの工事に使用しているエクステリア

ソラリア R型 屋根タイプ 単体

工事費・税込
82,100円〜
商品レビュー数
570件
雨や風の吹込みを軽減してくれるバルコニー屋根のR屋根型。カーブのかかった屋根によって雨や風が吹き込みにくくなっています。シンプルながらも優しい印象を持つバルコニー屋根で快適な空間を生みだします。
この商品の詳細へ
無料お見積り・現場調査・ご注文もこちら