各取扱メーカーの会社名、ロゴ及び商品名等は各社の商標または登録商標です。
| 日 | 月 | 火 | 水 | 木 | 金 | 土 |
|---|---|---|---|---|---|---|
| 1 | 2 | |||||
| 3 | 4 | 5 | 6 | 7 | 8 | 9 |
| 10 | 11 | 12 | 13 | 14 | 15 | 16 |
| 17 | 18 | 19 | 20 | 21 | 22 | 23 |
| 24 | 25 | 26 | 27 | 28 | 29 | 30 |
| 31 |
| 日 | 月 | 火 | 水 | 木 | 金 | 土 |
|---|---|---|---|---|---|---|
| 1 | 2 | 3 | 4 | 5 | 6 | |
| 7 | 8 | 9 | 10 | 11 | 12 | 13 |
| 14 | 15 | 16 | 17 | 18 | 19 | 20 |
| 21 | 22 | 23 | 24 | 25 | 26 | 27 |
| 28 | 29 | 30 |
…休業日(現場調査・工事は一部対応)
![]()
【受付時間】9:30 - 17:30(営業日)
![]()
【受付時間】9:30 - 17:30(営業日)
オペレーションスタッフ
エクステリアプランナー有資格者の私たちにお任せください。
ショップ責任者
神(じん)
エクステリア プランナー
有資格者61名
1/3
1/3
今週のPick Upページ
![]()
ご利用頂いたお客様の口コミ・レビューを「お客様の声」として掲載しております。
全てのご感想を掲載しておりますので、エクスショップの評判としてご参考ください。
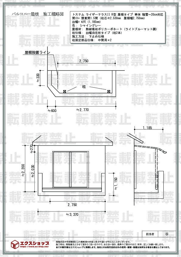
正式お見積りと一緒に提出させて頂いております「工事概略図面」もご覧頂けます。
商品や設置場所のご検討にお役立てください。
(写真No:18794919)
(バルコニー・ベランダ屋根)
| カラー | シャイングレー |
|---|---|
| サイズ | 屋根幅 2,750mm 出幅 1,185mm |
| 柱仕様 | 出幅自在桁タイプ(柱2本) |
| 屋根材 | 熱線吸収ポリカーボネート(ライトブルーマット調) |
| 工事方法 | 地域密着あんしん施工 |
思ったより大きかったので工事の途中で不安になりましたが、施工の方がお隣さんとの境界線を確認して作業していただけました。部屋が汚れないよう材料置き場にじゅうたんをひくなど配慮がよかった。
スタイリッシュなご自宅の雰囲気を損なうことなく、ライザーテラスII R型 屋根タイプを施工することが出来ましたこと、スタッフ一同大変嬉しく存じます。R型の屋根がバルコニーをしっかりと覆い、突然の雨にも安心でございますね。担当致しました施工士もご期待にお応えすることが出来、大変喜んでおります。今後もより良いシステムを構築しお客様にお喜び頂けるよう努めて参りますので、また機会がございましたら是非、弊社をご用命頂きますよう、宜しくお願い致します。
当サイトは以下のセキュリティ機能や保護認定等を備えています。安心してお申し込みください
当サイトはSSL暗号化に対応しています。入力した個人情報は暗号化して送られますので、安心してご利用ください。
当社はJADMAの正会員です。同協会は法律で位置づけられた団体で、消費者の利益保護と業界の健全な発展の為に活動しています。
こちらの工事に使用しているエクステリア
![]()
スピーネ R型 屋根タイプ 単体

工事費・税込
95,300円~
商品レビュー数
427件
LIXILの新テラス屋根スピーネ。広い地域に対応ができる積雪~20cmタイプです。雨や雪の入り込みを防ぎ、さらに視線も遮る目隠しスクリーンも取り付けられるテラスです。
この商品の詳細へ
無料お見積り・現場調査・ご注文もこちら