各取扱メーカーの会社名、ロゴ及び商品名等は各社の商標または登録商標です。
| 日 | 月 | 火 | 水 | 木 | 金 | 土 |
|---|---|---|---|---|---|---|
| 1 | 2 | 3 | 4 | 5 | 6 | |
| 7 | 8 | 9 | 10 | 11 | 12 | 13 |
| 14 | 15 | 16 | 17 | 18 | 19 | 20 |
| 21 | 22 | 23 | 24 | 25 | 26 | 27 |
| 28 | 29 | 30 | 31 |
| 日 | 月 | 火 | 水 | 木 | 金 | 土 |
|---|---|---|---|---|---|---|
| 1 | 2 | 3 | ||||
| 4 | 5 | 6 | 7 | 8 | 9 | 10 |
| 11 | 12 | 13 | 14 | 15 | 16 | 17 |
| 18 | 19 | 20 | 21 | 22 | 23 | 24 |
| 25 | 26 | 27 | 28 | 29 | 30 | 31 |
…休業日(現場調査・工事は一部対応)
![]()
【受付時間】9:30 - 17:30(営業日)
![]()
【受付時間】9:30 - 17:30(営業日)
オペレーションスタッフ
エクステリアプランナー有資格者の私たちにお任せください。
ショップ責任者
神(じん)
エクステリア プランナー
有資格者61名
1/3
1/3
今週のPick Upページ
![]()
ご利用頂いたお客様の口コミ・レビューを「お客様の声」として掲載しております。
全てのご感想を掲載しておりますので、エクスショップの評判としてご参考ください。
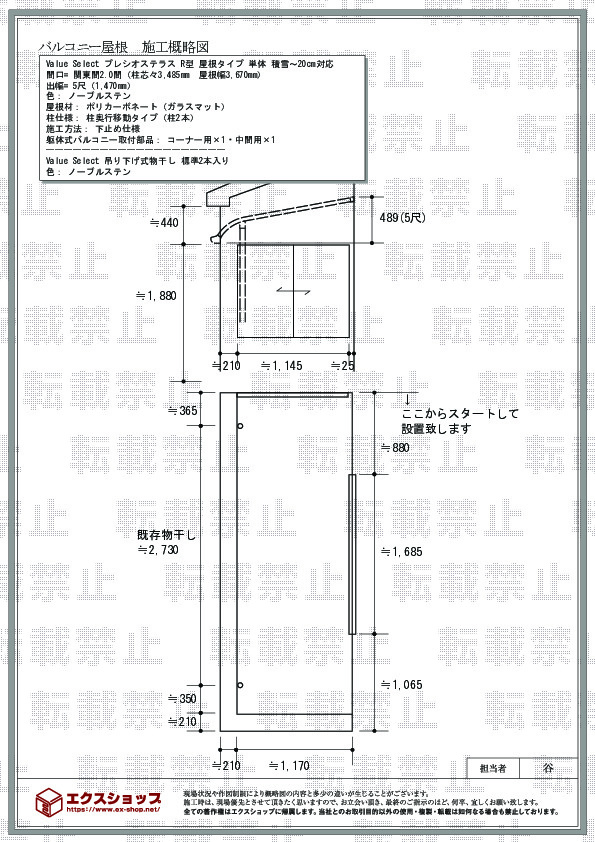
正式お見積りと一緒に提出させて頂いております「工事概略図面」もご覧頂けます。
商品や設置場所のご検討にお役立てください。
(写真No:21369223)
(バルコニー・ベランダ屋根)
| カラー | ノーブルステン |
|---|---|
| サイズ | 屋根幅 3,670mm 出幅 1,470mm |
| 柱仕様 | 柱奥行移動タイプ(柱2本) |
| 屋根材 | ポリカーボネート(ガラスマット) |
| 工事方法 | 地域密着あんしん施工 |
ネット販売で不安もありましたが、現地調査、見積り、日程調整などメールや電話で対応も毎回迅速でした。当日はオプションの取り付け位置など細かく確認して頂き、丁寧な作業だったと感じました。
プレシオステラス R型の施工をご依頼頂きまして、誠に有り難うございます。商品の価格だけではなく、施工までの弊社スタッフの対応や、提携施工店の施工内容にもご満足のお言葉を頂き、誠に光栄に存じます。アール型にカーブしたポリカーボネート(ガラスマット)の屋根が、雨の吹込みや紫外線の差し込みを防ぎ、お天気に左右されることなく快適にお過ごし頂けるものと存じます。今後また機会がございましたら、是非エクスショップにご用命ください。またのご利用を、心よりお待ち致しております。
当サイトは以下のセキュリティ機能や保護認定等を備えています。安心してお申し込みください
当サイトは256ビットSSL暗号化に対応しています。入力した個人情報は暗号化して送られますので、安心してご利用ください。
当社はJADMAの正会員です。同協会は法律で位置づけられた団体で、消費者の利益保護と業界の健全な発展の為に活動しています。
こちらの工事に使用しているエクステリア
![]()
ソラリア R型 屋根タイプ 単体

工事費・税込
82,100円〜
商品レビュー数
570件
雨や風の吹込みを軽減してくれるバルコニー屋根のR屋根型。カーブのかかった屋根によって雨や風が吹き込みにくくなっています。シンプルながらも優しい印象を持つバルコニー屋根で快適な空間を生みだします。
この商品の詳細へ
無料お見積り・現場調査・ご注文もこちら