各取扱メーカーの会社名、ロゴ及び商品名等は各社の商標または登録商標です。
| 日 | 月 | 火 | 水 | 木 | 金 | 土 |
|---|---|---|---|---|---|---|
| 1 | 2 | 3 | 4 | 5 | 6 | |
| 7 | 8 | 9 | 10 | 11 | 12 | 13 |
| 14 | 15 | 16 | 17 | 18 | 19 | 20 |
| 21 | 22 | 23 | 24 | 25 | 26 | 27 |
| 28 | 29 | 30 | 31 |
| 日 | 月 | 火 | 水 | 木 | 金 | 土 |
|---|---|---|---|---|---|---|
| 1 | 2 | 3 | ||||
| 4 | 5 | 6 | 7 | 8 | 9 | 10 |
| 11 | 12 | 13 | 14 | 15 | 16 | 17 |
| 18 | 19 | 20 | 21 | 22 | 23 | 24 |
| 25 | 26 | 27 | 28 | 29 | 30 | 31 |
…休業日(現場調査・工事は一部対応)
![]()
【受付時間】9:30 - 17:30(営業日)
![]()
【受付時間】9:30 - 17:30(営業日)
オペレーションスタッフ
エクステリアプランナー有資格者の私たちにお任せください。
ショップ責任者
神(じん)
エクステリア プランナー
有資格者61名
1/3
1/3
今週のPick Upページ
![]()
ご利用頂いたお客様の口コミ・レビューを「お客様の声」として掲載しております。
全てのご感想を掲載しておりますので、エクスショップの評判としてご参考ください。
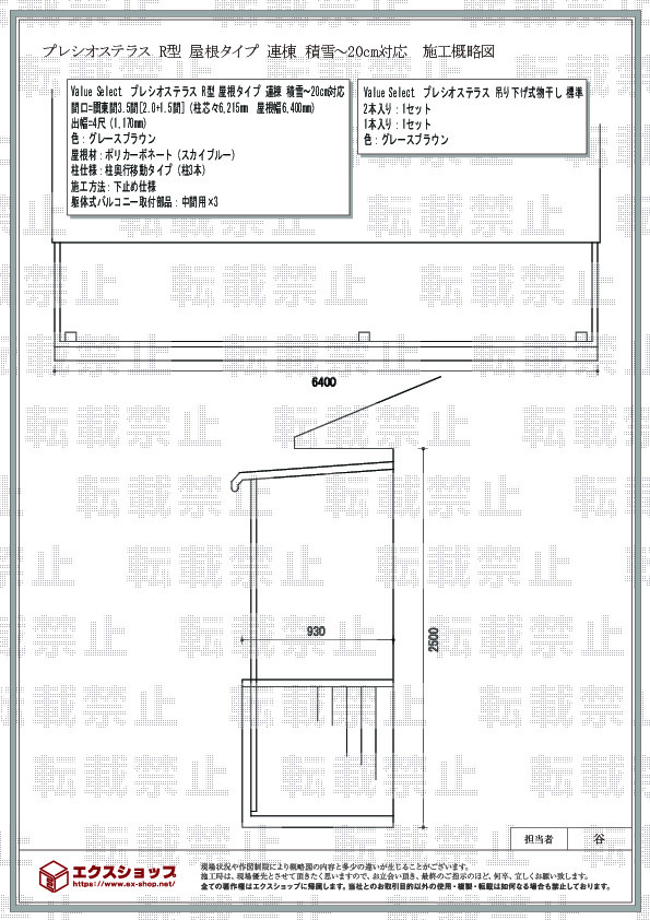
正式お見積りと一緒に提出させて頂いております「工事概略図面」もご覧頂けます。
商品や設置場所のご検討にお役立てください。
(写真No:22338924)
(バルコニー・ベランダ屋根)
| カラー | グレースブラウン |
|---|---|
| サイズ | 屋根幅 6,400mm 出幅 1,170mm |
| 柱仕様 | 柱奥行移動タイプ(柱3本) |
| 屋根材 | ポリカーボネート(スカイブルー) |
| 工事方法 | 地域密着あんしん施工 |
施工中雨が降ってきたが、一生懸命やっていただき、1日で作業を終わらせてくれた。ありがとう。
この度は、プレシオステラス R型の施工ご依頼を頂き誠に有り難うございます。施工士の協力の元、お客様にご満足頂けるお仕上がりとなりましたこと、私どもも大変嬉しく存じます。広々としたバルコニーをしっかりと覆う様に取付られ、雨の吹き込みも軽減され、快適にご利用頂けますね。落ち着いた色味はご自宅の外観ともマッチしており、とても素敵でございます。今後も、お客様にご満足頂ける様、日々精進して参りますので、又機会がございましたら是非エクスショップをご利用下さいますよう、宜しくお願い致します。
当サイトは以下のセキュリティ機能や保護認定等を備えています。安心してお申し込みください
当サイトは256ビットSSL暗号化に対応しています。入力した個人情報は暗号化して送られますので、安心してご利用ください。
当社はJADMAの正会員です。同協会は法律で位置づけられた団体で、消費者の利益保護と業界の健全な発展の為に活動しています。
こちらの工事に使用しているエクステリア
![]()
プレシオステラスU R型 屋根タイプ 単体

工事費・税込
68,400円〜
商品レビュー数
188件
プレシオステラスU R型 屋根タイプ 単体はエクスショップオリジナルブランドのアール屋根タイプのバルコニー屋根です。間口3サイズ・出幅5サイズからの選択ができます。屋根は曲線型のアール仕様で、3色からお選びいただけます。
この商品の詳細へ
無料お見積り・現場調査・ご注文もこちら