各取扱メーカーの会社名、ロゴ及び商品名等は各社の商標または登録商標です。
| 日 | 月 | 火 | 水 | 木 | 金 | 土 |
|---|---|---|---|---|---|---|
| 1 | 2 | |||||
| 3 | 4 | 5 | 6 | 7 | 8 | 9 |
| 10 | 11 | 12 | 13 | 14 | 15 | 16 |
| 17 | 18 | 19 | 20 | 21 | 22 | 23 |
| 24 | 25 | 26 | 27 | 28 | 29 | 30 |
| 31 |
| 日 | 月 | 火 | 水 | 木 | 金 | 土 |
|---|---|---|---|---|---|---|
| 1 | 2 | 3 | 4 | 5 | 6 | |
| 7 | 8 | 9 | 10 | 11 | 12 | 13 |
| 14 | 15 | 16 | 17 | 18 | 19 | 20 |
| 21 | 22 | 23 | 24 | 25 | 26 | 27 |
| 28 | 29 | 30 |
…休業日(現場調査・工事は一部対応)
![]()
【受付時間】9:30 - 17:30(営業日)
![]()
【受付時間】9:30 - 17:30(営業日)
オペレーションスタッフ
エクステリアプランナー有資格者の私たちにお任せください。
ショップ責任者
神(じん)
エクステリア プランナー
有資格者61名
1/3
1/3
今週のPick Upページ
![]()
ご利用頂いたお客様の口コミ・レビューを「お客様の声」として掲載しております。
全てのご感想を掲載しておりますので、エクスショップの評判としてご参考ください。
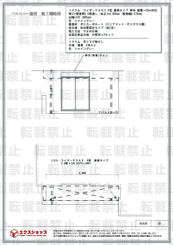
正式お見積りと一緒に提出させて頂いております「工事概略図面」もご覧頂けます。
商品や設置場所のご検討にお役立てください。
(写真No:23087026)
(バルコニー・ベランダ屋根)
| カラー | シャイングレー |
|---|---|
| サイズ | 屋根幅 4,570mm 出幅 885mm |
| 柱仕様 | 柱位置固定タイプ(柱2本) |
| 屋根材 | ポリカーボネート(クリアマット・すりガラス調) |
| 工事方法 | 地域密着あんしん施工 |
6月に施工をお願いして、工事日程の調整がつかない、分からないと言われ続け。出来上がったのは2ヶ月後の八月末でした。いつ工事日程が出るのか分からず、またどこで日程を組まれてもいいように常に在宅していたので、日程が出るまでの夏休みは完全に棒に振った感じです。梅雨時期の洗濯物干しにとバルコニー屋根を付けたかったのに、梅雨もすっかり明けて完全に季節は秋ですどうもありがとうございました。工事をしてくださった提携業者の方はとても感じが良く、仕事も丁寧で後片付けまで綺麗にきちんとしていただけました。注文した品の仕上がりについては大変満足しています。飼猫も雨の日でも外の様子が覗けるようになり喜んでいます。
この度は、ライザーテラスII R型の施工ご依頼を頂き誠に有り難うございます。日程調整ではお時間を頂戴致しましたこと誠に申し訳ございませんでした。ご迷惑をおかけ致しましたこと、深くお詫び申し上げます。お仕上がりにつきましては、ご満足頂け、施工士も担当スタッフも大変喜んでおります。今後、施工店との連携をより密にし、お客様に快適にご利用頂ける様、精進して参りたいと存じます。貴重なご意見をお寄せ頂き誠に有難うございました。
当サイトは以下のセキュリティ機能や保護認定等を備えています。安心してお申し込みください
当サイトはSSL暗号化に対応しています。入力した個人情報は暗号化して送られますので、安心してご利用ください。
当社はJADMAの正会員です。同協会は法律で位置づけられた団体で、消費者の利益保護と業界の健全な発展の為に活動しています。
こちらの工事に使用しているエクステリア
![]()
スピーネ R型 屋根タイプ 単体

工事費・税込
95,300円~
商品レビュー数
427件
LIXILの新テラス屋根スピーネ。広い地域に対応ができる積雪~20cmタイプです。雨や雪の入り込みを防ぎ、さらに視線も遮る目隠しスクリーンも取り付けられるテラスです。
この商品の詳細へ
無料お見積り・現場調査・ご注文もこちら