各取扱メーカーの会社名、ロゴ及び商品名等は各社の商標または登録商標です。
| 日 | 月 | 火 | 水 | 木 | 金 | 土 |
|---|---|---|---|---|---|---|
| 1 | 2 | 3 | 4 | 5 | 6 | |
| 7 | 8 | 9 | 10 | 11 | 12 | 13 |
| 14 | 15 | 16 | 17 | 18 | 19 | 20 |
| 21 | 22 | 23 | 24 | 25 | 26 | 27 |
| 28 | 29 | 30 | 31 |
| 日 | 月 | 火 | 水 | 木 | 金 | 土 |
|---|---|---|---|---|---|---|
| 1 | 2 | 3 | ||||
| 4 | 5 | 6 | 7 | 8 | 9 | 10 |
| 11 | 12 | 13 | 14 | 15 | 16 | 17 |
| 18 | 19 | 20 | 21 | 22 | 23 | 24 |
| 25 | 26 | 27 | 28 | 29 | 30 | 31 |
…休業日(現場調査・工事は一部対応)
![]()
【受付時間】9:30 - 17:30(営業日)
![]()
【受付時間】9:30 - 17:30(営業日)
オペレーションスタッフ
エクステリアプランナー有資格者の私たちにお任せください。
ショップ責任者
神(じん)
エクステリア プランナー
有資格者61名
1/3
1/3
今週のPick Upページ
![]()
ご利用頂いたお客様の口コミ・レビューを「お客様の声」として掲載しております。
全てのご感想を掲載しておりますので、エクスショップの評判としてご参考ください。
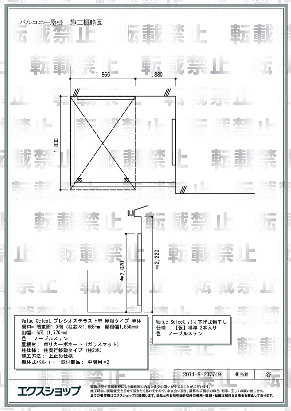
正式お見積りと一緒に提出させて頂いております「工事概略図面」もご覧頂けます。
商品や設置場所のご検討にお役立てください。
(写真No:23774928)
(バルコニー・ベランダ屋根)
| カラー | ノーブルステン |
|---|---|
| サイズ | 屋根幅 1,850mm 出幅 1,770mm |
| 柱仕様 | 柱奥行移動タイプ(柱2本) |
| 屋根材 | ポリカーボネート(ガラスマット) |
| 工事方法 | 地域密着あんしん施工 |
こちらも初めての依頼先だったので不安でしたが、細かい所まで色々確認しながらの作業だったので良かったと思います。
プレシオステラス F型の施工をご依頼頂きまして、誠に有り難うございます。バルコニー屋根の施工をインターネットを通じてご依頼頂くには、ご心配な点もあったかと存じますが、弊社提携施工店の担当者にお褒めのお言葉を頂き、誠に有り難うございます。ポリカーボネート(ガラスマット)の屋根材は透明感があり、スタイリッシュなお仕上がりでございますね。今後も変わらず、お客様のご満足の為に精進して参りたいと存じますので、また機会がございましたら、お気軽にエクスショップにご用命くださいますよう宜しくお願い致します。
当サイトは以下のセキュリティ機能や保護認定等を備えています。安心してお申し込みください
当サイトは256ビットSSL暗号化に対応しています。入力した個人情報は暗号化して送られますので、安心してご利用ください。
当社はJADMAの正会員です。同協会は法律で位置づけられた団体で、消費者の利益保護と業界の健全な発展の為に活動しています。
こちらの工事に使用しているエクステリア
![]()
プレシオステラスU F型 屋根タイプ 単体

工事費・税込
67,300円〜
商品レビュー数
101件
プレシオステラスU F型 屋根タイプ 単体はエクスショップオリジナルブランドのフラット屋根タイプのバルコニー屋根です。間口は3サイズ、出幅は5サイズから最適なものを選択いただけます。屋根は平らなフラット仕様です。
この商品の詳細へ
無料お見積り・現場調査・ご注文もこちら