各取扱メーカーの会社名、ロゴ及び商品名等は各社の商標または登録商標です。
| 日 | 月 | 火 | 水 | 木 | 金 | 土 |
|---|---|---|---|---|---|---|
| 1 | 2 | |||||
| 3 | 4 | 5 | 6 | 7 | 8 | 9 |
| 10 | 11 | 12 | 13 | 14 | 15 | 16 |
| 17 | 18 | 19 | 20 | 21 | 22 | 23 |
| 24 | 25 | 26 | 27 | 28 | 29 | 30 |
| 31 |
| 日 | 月 | 火 | 水 | 木 | 金 | 土 |
|---|---|---|---|---|---|---|
| 1 | 2 | 3 | 4 | 5 | 6 | |
| 7 | 8 | 9 | 10 | 11 | 12 | 13 |
| 14 | 15 | 16 | 17 | 18 | 19 | 20 |
| 21 | 22 | 23 | 24 | 25 | 26 | 27 |
| 28 | 29 | 30 |
…休業日(現場調査・工事は一部対応)
![]()
【受付時間】9:30 - 17:30(営業日)
![]()
【受付時間】9:30 - 17:30(営業日)
オペレーションスタッフ
エクステリアプランナー有資格者の私たちにお任せください。
ショップ責任者
神(じん)
エクステリア プランナー
有資格者61名
1/3
1/3
今週のPick Upページ
![]()
ご利用頂いたお客様の口コミ・レビューを「お客様の声」として掲載しております。
全てのご感想を掲載しておりますので、エクスショップの評判としてご参考ください。
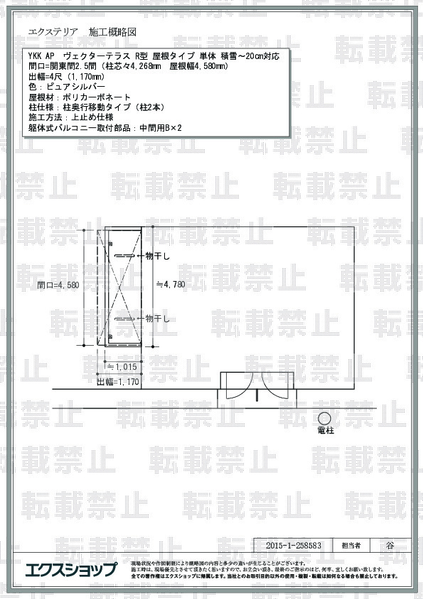
正式お見積りと一緒に提出させて頂いております「工事概略図面」もご覧頂けます。
商品や設置場所のご検討にお役立てください。
(写真No:25858321)
(バルコニー・ベランダ屋根)
| カラー | ピュアシルバー |
|---|---|
| サイズ | 屋根幅 4,580mm 出幅 1,170mm |
| 柱仕様 | 柱奥行移動タイプ(柱2本) |
| 屋根材 | ポリカーボネート(アースブルー) |
| 工事方法 | 地域密着あんしん施工 |
今までベランダに屋根がなく洗濯物を干すのが不便でしたが、屋根を付けたおかげで急な雨も気にせずとても便利になりました。
カーブしたお屋根でバルコニーをしっかりと覆うヴェクターテラス R型 屋根タイプが設置され、雨の日でも快適にお過ごし頂いておりますこと、スタッフ一同大変嬉しく存じます。雨や紫外線は遮りますが、適度に光を通すポリカーボネート(アースブルー)の屋根材を使用したバルコニー屋根により、お客様の生活がより便利で豊かなものになりますことを、心より祈っております。この度のご利用、誠に有り難うございました。また機会がございましたら、是非弊社にご用命くださいますよう、宜しくお願い申し上げます。
当サイトは以下のセキュリティ機能や保護認定等を備えています。安心してお申し込みください
当サイトはSSL暗号化に対応しています。入力した個人情報は暗号化して送られますので、安心してご利用ください。
当社はJADMAの正会員です。同協会は法律で位置づけられた団体で、消費者の利益保護と業界の健全な発展の為に活動しています。
こちらの工事に使用しているエクステリア
![]()
ソラリア R型 屋根タイプ 単体

工事費・税込
82,100円~
商品レビュー数
604件
雨や風の吹込みを軽減してくれるバルコニー屋根のR屋根型。カーブのかかった屋根によって雨や風が吹き込みにくくなっています。シンプルながらも優しい印象を持つバルコニー屋根で快適な空間を生みだします。
この商品の詳細へ
無料お見積り・現場調査・ご注文もこちら