お客様の声(工事例)

ご利用頂いたお客様の口コミ・レビューを「お客様の声」として掲載しております。
全てのご感想を掲載しておりますので、エクスショップの評判としてご参考ください。
正式お見積りと一緒に提出させて頂いております「工事概略図面」もご覧頂けます。
商品や設置場所のご検討にお役立てください。

毎日更新 安心と信頼の工事実績
声の掲載数
177,246
商品工事数
220,287
(2025年10月13日現在)

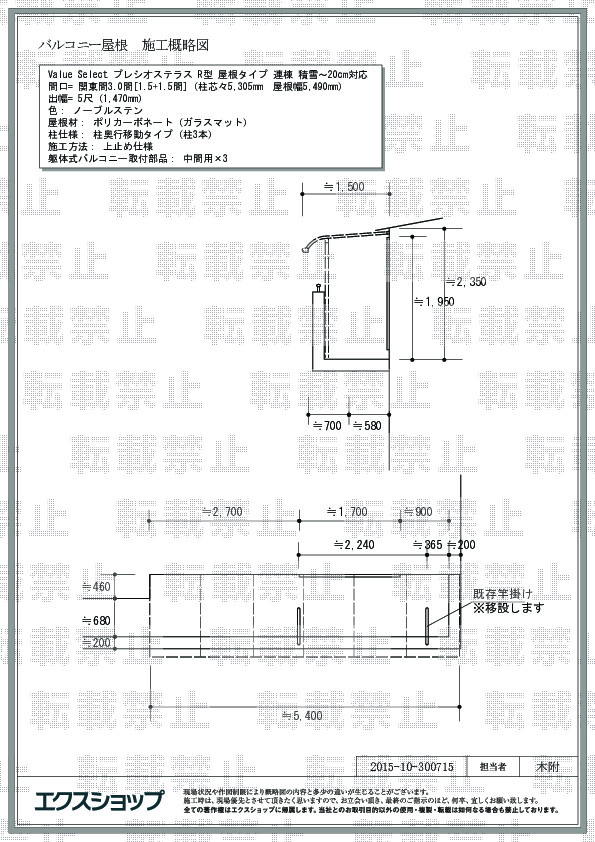
愛知県海部郡 大治町あいちけん あまぐん おおはるちょう のValue Selectバルコニー・ベランダ屋根施工例(プレシオステラス R型 屋根タイプ 連棟 積雪〜20cm対応)

愛知県海部郡大治町のValue Selectのバルコニー・ベランダ屋根 プレシオステラス R型 屋根タイプ 連棟 積雪〜20cm対応 施工例

(写真No:30071531)

プレシオステラス R型 屋根タイプ 連棟 積雪〜20cm対応

カラー ノーブルステン
サイズ 屋根幅 5,490mm 出幅 1,470mm
柱仕様 柱奥行移動タイプ(柱3本)
屋根材 ポリカーボネート(ガラスマット)
工事方法 地域密着あんしん施工

お客様の感想 評価: 5つ星のうち5 5

他社と比較して最安値でした。毎日のお洗濯やお布団干しが楽しくなりました。

エクスショップ担当者より

弊社は格安のお値段での最高品質の提供にこだわっておりますので、お客様のお言葉、大変嬉しく存じます。プレシオステラス R型 屋根タイプ 連棟がバルコニーをしっかりと覆い、雨の日でも安心してお洗濯物を干して頂けますね。『毎日のお洗濯やお布団干しが楽しくなりました。』とのご感想をお寄せ頂き、私どももタイへ嬉しく存じます。これからもお客様の笑顔の為に、エクスショップは日々精進して参ります。また機会がございましたら、是非弊社にご用命くださいますよう、宜しくお願い致します。

この工事例についてのお問い合わせ

下のフォームの全項目にご入力の上、確認画面へ進んでください。
(※お客様にご入力いただいた情報は、セコムSSLにて暗号化され、安全に送信されます。)

お名前
(ふりがな)
せい めい
ご住所 都道府県:
メールアドレス

メールアドレスを持っていない(info@ex-shop.netが自動入力されます)

お電話番号
お問い合わせ内容

上の「お問い合わせフォーム」に必要事項を全て入力されましたら、
次の入力内容の確認ページへと進んでください。

確認画面へ進む

第三者への転売等を目的とする建設関連業者様からの施工のご依頼は、申し訳ありませんがお断りしております(※商品のみのご購入には対応しております)。

こちらの工事に使用しているエクステリア

Value Select

プレシオステラスU R型 屋根タイプ 単体

  • 55%OFF
  • さらに特別値引

工事費・税込

68,400円〜

総合平均評価(星5つ評価)

4.82

商品レビュー数

181

プレシオステラスU R型 屋根タイプ 単体はエクスショップオリジナルブランドのアール屋根タイプのバルコニー屋根です。間口3サイズ・出幅5サイズからの選択ができます。屋根は曲線型のアール仕様で、3色からお選びいただけます。

この商品のレビュー

エクスショップが選ばれる7つの理由

高価な買い物だから、工事が必要な商品だから、ネットを介した購入だから、工事実績豊富で価格面も安心!のエクスショップが選ばれています。

25年連続NO.1エクステリアネット販売実績2000〜2024

  • 極限価格 割引率最大69%+α OFF!!
  • 現場調査&お見積り工事開始まですべて無料! 仕様変更による再見積りももちろん無料!
  • 全国対応 地域密着 1,613店 お近くの当社提携施工店が工事対応します!
  • メーカー取り扱い商品点数 豊富な10,000商品
  • 掲載中の施工実績&お客様の声 170,000件の実績!!
  • 商品&施工、安心のダブル保証! 商品2年施工10年
  • お客様情報をあらゆる面から守ります 安心セキュリティ

ページトップへ