各取扱メーカーの会社名、ロゴ及び商品名等は各社の商標または登録商標です。
| 日 | 月 | 火 | 水 | 木 | 金 | 土 |
|---|---|---|---|---|---|---|
| 1 | ||||||
| 2 | 3 | 4 | 5 | 6 | 7 | 8 |
| 9 | 10 | 11 | 12 | 13 | 14 | 15 |
| 16 | 17 | 18 | 19 | 20 | 21 | 22 |
| 23 | 24 | 25 | 26 | 27 | 28 | 29 |
| 30 |
| 日 | 月 | 火 | 水 | 木 | 金 | 土 |
|---|---|---|---|---|---|---|
| 1 | 2 | 3 | 4 | 5 | 6 | |
| 7 | 8 | 9 | 10 | 11 | 12 | 13 |
| 14 | 15 | 16 | 17 | 18 | 19 | 20 |
| 21 | 22 | 23 | 24 | 25 | 26 | 27 |
| 28 | 29 | 30 | 31 |
…休業日(現場調査・工事は一部対応)
![]()
【受付時間】9:30 - 17:30(営業日)
![]()
【受付時間】9:30 - 17:30(営業日)
オペレーションスタッフ
エクステリアプランナー有資格者の私たちにお任せください。
ショップ責任者
神(じん)
エクステリア プランナー
有資格者61名
1/3
1/3
今週のPick Upページ
![]()
ご利用頂いたお客様の口コミ・レビューを「お客様の声」として掲載しております。
全てのご感想を掲載しておりますので、エクスショップの評判としてご参考ください。
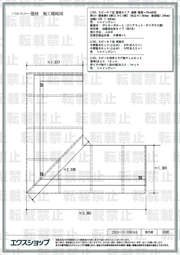
正式お見積りと一緒に提出させて頂いております「工事概略図面」もご覧頂けます。
商品や設置場所のご検討にお役立てください。
(写真No:30934531)
(バルコニー・ベランダ屋根)
| カラー | シャイングレー |
|---|---|
| サイズ | 屋根幅 7,300mm 出幅 1,485mm |
| 柱仕様 | 出幅自在桁タイプ(柱3本) |
| 屋根材 | ポリカーボネート(クリアマット・すりガラス調) |
| 工事方法 | 地域密着あんしん施工 |
ベランダに屋根がついたので、洗濯物を干していて雨が降ってきても急いで取り込まなくて良くなった。
スピーネ F型 屋根タイプ 連棟の施工のご依頼を頂きまして、誠に有り難うございます。テラス屋根が既存のサッシのお色とマッチし、お住まいとの一体感がございますね。コーナー部分の収まり具合も美しく仕上がっております事、誠に喜ばしく存じます。ポリカーボネート(クリアマット・すりガラス調)の屋根が雨や紫外線からお洗濯物を守り、急な雨の時も、お出かけの際も、安心してお洗濯物を干して頂けるものと存じます。生活動線の一部であるバルコニーが快適な環境になり、家事の効率がアップしましたら幸いでございます。これからもお客様の笑顔の為にスタッフ一同努力して参りますので、また機会がございましたら、是非エクスショップにご用命頂きますよう、宜しくお願い申し上げます。
当サイトは以下のセキュリティ機能や保護認定等を備えています。安心してお申し込みください
当サイトは256ビットSSL暗号化に対応しています。入力した個人情報は暗号化して送られますので、安心してご利用ください。
当社はJADMAの正会員です。同協会は法律で位置づけられた団体で、消費者の利益保護と業界の健全な発展の為に活動しています。
こちらの工事に使用しているエクステリア
![]()
スピーネ F型 屋根タイプ 連棟

工事費・税込
177,900円〜
商品レビュー数
65件
LIXILの新テラス屋根スピーネ。緩やかなカーブでどんなご自宅にでもマッチング。広い地域に対応ができる積雪〜20cmタイプです。
この商品の詳細へ
無料お見積り・現場調査・ご注文もこちら