日光、雨・風を防ぎバルコニーを快適に
お庭に屋内空間を拡張
セット購入でお値引きお得な価格で快適生活
快適なガレージには必須
お庭に憩いのスペースを作り出します
防犯、お家のドレスアップはこれで決まり
各取扱メーカーの会社名、ロゴ及び商品名等は各社の商標または登録商標です。
| 日 | 月 | 火 | 水 | 木 | 金 | 土 |
|---|---|---|---|---|---|---|
| 1 | 2 | 3 | ||||
| 4 | 5 | 6 | 7 | 8 | 9 | 10 |
| 11 | 12 | 13 | 14 | 15 | 16 | 17 |
| 18 | 19 | 20 | 21 | 22 | 23 | 24 |
| 25 | 26 | 27 | 28 | 29 | 30 | 31 |
| 日 | 月 | 火 | 水 | 木 | 金 | 土 |
|---|---|---|---|---|---|---|
| 1 | 2 | 3 | 4 | 5 | 6 | 7 |
| 8 | 9 | 10 | 11 | 12 | 13 | 14 |
| 15 | 16 | 17 | 18 | 19 | 20 | 21 |
| 22 | 23 | 24 | 25 | 26 | 27 | 28 |
…休業日(現場調査・工事は一部対応)
![]()
【受付時間】9:30 - 17:30(営業日)
![]()
【受付時間】9:30 - 17:30(営業日)
オペレーションスタッフ
エクステリアプランナー有資格者の私たちにお任せください。
ショップ責任者
神(じん)
エクステリア プランナー
有資格者61名
1/3
木附
枡田
重富
吉澤
吉野
小東
池本
山田
佐藤
白崎
新西
伊野
次田
南
西山
小林
阿重田
梨田
長谷川
藤田
村上
平戸
植松
内田
久田
中島
長石
水口
榮
山崎
清水
室谷
安田
水谷
小野
酒井
一氏
神吉
日下部
山中
深田
田中
水田
西田
岡本
丸山
北
坂本
中嶋
岩野
伊藤
上中
高山
原
犬井
佐伯
谷川
塚田
松本
小林
森下
上内
島田
森
梅田
松山
山本
小西
倉地
山根
中原
河野
村上
土井
岩破
南
井上
三ツ股
小田
依藤
永禮
林
加藤
石藤
駒井
末吉
山本
芦野
樽井
野上
岡田
木村
池田
西村
藤澤
達川
奥原
那須
1/3
今週のPick Upページ
![]()
ご利用頂いたお客様の口コミ・レビューを「お客様の声」として掲載しております。
全てのご感想を掲載しておりますので、エクスショップの評判としてご参考ください。
正式お見積りと一緒に提出させて頂いております「工事概略図面」もご覧頂けます。
商品や設置場所のご検討にお役立てください。
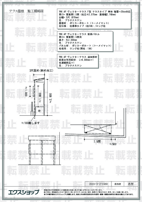
(写真No:27105923)
(テラス屋根)
| カラー | プラチナステン |
|---|---|
| サイズ | 屋根幅 2,760mm 出幅 870mm |
| 柱仕様 | 柱標準タイプ(柱2本)/ロング柱 |
| 屋根材 | ポリカーボネート(トーメイマット) |
| 工事方法 | メーカー責任施工 |
勝手口のテラス屋根を設置しましたが、雨でぬれるところもあり、今後一部オプションを設置する予定です。設置した業者からアドバイスがあれば良かったと思います。
この度はヴェクターテラス F型の施工をご依頼頂きまして、誠に有り難うございます。プラチナステンのテラス屋根が自然にお住まいに調和し、雨天でも勝手口をより広々と快適にご利用頂けますね。しかしながら現場調査時のご提案が不十分でありましたこと、誠に申し訳ございませんでした。今後はお客様に100%ご満足頂ける施工が出来ますよう、現場調査時の綿密なお打ち合わせに努めて参りたいと存じます。今後もお客様の笑顔の為日々精進して参る所存でございますので、また機会がございましたらエクスショップをご利用下さいますよう、宜しくお願い致します。
当サイトは以下のセキュリティ機能や保護認定等を備えています。安心してお申し込みください
当サイトは256ビットSSL暗号化に対応しています。入力した個人情報は暗号化して送られますので、安心してご利用ください。
当社はJADMAの正会員です。同協会は法律で位置づけられた団体で、消費者の利益保護と業界の健全な発展の為に活動しています。
こちらの工事に使用しているエクステリア
![]()
ソラリア F型 テラスタイプ 単体

工事費・税込
65,300円〜
総合平均評価(星5つ評価)
4.79
商品レビュー数
2412件
ソラリア F型 テラスタイプ 単体は実用性の高いテラス空間を設計するテラス屋根です。本体は全5色のカラーから、屋根材は異なる光線透過率を有する5種類をご用意しています。豊富なサイズバリエーションとオプション展開により、使用目的に応じる理想的な組み合わせが可能です。
この商品の詳細へ
無料お見積り・現場調査・ご注文もこちら
この商品のレビュー
商品レビュー2,412件

茨城県 日立市 T.H.様
熱遮蔽タイプを選定したが、思ったより熱遮蔽されない感想ですが、 標準だどもっと暑いと思うので、選定して良かったと思った。

神奈川県 茅ヶ崎市 U.H.様
雨が直接窓に吹き込まず、遮熱対策にもなっていて、とても快適です。

福岡県 筑紫野市 T.K.様
目隠し効果も抜群で屋根の色が外壁色と同じだったのでとても満足、これから暑くなるので遮熱効果に期待したい。

京都府 長岡京市 H.K.様
屋根とパネルの間の隙間は埋めなくて正解でした。隙間から空と庭木が挑められる事、また風通りも良くなり却って良かったです。

鹿児島県 指宿市 H.R.様
少し残念なのは、雨が打ち込んでくるとこです。

兵庫県 たつの市 K.T.様
屋根の光の透過性はちょうどよく洗濯ものもよくかわくように思えます。

山口県 山陽小野田市 U.M.様
いつもの事ですが大変良いです。 知り合いも凄く良いねって言ってます。

福岡県 北九州市 A.D.様
フラットタイプを付けて頂きました。 スタイリッシュで満足です。

福島県 福島市 M.N.様
敷地がもう少し広ければ軒を出したかったんですがこれだけはしょうがなかったですね💦今の状態でも2部屋から雨に濡れず洗濯物の出し入れ 物置への移動も出来それにタクボさんの物置引き戸とテラスの屋根材の色が 同色っぽくこの辺も満足しました。

奈良県 生駒郡平群町 H.S.様
屋根を透明感あるホワイトを選んでよかった。屋根で暗くなるかと心配していたが、そこまで暗くならず大変満足している。

福岡県 古賀市 H.K.様
屋根があることで外に洗濯物が干せるようになり便利になった。

東京都 町田市 S.M.様
既存のウッドデッキ上への設置だったが1日でついたので満足です

静岡県 富士宮市 O.Y.様
デザインも良く、スッキリしていてよかったです。

神奈川県 横浜市 H.H.様
サイドのパネル等のオプションが高いと思います。

山口県 下関市 N.H.様
テラス屋根が高く圧迫感なくストレスを感じない。
関連するお客様の声

5つ星のうち5
神奈川県U.H. 様回答日:2025年4月
今回、ウッドデッキとテラス屋根の施工をお願いしました。天然木のデッキが壊れて中庭への出入りが不便になったため依頼しましたが、当初予定になかったテラス屋根も思い切って追加。費用は増えましたが、出入りの利便性に加え天候対策もでき、大変満足しています。営業・施工担当の方の対応も丁寧で、安心してお任せできました。

5つ星のうち5
福島県M.N. 様回答日:2025年3月
ネットで知り、扱う商品も多彩でコスパも良いので決めました。大体、設置完了の状態を想像してましたが、想像通りで決まった敷地内で上手く収まり大変満足し、信頼出来る業者さんでした!又、エクスショップの営業担当様の相談、見積りなど迅速、丁寧な対応が決めてですね(^^♪

5つ星のうち5
福岡県H.K. 様回答日:2024年12月
カーポートに関して、雨の日でも濡れることなく子供の乗せ降ろしも楽になった。フェンスに関して、道路と隣家からの視線が改善され、家の見栄えも良くなった。ウッドデッキ・テラスに関して、洗濯物を外に干すことができ、とても便利になった。物置に関して、家の中にあった物を保管できるようになり、家の中がスッキリした。

5つ星のうち5
東京都S.M. 様回答日:2024年9月
カーポートをいずれつけるつもりだったが、検討段階から参考写真を見比べており設置した場合のイメージがしやすかった。片側傾斜の立地での設置だったが現地見積もりの際に相談し不安を払拭できあんしんしてお願いすることができた。施工の際も細やかな説明の中すすめていただけたので非常に満足しています。

5つ星のうち4
大阪府H.Y. 様回答日:2024年8月
予算に合わせて、丁寧に見積もりをして頂きました。工事中も不安な所はきちんと説明してくれて、きれいに仕上げてもらえました。雨が降っても窓を開けられるようになったので、お願いしてよかったです。ベランダの柱は地面に少ししかついてなくてビックリしましたが、しっかり固定されていました。

5つ星のうち5
福岡県T.H. 様回答日:2025年4月
・商品のきっかけとなったのは、色々なサイトでテラス屋根を調べていたらエクスショップにたどり着きました。かなり、値段が安かったので、少し疑いながら見積もりをお願いしました。担当者も工事見積の方もとても親切でお願いしようと思いました。結果、今までの考えが変わり、再度他の場所も注文しました。信頼できるショップです。

5つ星のうち5
神奈川県U.H. 様回答日:2025年4月
今回、ウッドデッキとテラス屋根の施工をお願いしました。天然木のデッキが壊れて中庭への出入りが不便になったため依頼しましたが、当初予定になかったテラス屋根も思い切って追加。費用は増えましたが、出入りの利便性に加え天候対策もでき、大変満足しています。営業・施工担当の方の対応も丁寧で、安心してお任せできました。

5つ星のうち5
神奈川県F.K. 様回答日:2025年4月
飼い犬の散歩で使用したタオルなどの一時的の外干し(基本的には室内干し)の際にこれまでは雨が降ると屋根がないところでタオルを洗ったり干していたので、なにかしら雨が防げるものが欲しかった。施工後まだ雨は降ってませんがイメージどおりに施工してもらいよかったです。
関連するブログ記事
関連するよくあるご質問
TOEXの樹の木テラスの取り扱いはありますか?
【商品カテゴリ >テラス屋根】(ご質問No.67)
タカショーのJ/EUポーチ(独立タイプ)の取り扱いはありますか?
【商品カテゴリ >テラス屋根】(ご質問No.166)
人工石貼りのガーデンテラスの取り扱いはありますか?
【商品カテゴリ >テラス屋根】(ご質問No.235)
プレシオステラス R型 テラスタイプ 単体に前面スクリーンをつけることはできますでしょうか?
【商品カテゴリ >テラス屋根】(ご質問No.334)
柱奥行移動タイプにする場合、柱から屋根先が何センチくらい出っ張るようになるのでしょうか。
【商品カテゴリ >テラス屋根】(ご質問No.567)
はじめまして。二階建て住宅に住んでおります。一階のテラス屋根が一部破損してしまったので、修繕を考えております。
【商品カテゴリ >テラス屋根】(ご質問No.624)
敷地に合わせて切詰め加工できますか?
【商品カテゴリ >テラス屋根】(ご質問No.735)
柱固定仕様と出幅自在桁・柱奥行移動仕様の違いはどんなものですか?
【商品カテゴリ >テラス屋根】(ご質問No.736)
物干しの金額は見積に含まれますか?他にどんなオプションがあるのか教えてください。
【商品カテゴリ >テラス屋根】(ご質問No.737)
テラス屋根の取り付け見積とその他の製品について相談したく思います。
場所は総社市です。宜しくお願いします。
【商品カテゴリ >テラス屋根】(ご質問No.942)


















