各取扱メーカーの会社名、ロゴ及び商品名等は各社の商標または登録商標です。
| 日 | 月 | 火 | 水 | 木 | 金 | 土 |
|---|---|---|---|---|---|---|
| 1 | ||||||
| 2 | 3 | 4 | 5 | 6 | 7 | 8 |
| 9 | 10 | 11 | 12 | 13 | 14 | 15 |
| 16 | 17 | 18 | 19 | 20 | 21 | 22 |
| 23 | 24 | 25 | 26 | 27 | 28 | 29 |
| 30 |
| 日 | 月 | 火 | 水 | 木 | 金 | 土 |
|---|---|---|---|---|---|---|
| 1 | 2 | 3 | 4 | 5 | 6 | |
| 7 | 8 | 9 | 10 | 11 | 12 | 13 |
| 14 | 15 | 16 | 17 | 18 | 19 | 20 |
| 21 | 22 | 23 | 24 | 25 | 26 | 27 |
| 28 | 29 | 30 | 31 |
…休業日(現場調査・工事は一部対応)
![]()
【受付時間】9:30 - 17:30(営業日)
![]()
【受付時間】9:30 - 17:30(営業日)
オペレーションスタッフ
エクステリアプランナー有資格者の私たちにお任せください。
ショップ責任者
神(じん)
エクステリア プランナー
有資格者61名
1/3
1/3
今週のPick Upページ
![]()
ご利用頂いたお客様の口コミ・レビューを「お客様の声」として掲載しております。
全てのご感想を掲載しておりますので、エクスショップの評判としてご参考ください。
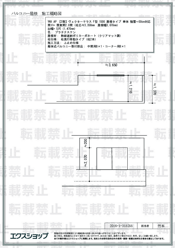
正式お見積りと一緒に提出させて頂いております「工事概略図面」もご覧頂けます。
商品や設置場所のご検討にお役立てください。
(写真No:31525531)
(バルコニー・ベランダ屋根)
| カラー | プラチナステン |
|---|---|
| サイズ | 屋根幅 3,670mm 出幅 1,470mm |
| 柱仕様 | 柱奥行移動タイプ(柱2本) |
| 屋根材 | 熱線遮断ポリカーボネート(クリアマット調) |
| 工事方法 | 地域密着あんしん施工 |
ちょっとした雨の日でもベランダで干せるようになりました。突然雨が降ってきても安心。工事は朝9時半に来て頂いて5時までかかりました。ベランダに直接はしごをかけて工事していたのでちょっとして外出は出来ます。よく見るとガラスに傷がちらほら、、、でもこの値段ならしょうがないなかな。と思いました。商品自体に差し支えはないです。
ヴェクターテラス F型の施工のご依頼を頂きまして、誠に有り難うございます。ベルコニー屋根がまるでカタログ写真の1枚のような美しい収まり具合の写真をお送り頂き有り難うございます。天候に関わらずお洗濯物を干して頂け、熱線遮断ポリカーボネート(クリアマット調)の屋根が夏場の強い日差しを遮りますので、またお部屋の中の温度上昇を防ぐものと存じます。ガラスの傷につきまして、商品の事前の確認が出来ておらず、大変申し訳ございませんでした。今後はこのような事が無きよう、施工前の商品チェックを徹底して参る所存でございますので、これからもエクスショップをご愛顧頂きますよう、宜しくお願い申し上げます。
当サイトは以下のセキュリティ機能や保護認定等を備えています。安心してお申し込みください
当サイトは256ビットSSL暗号化に対応しています。入力した個人情報は暗号化して送られますので、安心してご利用ください。
当社はJADMAの正会員です。同協会は法律で位置づけられた団体で、消費者の利益保護と業界の健全な発展の為に活動しています。
こちらの工事に使用しているエクステリア
![]()
ソラリア F型 積雪50cm対応 屋根タイプ 単体

工事費・税込
112,600円〜
商品レビュー数
63件
積雪地域でも安心してご使用いただける積雪50cmまで対応可能なバルコニー屋根。風の影響を大きく受ける屋根部の強度にも配慮がなされています。シャープなデザインでお住まいの外観を損なうことなく調和する仕上がりとなっています。
この商品の詳細へ
無料お見積り・現場調査・ご注文もこちら