各取扱メーカーの会社名、ロゴ及び商品名等は各社の商標または登録商標です。
| 日 | 月 | 火 | 水 | 木 | 金 | 土 |
|---|---|---|---|---|---|---|
| 1 | 2 | 3 | 4 | 5 | 6 | 7 |
| 8 | 9 | 10 | 11 | 12 | 13 | 14 |
| 15 | 16 | 17 | 18 | 19 | 20 | 21 |
| 22 | 23 | 24 | 25 | 26 | 27 | 28 |
| 日 | 月 | 火 | 水 | 木 | 金 | 土 |
|---|---|---|---|---|---|---|
| 1 | 2 | 3 | 4 | 5 | 6 | 7 |
| 8 | 9 | 10 | 11 | 12 | 13 | 14 |
| 15 | 16 | 17 | 18 | 19 | 20 | 21 |
| 22 | 23 | 24 | 25 | 26 | 27 | 28 |
| 29 | 30 | 31 |
…休業日(現場調査・工事は一部対応)
![]()
【受付時間】9:30 - 17:30(営業日)
![]()
【受付時間】9:30 - 17:30(営業日)
オペレーションスタッフ
エクステリアプランナー有資格者の私たちにお任せください。
ショップ責任者
神(じん)
エクステリア プランナー
有資格者61名
1/3
1/3
今週のPick Upページ
![]()
ご利用頂いたお客様の口コミ・レビューを「お客様の声」として掲載しております。
全てのご感想を掲載しておりますので、エクスショップの評判としてご参考ください。
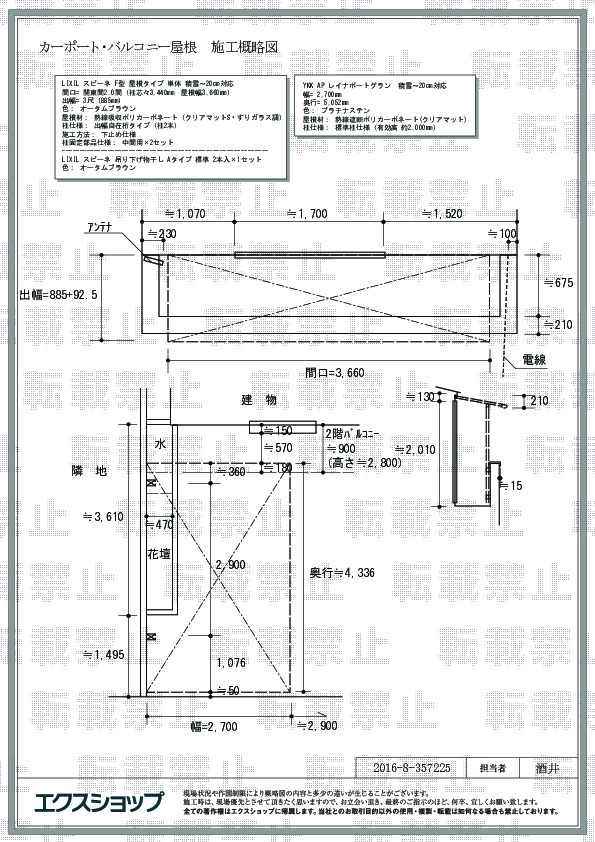
正式お見積りと一緒に提出させて頂いております「工事概略図面」もご覧頂けます。
商品や設置場所のご検討にお役立てください。
(写真No:35722538)
(バルコニー・ベランダ屋根)
| カラー | オータムブラウン |
|---|---|
| サイズ | 屋根幅 3,660mm 出幅 885mm |
| 柱仕様 | 出幅自在桁タイプ(柱2本) |
| 屋根材 | 熱線吸収ポリカーボネート(クリアマットS・すりガラス調) |
| 工事方法 | 地域密着あんしん施工 |
夏になると、日差しが強く、暑くてたまりませんでした。今はカーポート設置と3階屋根設置いただけて快適です。満足してます。
スピーネ F型 屋根タイプとレイナポートグランの施工をご依頼頂きまして、誠に有り難うございます。ご自宅の外観を損なうことなく綺麗に収まりましたこと、大変嬉しく存じます。熱線遮断ポリカーボネートの屋根材が雨や直射日光を遮り、夏場の車内温度の上昇、冬場のフロントガラスの凍結、並びに、雨天時のお車の汚れなど、多くの悩みが解消されるものと存じます。3階のお部屋の中にも涼しい風が入ってくるのではないかと存じます。今後も変わらず、お客様の満足の為に精進して参りますので、また機会がございましたら、お気軽にエクスショップにご用命くださいますよう宜しくお願い致します。
当サイトは以下のセキュリティ機能や保護認定等を備えています。安心してお申し込みください
当サイトはSSL暗号化に対応しています。入力した個人情報は暗号化して送られますので、安心してご利用ください。
当社はJADMAの正会員です。同協会は法律で位置づけられた団体で、消費者の利益保護と業界の健全な発展の為に活動しています。
こちらの工事に使用しているエクステリア
![]()
スピーネ F型 屋根タイプ 単体

工事費・税込
90,000円〜
商品レビュー数
510件
LIXILの新テラス屋根スピーネ。雨や雪の入り込みを防ぎ、さらに視線も遮る目隠しスクリーンも取り付けられるテラスです。斜めなどの加工も対応が可能なシンプルスタイルです。
この商品の詳細へ
無料お見積り・現場調査・ご注文もこちら