各取扱メーカーの会社名、ロゴ及び商品名等は各社の商標または登録商標です。
| 日 | 月 | 火 | 水 | 木 | 金 | 土 |
|---|---|---|---|---|---|---|
| 1 | 2 | 3 | 4 | 5 | 6 | |
| 7 | 8 | 9 | 10 | 11 | 12 | 13 |
| 14 | 15 | 16 | 17 | 18 | 19 | 20 |
| 21 | 22 | 23 | 24 | 25 | 26 | 27 |
| 28 | 29 | 30 | 31 |
| 日 | 月 | 火 | 水 | 木 | 金 | 土 |
|---|---|---|---|---|---|---|
| 1 | 2 | 3 | ||||
| 4 | 5 | 6 | 7 | 8 | 9 | 10 |
| 11 | 12 | 13 | 14 | 15 | 16 | 17 |
| 18 | 19 | 20 | 21 | 22 | 23 | 24 |
| 25 | 26 | 27 | 28 | 29 | 30 | 31 |
…休業日(現場調査・工事は一部対応)
![]()
【受付時間】9:30 - 17:30(営業日)
![]()
【受付時間】9:30 - 17:30(営業日)
オペレーションスタッフ
エクステリアプランナー有資格者の私たちにお任せください。
ショップ責任者
神(じん)
エクステリア プランナー
有資格者61名
1/3
1/3
今週のPick Upページ
![]()
ご利用頂いたお客様の口コミ・レビューを「お客様の声」として掲載しております。
全てのご感想を掲載しておりますので、エクスショップの評判としてご参考ください。
正式お見積りと一緒に提出させて頂いております「工事概略図面」もご覧頂けます。
商品や設置場所のご検討にお役立てください。
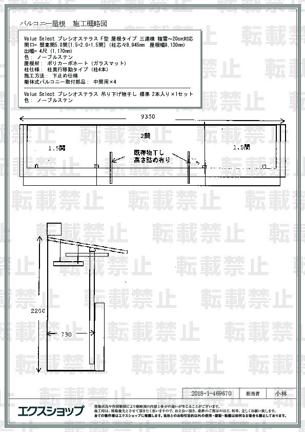
(写真No:46967041)
(バルコニー・ベランダ屋根)
| カラー | ノーブルステン |
|---|---|
| サイズ | 屋根幅 9,130mm 出幅 1,170mm |
| 柱仕様 | 柱奥行移動タイプ(柱4本) |
| 屋根材 | ポリカーボネート(ガラスマット) |
| 工事方法 | 地域密着あんしん施工 |
洗濯が雨の日でもベランダに干せるようになった
プレシオステラス F型の施工をご依頼頂きまして、誠に有り難うございます。屋根の出幅がバルコニーよりも広い、柱奥行移動タイプですので、雨の吹込みを最小限に抑えることが出来ますね。有害な紫外線もカットする屋根材でございますが、光の透過率が高いため、明るさを損なうことはないものと存じます。今後も、常に、お客様のご希望にかなった完成を目指し、努力して参ります。また機会がございましたら、是非エクスショップにご用命頂きますよう宜しくお願い致します。
当サイトは以下のセキュリティ機能や保護認定等を備えています。安心してお申し込みください
当サイトは256ビットSSL暗号化に対応しています。入力した個人情報は暗号化して送られますので、安心してご利用ください。
当社はJADMAの正会員です。同協会は法律で位置づけられた団体で、消費者の利益保護と業界の健全な発展の為に活動しています。
こちらの工事に使用しているエクステリア
![]()
プレシオステラスU F型 屋根タイプ 単体

工事費・税込
67,300円〜
商品レビュー数
101件
プレシオステラスU F型 屋根タイプ 単体はエクスショップオリジナルブランドのフラット屋根タイプのバルコニー屋根です。間口は3サイズ、出幅は5サイズから最適なものを選択いただけます。屋根は平らなフラット仕様です。
この商品の詳細へ
無料お見積り・現場調査・ご注文もこちら