各取扱メーカーの会社名、ロゴ及び商品名等は各社の商標または登録商標です。
| 日 | 月 | 火 | 水 | 木 | 金 | 土 |
|---|---|---|---|---|---|---|
| 1 | 2 | 3 | 4 | |||
| 5 | 6 | 7 | 8 | 9 | 10 | 11 |
| 12 | 13 | 14 | 15 | 16 | 17 | 18 |
| 19 | 20 | 21 | 22 | 23 | 24 | 25 |
| 26 | 27 | 28 | 29 | 30 | 31 |
| 日 | 月 | 火 | 水 | 木 | 金 | 土 |
|---|---|---|---|---|---|---|
| 1 | ||||||
| 2 | 3 | 4 | 5 | 6 | 7 | 8 |
| 9 | 10 | 11 | 12 | 13 | 14 | 15 |
| 16 | 17 | 18 | 19 | 20 | 21 | 22 |
| 23 | 24 | 25 | 26 | 27 | 28 | 29 |
| 30 |
…休業日(現場調査・工事は一部対応)
![]()
【受付時間】9:30 - 17:30(営業日)
![]()
【受付時間】9:30 - 17:30(営業日)
オペレーションスタッフ
エクステリアプランナー有資格者の私たちにお任せください。
ショップ責任者
神(じん)
エクステリア プランナー
有資格者61名
1/3
1/3
今週のPick Upページ
![]()
ご利用頂いたお客様の口コミ・レビューを「お客様の声」として掲載しております。
全てのご感想を掲載しておりますので、エクスショップの評判としてご参考ください。
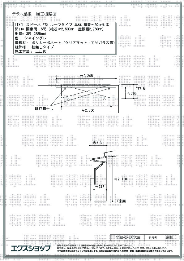
正式お見積りと一緒に提出させて頂いております「工事概略図面」もご覧頂けます。
商品や設置場所のご検討にお役立てください。
(写真No:48023043)
(バルコニー・ベランダ屋根)
| カラー | シャイングレー |
|---|---|
| サイズ | 屋根幅 2,750mm 出幅 885mm |
| 柱仕様 | 柱無しタイプ |
| 屋根材 | ポリカーボネート(クリアマット・すりガラス調) |
| 工事方法 | 地域密着あんしん施工 |
急な天候の変化に少しでも対応できるように設置を希望しました。見積もりに来て頂いた方がとても親切で、値段の事やメリットデメリットも丁寧に教えてくれたので、安心して購入に至りました。
スピーネ F型 ルーフタイプの施工をご依頼頂きまして、誠に有り難うございます。柱の無いタイプですので、バルコニーの足元がすっきりして、掃除も容易かと存じます。インターネットを通してバルコニー屋根の設置をご依頼頂くには、ご心配な点もあったかと存じますが、現場調査にお伺いした担当者を信頼して施工をお任せ頂きましたこと、大変嬉しく存じます。今後も、エクステリアの施工を通してお客様に笑顔をお届け出来ますよう、日々精進して参ります。また機会がございましたら、是非エクスショップにご用命頂きますよう宜しくお願い致します。
当サイトは以下のセキュリティ機能や保護認定等を備えています。安心してお申し込みください
当サイトは256ビットSSL暗号化に対応しています。入力した個人情報は暗号化して送られますので、安心してご利用ください。
当社はJADMAの正会員です。同協会は法律で位置づけられた団体で、消費者の利益保護と業界の健全な発展の為に活動しています。
こちらの工事に使用しているエクステリア
![]()
スピーネ F型 ルーフタイプ 単体

工事費・税込
112,000円〜
商品レビュー数
251件
LIXILの新テラス屋根スピーネ。広い地域に対応ができる積雪〜20cmタイプです。定番の吊り下げの物干しから壁付けの物干しまで洗濯物干し場に最適なテラスです。斜めなどの加工も対応が可能なシンプルスタイル。
この商品の詳細へ
無料お見積り・現場調査・ご注文もこちら