各取扱メーカーの会社名、ロゴ及び商品名等は各社の商標または登録商標です。
| 日 | 月 | 火 | 水 | 木 | 金 | 土 |
|---|---|---|---|---|---|---|
| 1 | 2 | 3 | 4 | 5 | 6 | |
| 7 | 8 | 9 | 10 | 11 | 12 | 13 |
| 14 | 15 | 16 | 17 | 18 | 19 | 20 |
| 21 | 22 | 23 | 24 | 25 | 26 | 27 |
| 28 | 29 | 30 | 31 |
| 日 | 月 | 火 | 水 | 木 | 金 | 土 |
|---|---|---|---|---|---|---|
| 1 | 2 | 3 | ||||
| 4 | 5 | 6 | 7 | 8 | 9 | 10 |
| 11 | 12 | 13 | 14 | 15 | 16 | 17 |
| 18 | 19 | 20 | 21 | 22 | 23 | 24 |
| 25 | 26 | 27 | 28 | 29 | 30 | 31 |
…休業日(現場調査・工事は一部対応)
![]()
【受付時間】9:30 - 17:30(営業日)
![]()
【受付時間】9:30 - 17:30(営業日)
オペレーションスタッフ
エクステリアプランナー有資格者の私たちにお任せください。
ショップ責任者
神(じん)
エクステリア プランナー
有資格者61名
1/3
1/3
今週のPick Upページ
![]()
ご利用頂いたお客様の口コミ・レビューを「お客様の声」として掲載しております。
全てのご感想を掲載しておりますので、エクスショップの評判としてご参考ください。
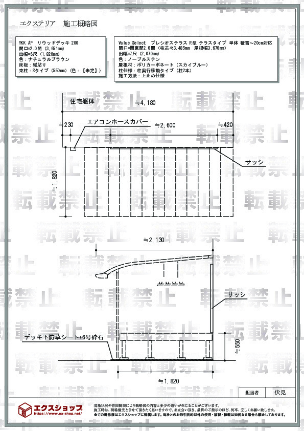
正式お見積りと一緒に提出させて頂いております「工事概略図面」もご覧頂けます。
商品や設置場所のご検討にお役立てください。
(写真No:18965411)
(テラス屋根、ウッドデッキ)
| カラー | ノーブルステン |
|---|---|
| サイズ | 屋根幅 3,670mm 出幅 2,070mm |
| 柱仕様 | 柱奥行移動タイプ(柱2本) |
| 屋根材 | ポリカーボネート(ガラスマット) |
| 工事方法 | 地域密着あんしん施工 |
(写真No:18965411)
(テラス屋根、ウッドデッキ)
| カラー | ナチュラルブラウン |
|---|---|
| サイズ | 間口 3,651mm 出幅 1,820mm |
| 工事方法 | 地域密着あんしん施工 |
1つ1つ丁寧に確認しながら作業を行ってくれたので、すごく安心できました。
この度はリウッドデッキ200及びプレシオステラス R型 テラスタイプの施工をご依頼頂き、誠に有り難うございました。お部屋から段差なくお庭に出ることが出来るウッドデッキは、リビングとお庭をつなぐ憩いの空間でございますね。大きなテラス屋根が雨を防ぎますので雨の日でも快適にお過ごし頂けるものと存じます。今回施工したエクステリアにより、お客様の暮らしがより豊かで快適なものとなりますことを願っております。これからも、常にお客様満足度100%を目指し、精進して参ります。またのご利用を、心よりお待ち申し上げております。
当サイトは以下のセキュリティ機能や保護認定等を備えています。安心してお申し込みください
当サイトは256ビットSSL暗号化に対応しています。入力した個人情報は暗号化して送られますので、安心してご利用ください。
当社はJADMAの正会員です。同協会は法律で位置づけられた団体で、消費者の利益保護と業界の健全な発展の為に活動しています。
こちらの工事に使用しているエクステリア
![]()
プレシオステラスU R型 テラスタイプ 単体

工事費・税込
64,200円〜
商品レビュー数
194件
プレシオステラスU R型 テラスタイプ 単体はエクスショップオリジナルブランドのアール屋根仕様のテラス屋根です。商品カラーはシンプルで外観と馴染みやすいノーブルステン、グレースブラウン、チャコールブラックの3種類をご用意しています。
この商品の詳細へ
無料お見積り・現場調査・ご注文もこちら
こちらの工事に使用しているエクステリア
![]()
リウッドデッキ 200

工事費・税込
78,800円〜
商品レビュー数
6001件
リウッドデッキ 200は木粉とポリプロピレンを混合したリウッド(再生木)でできた人工木デッキです。硬度・耐水性・耐候性・防腐朽性の高さが特徴で、水濡れやシロアリ・菌類による腐食の心配がありません。目地幅は安全性と意匠性を考慮した3mm幅設定。※束石の手配は別途。
この商品の詳細へ
無料お見積り・現場調査・ご注文もこちら