各取扱メーカーの会社名、ロゴ及び商品名等は各社の商標または登録商標です。
| 日 | 月 | 火 | 水 | 木 | 金 | 土 |
|---|---|---|---|---|---|---|
| 1 | 2 | 3 | 4 | 5 | 6 | |
| 7 | 8 | 9 | 10 | 11 | 12 | 13 |
| 14 | 15 | 16 | 17 | 18 | 19 | 20 |
| 21 | 22 | 23 | 24 | 25 | 26 | 27 |
| 28 | 29 | 30 | 31 |
| 日 | 月 | 火 | 水 | 木 | 金 | 土 |
|---|---|---|---|---|---|---|
| 1 | 2 | 3 | ||||
| 4 | 5 | 6 | 7 | 8 | 9 | 10 |
| 11 | 12 | 13 | 14 | 15 | 16 | 17 |
| 18 | 19 | 20 | 21 | 22 | 23 | 24 |
| 25 | 26 | 27 | 28 | 29 | 30 | 31 |
…休業日(現場調査・工事は一部対応)
![]()
【受付時間】9:30 - 17:30(営業日)
![]()
【受付時間】9:30 - 17:30(営業日)
オペレーションスタッフ
エクステリアプランナー有資格者の私たちにお任せください。
ショップ責任者
神(じん)
エクステリア プランナー
有資格者61名
1/3
1/3
今週のPick Upページ
![]()
ご利用頂いたお客様の口コミ・レビューを「お客様の声」として掲載しております。
全てのご感想を掲載しておりますので、エクスショップの評判としてご参考ください。
正式お見積りと一緒に提出させて頂いております「工事概略図面」もご覧頂けます。
商品や設置場所のご検討にお役立てください。
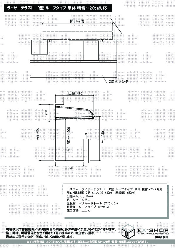
(写真No:6119466)
(バルコニー・ベランダ屋根)
| カラー | シャイングレー |
|---|---|
| サイズ | 屋根幅 3,660mm 出幅 1,185mm |
| 柱仕様 | ルーフタイプ(柱無し) |
| 屋根材 | ポリカーボネート(ブラウン) |
| 工事方法 | 地域密着あんしん施工 |
何より安いことに非常に魅力を感じていましたが、それ以外に、電話でご連絡いただいた際も非常に丁寧でわかりやすい対応でしたし、見積もりや当日作業をしていただいた施工業者さんも仕事が丁寧で、エクスショップさんに発注してよかったです。おかげさまで快適に使わせていただいてもらっています。
弊社はネット販売の利点を活かし、お求めやすい価格で、ご要望に出来るだけ近いものをお届けすることを目指しておりますので、このようなお言葉を頂き、大変光栄に存じます。柱の無いタイプのライザーテラスII R型ですので、とてもすっきりとしたお仕上がりで、シャイングレーのお色も上品でございますね。これからも、お客様のご期待を裏切らないよう精進して参りますので、また機会がございましたら、ぜひエクスショップをご利用頂けますよう、宜しくお願い致します。
当サイトは以下のセキュリティ機能や保護認定等を備えています。安心してお申し込みください
当サイトは256ビットSSL暗号化に対応しています。入力した個人情報は暗号化して送られますので、安心してご利用ください。
当社はJADMAの正会員です。同協会は法律で位置づけられた団体で、消費者の利益保護と業界の健全な発展の為に活動しています。
こちらの工事に使用しているエクステリア
![]()
スピーネ R型 屋根タイプ 単体

工事費・税込
92,200円〜
商品レビュー数
421件
LIXILの新テラス屋根スピーネ。広い地域に対応ができる積雪〜20cmタイプです。雨や雪の入り込みを防ぎ、さらに視線も遮る目隠しスクリーンも取り付けられるテラスです。
この商品の詳細へ
無料お見積り・現場調査・ご注文もこちら