日光、雨・風を防ぎバルコニーを快適に
お庭に屋内空間を拡張
セット購入でお値引きお得な価格で快適生活
快適なガレージには必須
お庭に憩いのスペースを作り出します
防犯、お家のドレスアップはこれで決まり
各取扱メーカーの会社名、ロゴ及び商品名等は各社の商標または登録商標です。
| 日 | 月 | 火 | 水 | 木 | 金 | 土 |
|---|---|---|---|---|---|---|
| 1 | 2 | 3 | 4 | 5 | 6 | 7 |
| 8 | 9 | 10 | 11 | 12 | 13 | 14 |
| 15 | 16 | 17 | 18 | 19 | 20 | 21 |
| 22 | 23 | 24 | 25 | 26 | 27 | 28 |
| 日 | 月 | 火 | 水 | 木 | 金 | 土 |
|---|---|---|---|---|---|---|
| 1 | 2 | 3 | 4 | 5 | 6 | 7 |
| 8 | 9 | 10 | 11 | 12 | 13 | 14 |
| 15 | 16 | 17 | 18 | 19 | 20 | 21 |
| 22 | 23 | 24 | 25 | 26 | 27 | 28 |
| 29 | 30 | 31 |
…休業日(現場調査・工事は一部対応)
![]()
【受付時間】9:30 - 17:30(営業日)
![]()
【受付時間】9:30 - 17:30(営業日)
オペレーションスタッフ
エクステリアプランナー有資格者の私たちにお任せください。
ショップ責任者
神(じん)
エクステリア プランナー
有資格者61名
1/3
木附
枡田
重富
吉澤
吉野
小東
池本
山田
佐藤
白崎
新西
伊野
次田
南
西山
小林
阿重田
梨田
長谷川
藤田
村上
平戸
植松
内田
久田
中島
長石
水口
榮
山崎
清水
室谷
安田
水谷
小野
酒井
一氏
神吉
日下部
山中
深田
田中
水田
西田
岡本
丸山
北
坂本
中嶋
岩野
伊藤
上中
高山
原
犬井
佐伯
谷川
塚田
松本
小林
森下
上内
島田
森
梅田
松山
山本
小西
倉地
山根
中原
河野
村上
土井
岩破
南
井上
三ツ股
小田
依藤
永禮
林
加藤
石藤
駒井
末吉
山本
芦野
樽井
野上
岡田
木村
池田
西村
藤澤
達川
奥原
那須
1/3
今週のPick Upページ
![]()
ご利用頂いたお客様の口コミ・レビューを「お客様の声」として掲載しております。
全てのご感想を掲載しておりますので、エクスショップの評判としてご参考ください。
正式お見積りと一緒に提出させて頂いております「工事概略図面」もご覧頂けます。
商品や設置場所のご検討にお役立てください。
(写真No:16848715)
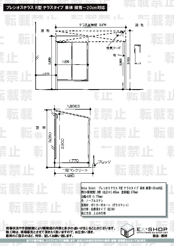
(テラス屋根)
| カラー | ノーブルステン |
|---|---|
| サイズ | 屋根幅 3,670mm 出幅 1,770mm |
| 柱仕様 | 柱標準タイプ(柱2本) |
| 屋根材 | ポリカーボネート(ガラスマット) |
| 工事方法 | 地域密着あんしん施工 |
今回3回目の利用ですが、毎回丁寧に工事していただき、大変うれしく思っています。出来上がりは満足しています。次回も利用したいと思っています。
いつもエクスショップをご利用頂きまして、誠に有り難うございます。ポリカーボネート(ガラスマット)の屋根ならではの、明るくて涼しげなスペースが完成致しましたこと、私どもも嬉しく存じます。これからもお客様のお住まいを、より快適にするお手伝いが出来ますよう日々精進して参りたいと存じます。またのご利用を、心よりお待ち申し上げております。
当サイトは以下のセキュリティ機能や保護認定等を備えています。安心してお申し込みください
当サイトはSSL暗号化に対応しています。入力した個人情報は暗号化して送られますので、安心してご利用ください。
当社はJADMAの正会員です。同協会は法律で位置づけられた団体で、消費者の利益保護と業界の健全な発展の為に活動しています。
こちらの工事に使用しているエクステリア
![]()
プレシオステラスU R型 テラスタイプ 単体

工事費・税込
64,200円〜
総合平均評価(星5つ評価)
4.68
商品レビュー数
205件
プレシオステラスU R型 テラスタイプ 単体はエクスショップオリジナルブランドのアール屋根仕様のテラス屋根です。商品カラーはシンプルで外観と馴染みやすいノーブルステン、グレースブラウン、チャコールブラックの3種類をご用意しています。
この商品の詳細へ
無料お見積り・現場調査・ご注文もこちら
この商品のレビュー
商品レビュー205件

兵庫県 加西市 S.S.様
メーカー品であるため、とてもいいものだと思います。お値段もすばらしい価格だと考えます。

千葉県 千葉市 H.M.様
コストパフォーマンスに優れ、必要にして十分だと思います。

愛媛県 東温市 N.T.様
今回、他の業者とも比較し、工費含め安価であったことで、テラス(物干し:オプション)及びデッキを注文しました。設置場所を自身で計測し、ネットでの注文ということで仕上がりにはかなり不安を感じていました。担当者の方とメールや電話で質問など何度かやり取りしましたが対応やレスポンスもよくしていただきました。工事においても丁寧に対応していただき満足いけるものが完成したと感謝しております。今後、カーポートなどの設置も考えており、次回もお願いしようと思います。

埼玉県 鴻巣市 I.S.様
素材がしっかりしていて、R屋根のお洒落なデザインと熱線遮断ポリカーボネート(スカイブルーマット調)が気に入っています。妻は、見積が大変安かったので、かなり品祖なテラス屋根をイメージしていたようで、驚いていましたし素直に喜んでいました。

栃木県 宇都宮市 I.H.様
満足。 しいて言うなら取り付け高さがもう少し低くてもよかった。

福岡県 福岡市 I.K.様
メーカー品のPB商品との説明をうけましたので、そういった点でも安心でした。

島根県 出雲市 T.A.様
予想していた以上にしっかりした作りでした。

神奈川県 横浜市 U.Y.様
夏場にならないと評価はできないものの、仕上がりは満足。屋根の色が思っていた以上に濃いことに驚いたが、やはり熱射軽減のためにはこの程度は必要なのかも知れない。 ホワイトの在庫がなかったことが残念。

熊本県 菊池郡大津町 F.K.様
何かと値上がりしているこのご時世にしては、値段と製品性能は満足できると思います。

東京都 多摩市 K.Y.様
見た目は他ブランドと変わらず、安価で購入できて満足です。

東京都 多摩市 K.Y.様
見た目は他ブランドと変わらず、安価で購入できて満足です。

三重県 津市 U.J.様
違和感のない色合いで日を遮ることなく屋根を取り付けることが出来ました。

静岡県 浜松市 K.S.様
商品については満足しています。 ご近所の方も見に来られどちらでやったのか?聞かれました。お値段も満足で良かった事を伝えました。

東京都 足立区 W.M.様
お見積もりの際に合うものをすすめていただきました。ピッタリで気に入ってます。

福岡県 筑後市 E.K.様
外で作業する際、雨を気にせずできるようになりました
関連するお客様の声

5つ星のうち5
愛媛県T.H. 様回答日:2014年9月
丁寧な施工でした。初めて利用さしてもらいましたが、親切でよかったです。また利用する機会があれば、頼みたいと思いました。

5つ星のうち4
愛知県K.S. 様回答日:2014年10月
電話の対応も早く、見積もりでの対応もよかった。次回また何かエクステリアを購入したい場合でもエクスショップを利用したいと思う。

5つ星のうち5
宮崎県S.K. 様回答日:2013年7月
ネットでの対応もよく、工事業者の対応もよし。施工もていねいで満足いくものでした。次回もまた機会があったら利用したい。

5つ星のうち5
長野県H.R. 様回答日:2017年9月
日差しを和らげてくれました。素晴らしい対応と工事だったとおもいます。今後も利用していきたいと思います。本当にありがとうございました。

5つ星のうち5
福岡県H.T. 様回答日:2012年10月
担当の方も丁寧、迅速な対応をして下さり良かったと思いました。作業された方もこちらの希望通りの仕上がりにして下さり大変満足です。又、次回も利用させて頂きたいと思います。ありがとうございました。

5つ星のうち5
高知県K.I. 様回答日:2011年5月
見積りから発注等まで安心してお願いできました。施工業者の方もとても良い方で、安心し工事していただくことが出来ました。次回も機会があればぜひ利用したいと思います。

5つ星のうち5
愛媛県O.M. 様回答日:2020年2月
初めて利用さしていただいたので、ちょっと不安もあったのですが、説明も丁寧にしていただき、時間もきちんと守っていただきました。とても満足しています。

5つ星のうち5
奈良県Y.A. 様回答日:2011年3月
とても満足しています。とても値段が安いにも関わらず、工事も丁寧で、出来栄えもかなり良い感じです。機会があれば、また利用したいと思います。

5つ星のうち5
愛知県T.R. 様回答日:2015年11月
テラスを設置し、カーポートとして利用しています。雨にぬれずに車に乗れるので快適です。エクスショップを初めて利用しましたが、対応が丁寧で安心して設置完了を迎えることができました。

5つ星のうち4
滋賀県H.J. 様回答日:2014年1月
初めてこちらをご利用させて頂きましたが、4つ★のすごく満足です!お立ち合いの際も、すごく親切に分かりやすく説明して頂きました。メールでの対応も素早く、当日の工事もなんの不安もなく安心して任せられました。是非またこちらのお店を利用したいです!ありがとうございました。
関連するブログ記事
関連するよくあるご質問
TOEXの樹の木テラスの取り扱いはありますか?
【商品カテゴリ >テラス屋根】(ご質問No.67)
タカショーのJ/EUポーチ(独立タイプ)の取り扱いはありますか?
【商品カテゴリ >テラス屋根】(ご質問No.166)
人工石貼りのガーデンテラスの取り扱いはありますか?
【商品カテゴリ >テラス屋根】(ご質問No.235)
プレシオステラス R型 テラスタイプ 単体に前面スクリーンをつけることはできますでしょうか?
【商品カテゴリ >テラス屋根】(ご質問No.334)
柱奥行移動タイプにする場合、柱から屋根先が何センチくらい出っ張るようになるのでしょうか。
【商品カテゴリ >テラス屋根】(ご質問No.567)
はじめまして。二階建て住宅に住んでおります。一階のテラス屋根が一部破損してしまったので、修繕を考えております。
【商品カテゴリ >テラス屋根】(ご質問No.624)
敷地に合わせて切詰め加工できますか?
【商品カテゴリ >テラス屋根】(ご質問No.735)
柱固定仕様と出幅自在桁・柱奥行移動仕様の違いはどんなものですか?
【商品カテゴリ >テラス屋根】(ご質問No.736)
物干しの金額は見積に含まれますか?他にどんなオプションがあるのか教えてください。
【商品カテゴリ >テラス屋根】(ご質問No.737)
テラス屋根の取り付け見積とその他の製品について相談したく思います。
場所は総社市です。宜しくお願いします。
【商品カテゴリ >テラス屋根】(ご質問No.942)


















