日光、雨・風を防ぎバルコニーを快適に
お庭に屋内空間を拡張
セット購入でお値引きお得な価格で快適生活
快適なガレージには必須
お庭に憩いのスペースを作り出します
防犯、お家のドレスアップはこれで決まり
各取扱メーカーの会社名、ロゴ及び商品名等は各社の商標または登録商標です。
| 日 | 月 | 火 | 水 | 木 | 金 | 土 |
|---|---|---|---|---|---|---|
| 1 | 2 | 3 | 4 | 5 | 6 | 7 |
| 8 | 9 | 10 | 11 | 12 | 13 | 14 |
| 15 | 16 | 17 | 18 | 19 | 20 | 21 |
| 22 | 23 | 24 | 25 | 26 | 27 | 28 |
| 29 | 30 | 31 |
| 日 | 月 | 火 | 水 | 木 | 金 | 土 |
|---|---|---|---|---|---|---|
| 1 | 2 | 3 | 4 | |||
| 5 | 6 | 7 | 8 | 9 | 10 | 11 |
| 12 | 13 | 14 | 15 | 16 | 17 | 18 |
| 19 | 20 | 21 | 22 | 23 | 24 | 25 |
| 26 | 27 | 28 | 29 | 30 |
…休業日(現場調査・工事は一部対応)
![]()
【受付時間】9:30 - 17:30(営業日)
![]()
【受付時間】9:30 - 17:30(営業日)
オペレーションスタッフ
エクステリアプランナー有資格者の私たちにお任せください。
ショップ責任者
神(じん)
エクステリア プランナー
有資格者61名
1/3
木附
枡田
重富
吉澤
吉野
小東
池本
山田
佐藤
白崎
新西
伊野
次田
南
西山
小林
阿重田
梨田
長谷川
藤田
村上
平戸
植松
内田
久田
中島
長石
水口
榮
山崎
清水
室谷
安田
水谷
小野
酒井
一氏
神吉
日下部
山中
深田
田中
水田
西田
岡本
丸山
北
坂本
中嶋
岩野
伊藤
上中
高山
原
犬井
佐伯
谷川
塚田
松本
小林
森下
上内
島田
森
梅田
松山
山本
小西
倉地
山根
中原
河野
村上
土井
岩破
南
井上
三ツ股
小田
依藤
永禮
林
加藤
石藤
駒井
末吉
山本
芦野
樽井
野上
岡田
木村
池田
西村
藤澤
達川
奥原
那須
1/3
今週のPick Upページ
![]()
ご利用頂いたお客様の口コミ・レビューを「お客様の声」として掲載しております。
全てのご感想を掲載しておりますので、エクスショップの評判としてご参考ください。
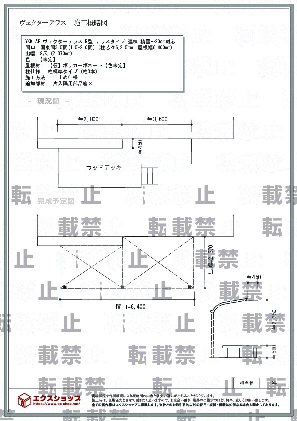
正式お見積りと一緒に提出させて頂いております「工事概略図面」もご覧頂けます。
商品や設置場所のご検討にお役立てください。
(写真No:18421619)
(テラス屋根)
| カラー | プラチナステン |
|---|---|
| サイズ | 屋根幅 6,400mm 出幅 2,370mm |
| 柱仕様 | 柱標準タイプ(柱3本) |
| 屋根材 | ポリカーボネート(スモークブラウン) |
| 工事方法 | 地域密着あんしん施工 |
今回は前のウッドデッキ・フェンス他工事の2回目ということもあり工事業者さんの動きもスムーズで短時間で設置工事が終わりよかったと思います。
再度エクスショップをご利用頂きまして、誠に有り難うございます。ヴェクターテラス R型のポリカーボネート(スモークブラウン)の屋根が、ウッドデッキを優しく包み込んでおりますね。雨だけではなく、有害な紫外線も遮りますので、ご家族の憩いの場として、一年を通してご愛用頂けるものと存じます。今後も、常に、お客様のご希望にかなった完成を目指し、努力して参ります。また機会がございましたら、是非エクスショップにご用命くださいますよう、宜しくお願い致します。
当サイトは以下のセキュリティ機能や保護認定等を備えています。安心してお申し込みください
当サイトはSSL暗号化に対応しています。入力した個人情報は暗号化して送られますので、安心してご利用ください。
当社はJADMAの正会員です。同協会は法律で位置づけられた団体で、消費者の利益保護と業界の健全な発展の為に活動しています。
こちらの工事に使用しているエクステリア
![]()
ソラリア R型 テラスタイプ 単体

工事費・税込
65,800円〜
総合平均評価(星5つ評価)
4.81
商品レビュー数
1053件
実用的で快適な空間を作り出すソラリアのテラス屋根。雨の日でも安心な洗濯物干し場の屋根として大活躍してくれます。物干しや目隠しパネルなど使い勝手を重視したオプションも豊富に揃っています。
この商品の詳細へ
無料お見積り・現場調査・ご注文もこちら
この商品のレビュー
商品レビュー1,053件

福岡県 福岡市 T.H.様
・かなり満足なテラス屋根が完成しました。 これから急な雨でも洗濯物が濡れる心配もありません。 また、夏も暑い日差しから多少解放されることを期待しています。 ・色もイメージ通りのもので完成しました。

兵庫県 尼崎市 U.M.様
まだ雨が降ってないので評価はできませんが、外観は良いと思います。

東京都 町田市 H.K.様
施工にあたってお昼ごはんを、取らずに黙々と作業して出来上がりは満足度120%です。

千葉県 八千代市 I.N.様
歩道に面した場所なので、通りすがりの方々から素敵になったねと声をかけられるようになりました。とても気に入っています。

栃木県 栃木市 N.K.様
もう少し奥行が長くても良かったかなと思いました。

熊本県 菊池市 T.Y.様
強い日差しを適度に和らげ雨から守れて良いと思います。

広島県 福山市 T.H.様
リビンクからの出入り口に設置しました。雨の日も洗濯物が干せるのでありがたいです。

岡山県 岡山市 I.Y.様
支柱がウッドデッキのサイズにきちんとおさまり、目論見通りに

兵庫県 たつの市 D.D.様
プラチナステン、ソラリアR、見た目が良くて、満足している!

神奈川県 川崎市 Y.K.様
思ったよりもコンパクトでしたが、見た目も気に入りました。 小雨程度なら外でも干せそうなので、活躍を期待しています。

福岡県 春日市 I.T.様
夏の厚い日差しを防ぎ、リビングの床の日焼けを軽減できそう。雨が直接ドアに当たらないのでドアを守れる。

長崎県 雲仙市 H.K.様
最初は、横幅を狭く考えてましたが、業者さんの下見のさいに、ご助言頂き、幅を広げました。それがとても良かったです。見た目が良くなって満足しておりますし雨のふりこみも少ないです。屋根の色合いも明るくて気に入りました。

愛媛県 西条市 Y.S.様
高さや幅など最適なサイズを選ぶことができた。

兵庫県 宝塚市 I.T.様
ウッドデッキの上に取り付けたので、ウッドデッキでゆっくりと過ごす事ができます。見た目もよく、洗濯も干せるため満足しています。

長崎県 佐世保市 T.M.様
現時点においては満足しています。 強いて言えば部屋の採光が若干暗くなったかなと言う感じです

長崎県 佐世保市 T.M.様
現時点においては満足しています。 こちらの方は元々日があまりささないところだったので採光も気になりません。
関連するお客様の声

5つ星のうち5
大阪府M.T. 様回答日:2019年10月
今回で2回目の注文でした。前回は駐車場の屋根の取り付けをお願いしました。今回はバルコニーの屋根の設置を注文しました。前回同様に、下見も丁寧にやっていただき、施工も短時間で丁寧に仕上げていただきました。

5つ星のうち4
東京都N.K. 様回答日:2019年10月
2回目の利用させて頂きました。数年前はフェンスの設置をお願いし、今回はサイクルポートとテラスの設置をお願いしました。前回同様、安心して工事をお任せ出来ることができました。

5つ星のうち5
愛知県S.K. 様回答日:2014年6月
梅雨入りになってしまったけどちょうど雨が降らなくなり、工事も短時間で出来上がりました。ありがとうございました。

5つ星のうち5
神奈川県A.A. 様回答日:2019年7月
エクスショップさんを利用させて頂くのは、今回が2回目です。インターネットでの注文なので最初は不安でしたが現地調査がしっかり行われる事と、質の高い提携施工店での工事なので、安心してお任せすことが出来ました。

5つ星のうち4
宮崎県T.K. 様回答日:2017年5月
今回はテラス屋根を発注しました。見積り価格も適正で、受け付け対応も丁寧でスムーズに話を進めることが出来ました。工事業者さんの対応も親切丁寧でとても満足しています。

5つ星のうち5
千葉県N.O. 様回答日:2013年4月
今回で2回目の工事でした。前回はカーポート、今回はテラス屋根工事です。前回の工事業者も丁寧で気持ちよい職人さんでしたが、今回も同様大変丁寧でよい工事して頂きました。有難う御座いました。又機会が有ればエクスショップさんでお願いしたいと思います。

5つ星のうち5
宮城県S.T. 様回答日:2017年5月
迅速な対応で工事業者さんが、とても感じが良く対応して下さいました。ネットで見るより、実際は物も良く近所のホームセンターで購入するより価格も安くなり助かりました。

5つ星のうち5
広島県K.M. 様回答日:2019年1月
自宅を新築したので駐車場などに屋根が欲しかった。エクスショップさまの利用は2回目でしたが、今回も丁寧に対応していただき大変満足しています。

5つ星のうち5
東京都S.T. 様回答日:2016年4月
エクスショップの利用は今回が2回目で、前回は2F、今回は1Fにテラス屋根を設置しました。設置に来た方も前回と同じ方で、親切・丁寧に工事をして頂いて出来上がりも大変満足しています。

5つ星のうち5
兵庫県N.M. 様回答日:2014年2月
エクスショップの施工は2回目です、担当の方や近隣業者の対応など、しっかりとしていただき、今回の施工も満足をしました、現地調査もしっかりとしていただき、施工完了まで安心して任せられました、本当にありがとうございました。
関連するブログ記事
関連するよくあるご質問
TOEXの樹の木テラスの取り扱いはありますか?
【商品カテゴリ >テラス屋根】(ご質問No.67)
タカショーのJ/EUポーチ(独立タイプ)の取り扱いはありますか?
【商品カテゴリ >テラス屋根】(ご質問No.166)
人工石貼りのガーデンテラスの取り扱いはありますか?
【商品カテゴリ >テラス屋根】(ご質問No.235)
プレシオステラス R型 テラスタイプ 単体に前面スクリーンをつけることはできますでしょうか?
【商品カテゴリ >テラス屋根】(ご質問No.334)
柱奥行移動タイプにする場合、柱から屋根先が何センチくらい出っ張るようになるのでしょうか。
【商品カテゴリ >テラス屋根】(ご質問No.567)
はじめまして。二階建て住宅に住んでおります。一階のテラス屋根が一部破損してしまったので、修繕を考えております。
【商品カテゴリ >テラス屋根】(ご質問No.624)
敷地に合わせて切詰め加工できますか?
【商品カテゴリ >テラス屋根】(ご質問No.735)
柱固定仕様と出幅自在桁・柱奥行移動仕様の違いはどんなものですか?
【商品カテゴリ >テラス屋根】(ご質問No.736)
物干しの金額は見積に含まれますか?他にどんなオプションがあるのか教えてください。
【商品カテゴリ >テラス屋根】(ご質問No.737)
テラス屋根の取り付け見積とその他の製品について相談したく思います。
場所は総社市です。宜しくお願いします。
【商品カテゴリ >テラス屋根】(ご質問No.942)


















