日光、雨・風を防ぎバルコニーを快適に
お庭に屋内空間を拡張
セット購入でお値引きお得な価格で快適生活
快適なガレージには必須
お庭に憩いのスペースを作り出します
防犯、お家のドレスアップはこれで決まり
各取扱メーカーの会社名、ロゴ及び商品名等は各社の商標または登録商標です。
| 日 | 月 | 火 | 水 | 木 | 金 | 土 |
|---|---|---|---|---|---|---|
| 1 | 2 | 3 | 4 | 5 | 6 | 7 |
| 8 | 9 | 10 | 11 | 12 | 13 | 14 |
| 15 | 16 | 17 | 18 | 19 | 20 | 21 |
| 22 | 23 | 24 | 25 | 26 | 27 | 28 |
| 29 | 30 | 31 |
| 日 | 月 | 火 | 水 | 木 | 金 | 土 |
|---|---|---|---|---|---|---|
| 1 | 2 | 3 | 4 | |||
| 5 | 6 | 7 | 8 | 9 | 10 | 11 |
| 12 | 13 | 14 | 15 | 16 | 17 | 18 |
| 19 | 20 | 21 | 22 | 23 | 24 | 25 |
| 26 | 27 | 28 | 29 | 30 |
…休業日(現場調査・工事は一部対応)
![]()
【受付時間】9:30 - 17:30(営業日)
![]()
【受付時間】9:30 - 17:30(営業日)
オペレーションスタッフ
エクステリアプランナー有資格者の私たちにお任せください。
ショップ責任者
神(じん)
エクステリア プランナー
有資格者61名
1/3
木附
枡田
重富
吉澤
吉野
小東
池本
山田
佐藤
白崎
新西
伊野
次田
南
西山
小林
阿重田
梨田
長谷川
藤田
村上
平戸
植松
内田
久田
中島
長石
水口
榮
山崎
清水
室谷
安田
水谷
小野
酒井
一氏
神吉
日下部
山中
深田
田中
水田
西田
岡本
丸山
北
坂本
中嶋
岩野
伊藤
上中
高山
原
犬井
佐伯
谷川
塚田
松本
小林
森下
上内
島田
森
梅田
松山
山本
小西
倉地
山根
中原
河野
村上
土井
岩破
南
井上
三ツ股
小田
依藤
永禮
林
加藤
石藤
駒井
末吉
山本
芦野
樽井
野上
岡田
木村
池田
西村
藤澤
達川
奥原
那須
1/3
今週のPick Upページ
![]()
ご利用頂いたお客様の口コミ・レビューを「お客様の声」として掲載しております。
全てのご感想を掲載しておりますので、エクスショップの評判としてご参考ください。
正式お見積りと一緒に提出させて頂いております「工事概略図面」もご覧頂けます。
商品や設置場所のご検討にお役立てください。
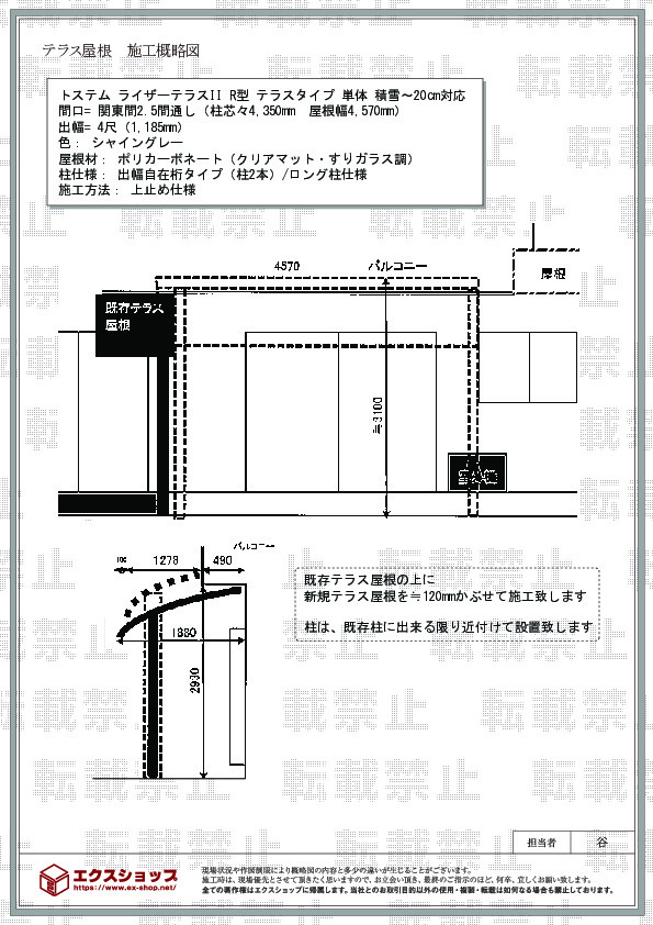
(写真No:18617419)
(テラス屋根)
| カラー | シャイングレー |
|---|---|
| サイズ | 屋根幅 4,570mm 出幅 1,185mm |
| 柱仕様 | 出幅自在桁タイプ(柱2本)/ロング柱仕様 |
| 屋根材 | ポリカーボネート(クリアマット・すりガラス調) |
| 工事方法 | 地域密着あんしん施工 |
事前調査時から細かい要望に対しても親切、丁寧に相談に乗ってもらい安心して任せることができた。施工当日においても排水等で的確なアドバイスをいただき、本体はもちろんのこと全体として満足のいく仕上がりとなった。1日かかると思っていた作業もほぼ半日で終了し感謝している。
弊社提携施工店の対応に、ご満足のお言葉をお寄せ頂きまして、誠に有り難うございます。数多くの施工をこなして参りました施工担当者の手際のよい対応には、私どももいつも感心致しております。ライザーテラスII R型 テラスタイプのお仕上がり、排水の処理にもご満足のお言葉を頂き、大変嬉しく存じます。今後も変わらず、お客様のご満足の為に精進して参りたいと存じますので、また何かございましたら、お気軽にエクスショップまでご連絡くださいますよう宜しくお願い致します。この度のご利用、誠に有り難うございました。
当サイトは以下のセキュリティ機能や保護認定等を備えています。安心してお申し込みください
当サイトはSSL暗号化に対応しています。入力した個人情報は暗号化して送られますので、安心してご利用ください。
当社はJADMAの正会員です。同協会は法律で位置づけられた団体で、消費者の利益保護と業界の健全な発展の為に活動しています。
こちらの工事に使用しているエクステリア
![]()
スピーネ R型 テラスタイプ 単体

工事費・税込
88,100円〜
総合平均評価(星5つ評価)
4.68
商品レビュー数
339件
LIXILの新テラス屋根スピーネ。広い地域に対応ができる積雪〜20cmタイプです。緩やかなカーブでどんなご自宅にでもマッチングいたします。
この商品の詳細へ
無料お見積り・現場調査・ご注文もこちら
この商品のレビュー
商品レビュー339件

神奈川県 平塚市 O.Y.様
屋根の桟と桟の幅が広く、少しチープな感じがするのが、想定外でした。

大分県 大分市 K.S.様
サイズも良く、見た目も良い。 仕上がりも大変満足。

千葉県 千葉市 S.M.様
不満は全くありません。60センチの積雪の場合はどうなるか、台風の時はどうなるか、少し不安はありますが。

神奈川県 厚木市 Y.S.様
丁度良いもう少し前に張り出してもよかったかと思います。

群馬県 太田市 M.S.様
脚の固定部分がちょっと思っていたより雑な感じがしました。地盤が土だったので仕方がないとは思っています。

静岡県 掛川市 M.A.様
屋根材をポリカのクリアブルーにして明るさを確保できたので良かった。

栃木県 足利市 N.Y.様
陽の光もしっかり入りますが直射日光は避けられるので夏場が少し快適になりそうです。

茨城県 常陸大宮市 W.A.様
使い勝手も良く高さもあるので気に入ってます。

三重県 四日市市 N.Y.様
洗濯物干しの雨避けの為に設置しました。 耐久性に付いては年数を経過した段階出判断したいと思いますが配管のサポート材が樹脂性の為に爪の割れに依る配管外れ等は少し心配です。

宮城県 仙台市 T.K.様
作りもしっかりしてるし色も外壁にあっていて思っていた以上にいい感じで大変満足してます。

鹿児島県 鹿児島市 S.T.様
他の既設のテラス屋根に合わせて頂いたので、違和感のないできあがりでした。

福岡県 八女郡広川町 M.N.様
まだテラスも出来たばっかりですが、今後も役に立ってくれそうです。

三重県 桑名市 N.T.様
見た目も良く雨にも濡れずに作業をする事ができるので、とても満足しています。
関連するお客様の声

5つ星のうち5
東京都I.Y. 様回答日:2013年12月
前調査時から細かい要望に対しても親切、丁寧に相談に乗ってもらい安心して任せることができました。地元の業者さんにより、施工当日においても的確なアドバイスをいただき、本体はもちろんのこと全体として満足のいく仕上がりとなっています。1日かかると思っていた作業も、ほぼ午前中の半日で終了し感謝しています。

5つ星のうち5
大阪府T.K. 様回答日:2013年10月
しっかり現場をみてから的確なアドバイスをもらったりして、思っていた以上の仕上がりにまたお願いしたくなりました。

5つ星のうち5
静岡県T.K. 様回答日:2011年5月
見積もりに来ていただいた方がとても親切で説明も的確で本当によかったです。施工当日も来ていただき安心しました。当日は雨だったにもかかわらず予定よりもだいぶ早く終わりその後の説明もまた丁寧でわかりやすく助かりました。

5つ星のうち5
愛知県F.T. 様回答日:2013年5月
担当者の方が電話とメールで迅速丁寧に対応して下さり感謝しています。現地調査では希望に合う型をアドバイスして頂き、何度も検討して頂いた結果、一番使いやすいタイプに決定することが出来ました。そのうえ施工当日も半日で迅速かつ丁寧に仕上げて下さり助かりました。とても良い対応をして下さりありがとうございました。

5つ星のうち4
三重県D.A. 様回答日:2016年6月
インターネットで安くできる店をさがしていて、たどり着きました。仕上がりには満足です。半日ほどで出来上がりました。

5つ星のうち5
兵庫県Y.R. 様回答日:2013年3月
対応は迅速で丁寧でした。変更もしてちゃんと要望を聞いてくれました。他のも見積もりをお願いして丁寧に対応して頂きました。工事が半日ぐらいかかって出来上がりは良くて満足しています。本当にありがとうございました。また利用したいと思います。

5つ星のうち5
愛知県M.D. 様回答日:2012年5月
細かい要望にも応えて頂き、実施もスピーディで1日で作業も終了しました。テラスもフェンスもイメージ以上に良い感じで出来上がったと思います。

5つ星のうち5
東京都A.M. 様回答日:2020年12月
特殊な加工であるにも関わらず、的確なアドバイス、素早い施工、事前の確認など的確にしていただき感謝しております。値段も安く申し分ないです。

5つ星のうち5
東京都T.Y. 様回答日:2013年3月
施工していただいた方が、とても丁寧で、こちらの要望に快く答えていただけとても満足のいく仕上がりでした。

5つ星のうち5
福岡県M.N. 様回答日:2022年9月
出窓が3ケ所ありますが、屋根もなく雨の時も必ず閉め忘れないように気を付けています。一人生活なもので外出するときは特に気を使います。そこの3ケ所分をテラス施工で換気など出来るようになりました。施工者の方にも大変お世話になりました。ありがとうございます。

5つ星のうち5
兵庫県W.H. 様回答日:2021年4月
勝手口を出たところにゴミ箱を設置しているが、屋外のため雨の日には使うのをためらわれた。雨の日も使いたくて、それならばテラス屋根を設置しようという流れになった。物置は、アウトドア用品や自動車用品の収納のため。サイクルポートを設置していたが、風の強い日に飛ばないか心配かつリスクもあるので物置の設置はゆくゆくしたかった。

5つ星のうち5
埼玉県N.S. 様回答日:2020年9月
新しく車を購入し、大切な車を守るためにカーポートを設置していただきました。一緒にウッドデッキにテラス屋根を付けていただきました。カーポートを設置して紫外線や雨から車を守ることが出来ています。また、テラス屋根を設置したことでウッドデッキに面したリビングに直接日が当たらず涼しいです。雨の日も窓を開けておけるので天気が悪い日も開放感があります。

5つ星のうち5
愛媛県F.K. 様回答日:2020年1月
以前はテント型のサイクルガレージを使用していたが、強風により破損してしまった。そのため、サイクルポートを設置しようと思っていたが、金額が高額なため二の足を踏んでいた。その際に、偶然に弊社のホームページを見て、その豊富な品ぞろえや安さに心惹かれるものがあった。

5つ星のうち5
鹿児島県S.T. 様回答日:2018年8月
以前設置されていたテラス屋根は約30年ほど使用し、老朽化でパネルが割れてしまいました。出幅が1.5mほどしかなく、洗濯物を干す際に非常に動きづらかったのですが、今回設置してもらったものは2m強ありますので、動きやすくなり大変満足しております。
関連するブログ記事
関連するよくあるご質問
TOEXの樹の木テラスの取り扱いはありますか?
【商品カテゴリ >テラス屋根】(ご質問No.67)
タカショーのJ/EUポーチ(独立タイプ)の取り扱いはありますか?
【商品カテゴリ >テラス屋根】(ご質問No.166)
人工石貼りのガーデンテラスの取り扱いはありますか?
【商品カテゴリ >テラス屋根】(ご質問No.235)
プレシオステラス R型 テラスタイプ 単体に前面スクリーンをつけることはできますでしょうか?
【商品カテゴリ >テラス屋根】(ご質問No.334)
柱奥行移動タイプにする場合、柱から屋根先が何センチくらい出っ張るようになるのでしょうか。
【商品カテゴリ >テラス屋根】(ご質問No.567)
はじめまして。二階建て住宅に住んでおります。一階のテラス屋根が一部破損してしまったので、修繕を考えております。
【商品カテゴリ >テラス屋根】(ご質問No.624)
敷地に合わせて切詰め加工できますか?
【商品カテゴリ >テラス屋根】(ご質問No.735)
柱固定仕様と出幅自在桁・柱奥行移動仕様の違いはどんなものですか?
【商品カテゴリ >テラス屋根】(ご質問No.736)
物干しの金額は見積に含まれますか?他にどんなオプションがあるのか教えてください。
【商品カテゴリ >テラス屋根】(ご質問No.737)
テラス屋根の取り付け見積とその他の製品について相談したく思います。
場所は総社市です。宜しくお願いします。
【商品カテゴリ >テラス屋根】(ご質問No.942)


















